Минималистские интерьеры создают некую иллюзию невесомости и безграничного пространства. Сегодня стиль минимализм фото выполненных в этом направлении обстановок можно увидеть в разделе, очень популярен, благодаря своей функциональности и простоте исполнения. Здесь пространство и предметы теряют границы и формы.
Дизайн основывается на сбалансированной игре полутонов и включает зачастую белый цвет в контрасте с серым, черным, коричневым, бежевым. Как и такому популярному направлению, как стиль фьюжн фото которого можно найти на сайте, минимализму присуще применение металла, кирпича, стекла, дерева. Стены отделываются декоративной штукатуркой или одноцветными простыми обоями с нечетким рисунком. Также современный стиль минимализм фото реализованных проектов собраны в текущей рубрике, предполагает использование стеновых панельных вставок. Они могут быть выполнены из различных искусственных и натуральных материалов.
Потолок зачастую однотонный, светлого оттенка. В качестве настила пола применяется кафель, линолеум, дерево. Сегодня дизайн в стиле минимализм фото которого представлены на сайте, предполагает деление помещений на зоны. В качестве разделителей выступают арки, раздвижные стеклянные перегородки, световые и мебельные акценты.
Важнейшим элементом интерьеров является удачно подобранная мебель. Часто используются целые гарнитуры. Предметы мебели украшаются алюминиевыми профилями, стеклянными, хромированными, кожаными деталями. Удачно выполненные интерьеры в стиле минимализм фото которых представлены в разделе, предполагают применение изделий, характеризирующихся повышенной функциональностью, комфортабельностью и компактностью. Обивка выполняется в одном тоне с яркими контрастными деталями. Отличительной чертой модернистских интерьеров является наличие плоских поверхностей, простых форм.
Освещение в интерьерах предполагает наличие естественного света, которое достигается благодаря большому количеству окон. Окна украшаются горизонтальными и вертикальными роллетами, жалюзи, возможно применение французских штор. В качестве освещения также используются потолочная скрытая подсветка, светильники, корпуса которых изготовлены из полированного качественного металла, с плафонами, имеющими простые геометрические формы.
Фото интерьера кухни квартиры в стиле минимализм
Фото интерьера гостевой квартиры в стиле минимализм
Фото интерьера спальни квартиры в стиле минимализм
Фото интерьера ванной квартиры в стиле минимализм
Фото интерьера детской квартиры в стиле минимализм
Фото интерьера санузла квартиры в стиле минимализм
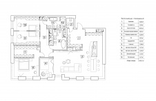
План объединения двух квартир в одну. Общая площадь – 159 кв. м.
Фото интерьера входной зоны квартиры в стиле минимализм
Фото интерьера кухни квартиры в стиле минимализм
Фото интерьера спальни квартиры в стиле минимализм
Фото интерьера столовой квартиры в стиле минимализм
Фото интерьера гостевой квартиры в стиле минимализм
Фото интерьера спальни квартиры в стиле минимализм
Фото интерьера санузла квартиры в стиле минимализм
Фото интерьера детской квартиры в стиле минимализм
Фото интерьера детской квартиры в стиле минимализм
Фото интерьера гостевого санузла квартиры в стиле минимализм
Фото интерьера зоны отдыха квартиры в стиле минимализм
Фото интерьера кухни квартиры в стиле минимализм
Фото интерьера спальни квартиры в стиле минимализм
Фото интерьера столовой квартиры в стиле минимализм
Фото интерьера гостевой квартиры в стиле минимализм
Фото интерьера спальни квартиры в стиле минимализм
Фото интерьера ванной квартиры в стиле минимализм
Фото интерьера детской квартиры в стиле минимализм
Фото интерьера санузла квартиры в стиле минимализм
Фото интерьера гостиной квартиры в стиле минимализм
Фото интерьера домашнего кинотеатра квартиры в стиле минимализм
Фото интерьера спальни квартиры в стиле минимализм
Фото интерьера спальни квартиры в стиле минимализм