Для заказчика, с которым уже работала ранее, архитектор Наталия Рыбакова спроектировала двухэтажные апартаменты для отдыха и расслабления.
Перед ней была поставлена задача создать нестандартный по планировке и наполнению интерьер с мужским характером, брутальной атмосферой и нотой иронии. Квартира расположена на последнем этаже дома. Чтобы максимально сохранить высоту потолков при надстройке антресоли, архитектору пришлось вести бурные мозговые штурмы о толщине перекрытия с конструктором. А также договариваться с администрацией о размещении оборудования системы кондиционирования и всей инженерно-технической разводки на чердаке. В итоге получилось эффектная квартира с арочным окном, стеклянной спальней и винтовой лестницей.
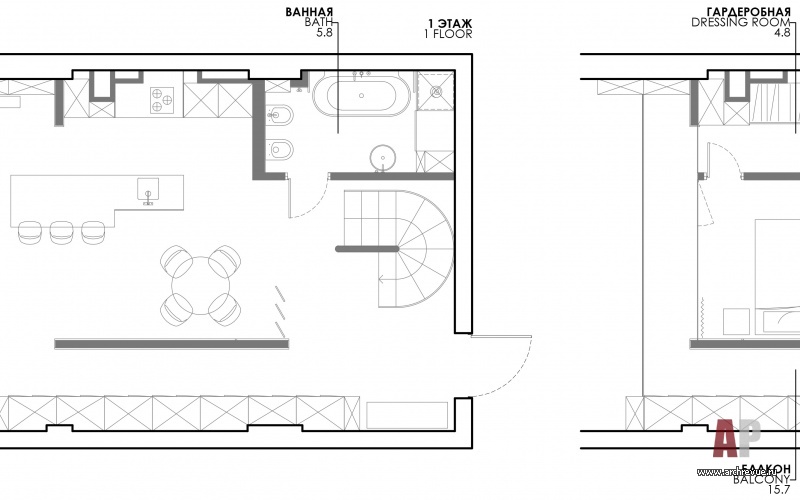
Главная сложность исходной планировки – единственное окно, которое освещает всю квартиру.
Чтобы сохранить свет и воздух, было принято решение не дробить общее пространство первого этажа на отдельные комнаты (у заказчика была идея изолированной гостевой), а сохранить цельный объем. Так, внизу разместилась общая зона с гостиной, кухней-столовой, рабочим столом и библиотекой. А наверху – спальня с гардеробной, галереей кабинетом и санузлом с хаммамом.
Планировка сложилась быстро, но ушло некоторое время, чтобы убедить заказчика в важности эстетических деталей. Например, винтовой лестницы в холле, которая добавляет входной группе торжественности и пропускает в затемненное глубокое пространство свет от окна.
Чтобы избежать слишком строгой и холодной атмосферы, архитектор объединила в интерьере камень со скальной фактурой, стекло и металл с натуральным деревом.
Дерева здесь действительно много: окрашенного и натурального шпона – стеновые панели, открытые стеллажи библиотеки, встроенная и корпусная мебель.
Декоративный облик интерьера формирует единственное арочное окно. Его форму повторяет дизайн стеклянной перегородки в спальне, масштабный изогнутый торшер с гостиной, округлые кресла и дизайнерские предметы со скругленными углами. Визуально увеличивают пространство не только вертикально устремленные линии встроенных шкафов и панелей, но и многочисленные зеркала. Например, в прихожей зеркальная стена визуально удваивает винтовую лестницу из черного металла со стеклянным ограждением. В хозяйском санузле зеркала больше подчеркивают активную геометрию помещения, а в гостевом – деликатно маскируют прачечную.
В оформлении интерьера заказчик принимал самое деятельное участие и вносил интересные предложения. Так появился стеклянный пол на втором этаже и канат, по которому можно спуститься из спальни в гостиную.
Комплектация объекта
Строительные и отделочные материалы и изделия
Лестница из металла и стекла и стеклянные ограждения, компания Искусство и сталь
Межкомнатные скрытые двери без верхних перемычек Cascate porte
Зеркала, поставщик МосСтеклоПроект
Тканевые шторы и канат, поставщик Шторгард
Инженерная доска Bassano Parquet, модель Corbezzolo, дуб, ручное старение
Керамогранит Energie Ker, серия Agathos Anthracite
Столешницы из искусственного камня Stoneakril
Свет Led Technology, Cattelan Italia, Leucos, Flos, Romatti, поставщик Мастерская светотехники; Normann Copenhagen, 101 Copenhagen, поставщик L’Appartement
Ковры, поставщик Dovlet House
Декор, поставщики Izzi Decor, AspectStore, Ferm Living, L’Appartement
Постельное белье и покрывало, поставщик Atelier Tati
Искусство, Галерея Sample, ArtBrut Moscow
Сантехника раковины, унитазы и биде Kerasan, ванна BelBagno, смесители и душевая система Paffoni, полотенцесушитель Сунержа, поставщик Метал Сан
Мебель
Прихожая банкетка 101 Copenhagen
Гостиная диван, стол письменный BoСoncept, журнальные столики Minotti, кресло Poliform, рабочий стул Lema; столик Ethnicraft, поставщик L’Appartement
Столовая стол Sovet Italia, стулья DiTre Italia, полубарные стулья Mattiazzi
Спальня кровать Lago, прикроватные столики Minotti
Кабинет пуф 101 Copenhagen, поставщик L’Appartement
Оборудование
Выключатели и розетки Bticino, серия Living Now
Квартира с французским настроением О профессии «ландшафтный архитектор», образовании и специфике частных и общественных ландшафтных проектов говорим с Иваном Бугаевым…
























Ландшафтный архитектор. Инженер. Проектировщик. Логик.
«Мода в интерьере — это зеркало нашего быта»...
Храм в городе
Три кита современного стиля
Проект: Аэропорт «Кавказ» 
11
22
33
44
55
66
77
88
99
1010 