Закрыть галерею
Изображение 27 из 27

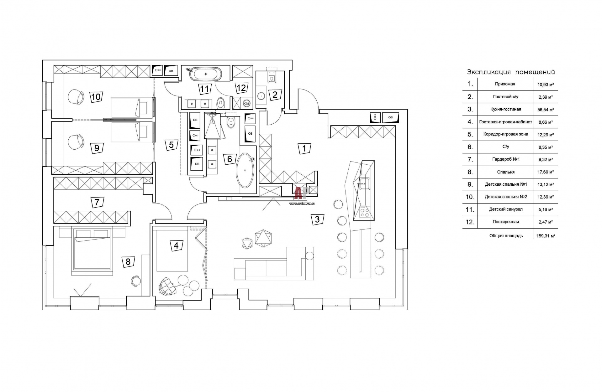
План объединения двух квартир в одну. Общая площадь – 159 кв. м.

Планировка семейной квартиры в новостройке. 

Проект: Квартира в стиле минимализм для семьи с двумя детьми
Автор проекта: Мирошкин Майкл, Мирошкина Элен
Соавтор(ы): Ларичев Сергей
Объект: Минималистская квартира с кубическим островом
Общая площадь: 159 кв.м.