Современные пространства частных квартир требуют особого подхода к созданию уникального дизайна. Именно интерьеры квартир фото которых можно найти в соответствующей рубрике, обязаны максимально точно подчеркивать характер хозяев, а также соответствовать его потребностям и запросам касательно организации пространства.
Типичная квартира сегодня представляет собой вариант пространства, который обязательно имеет все необходимые условия для комфортного проживания хозяев. Именно поэтому дизайн интерьера квартир, фото которого демонстрируют разнообразие доступных направлений отделки, должен идеально соответствовать современным представлениям об удобстве и стиле. Главное правило, которого необходимо придерживаться при выборе подходящего варианта оформления, заключается в удовлетворении всех требований хозяина такой квартиры, как было упомянуто выше.
Основная задача отделки квартиры – это обеспечивать оптимальные условия для расслабленного времяпрепровождения. Поскольку для каждого отдельного человека понятие комфорта является разным, необходимо соответствовать основным категориям качества декора. Именно поэтому в процессе обустройства такого жилья следует придерживаться определенных правил. Прежде всего, создавая дизайн квартир, фото которых имеются в данной категории, важно использовать исключительно экологичные материалы – они не выделяют токсичных веществ, что позволит гарантировать безопасность такого оформления. Безусловно, различные стилистические направления, существующие сегодня, не всегда предусматривают применение древесины в качестве основного материала, чем известен традиционный интерьер бани фото которого указывает на данную черту, поэтому дизайнеры нередко подбирают современные варианты отделки, такие как глянцевые панели, закаленное стекло, плитка и многое другое.
Несмотря на то, какие именно стили интерьера квартиры, фото которых можно увидеть в указанной категории, выбираются дизайнерами, основная концепция любого такого жилья предполагает наличие достаточного количества пространства. По этой причине для обстановки подбирается исключительно многофункциональная мебель, не загромождающая интерьер. Говоря об особенностях освещения, важно заметить, что оно представлено в обстановке квартиры разнородным светом – это точечные лампы по всему периметру комнат и люстры в отдельных зонах интерьера.
Стильный современный дизайн квартиры, фото которого можно найти в текущей рубрике, предполагает обязательное использование достаточного количества аксессуаров. Они могут представлять собой абстрактные картины и различные статуэтки, вазы и объемные конструкции.
Фото интерьера входной зоны квартиры в современном стиле
Фото интерьера столовой квартиры в современном стиле
Фото интерьера кухни квартиры в современном стиле
Фото интерьера спальни квартиры в современном стиле
Фото интерьера ванной комнаты квартиры в современном стиле
Фото интерьера кабинета квартиры в современном стиле Фото интерьера зоны отдыха квартиры в современном стиле
Фото интерьера постирочной квартиры в современном стиле
Фото интерьера столовой квартиры в стиле неоклассика
Фото интерьера гостиной квартиры в современном стиле
Фото интерьера кухни квартиры в современном стиле
Фото интерьера столовой квартиры в современном стиле
Фото интерьера кухни квартиры в современном стиле
Фото интерьера спальни квартиры в современном стиле
Фото интерьера гардеробной квартиры в современном стиле
Фото интерьера санузла квартиры в современном стиле
Фото интерьера детской квартиры в современном стиле
Фото интерьера гостевого санузла квартиры в современном стиле
Фото интерьера столовой квартиры в стиле неоклассика
Фото интерьера столовой квартиры в стиле неоклассика
Фото интерьера гостиной квартиры в современном стиле
Фото интерьера гостиной квартиры в современном стиле
Фото интерьера столовой квартиры в современном стиле
Фото интерьера спальни квартиры в современном стиле
Фото интерьера спальни квартиры в современном стиле
Фото интерьера ванной комнаты квартиры в современном стиле
Фото интерьера детской квартиры в современном стиле
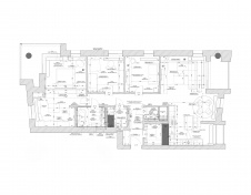
План семейной квартиры в новостройке Екатеринбурга.
Фото интерьера входной зоны квартиры в стиле неоклассика
Фото интерьера гостиной квартиры в стиле неоклассика
Фото интерьера зоны отдыха квартиры в стиле неоклассика