Современные пространства частных квартир требуют особого подхода к созданию уникального дизайна. Именно интерьеры квартир фото которых можно найти в соответствующей рубрике, обязаны максимально точно подчеркивать характер хозяев, а также соответствовать его потребностям и запросам касательно организации пространства.
Типичная квартира сегодня представляет собой вариант пространства, который обязательно имеет все необходимые условия для комфортного проживания хозяев. Именно поэтому дизайн интерьера квартир, фото которого демонстрируют разнообразие доступных направлений отделки, должен идеально соответствовать современным представлениям об удобстве и стиле. Главное правило, которого необходимо придерживаться при выборе подходящего варианта оформления, заключается в удовлетворении всех требований хозяина такой квартиры, как было упомянуто выше.
Основная задача отделки квартиры – это обеспечивать оптимальные условия для расслабленного времяпрепровождения. Поскольку для каждого отдельного человека понятие комфорта является разным, необходимо соответствовать основным категориям качества декора. Именно поэтому в процессе обустройства такого жилья следует придерживаться определенных правил. Прежде всего, создавая дизайн квартир, фото которых имеются в данной категории, важно использовать исключительно экологичные материалы – они не выделяют токсичных веществ, что позволит гарантировать безопасность такого оформления. Безусловно, различные стилистические направления, существующие сегодня, не всегда предусматривают применение древесины в качестве основного материала, чем известен традиционный интерьер бани фото которого указывает на данную черту, поэтому дизайнеры нередко подбирают современные варианты отделки, такие как глянцевые панели, закаленное стекло, плитка и многое другое.
Несмотря на то, какие именно стили интерьера квартиры, фото которых можно увидеть в указанной категории, выбираются дизайнерами, основная концепция любого такого жилья предполагает наличие достаточного количества пространства. По этой причине для обстановки подбирается исключительно многофункциональная мебель, не загромождающая интерьер. Говоря об особенностях освещения, важно заметить, что оно представлено в обстановке квартиры разнородным светом – это точечные лампы по всему периметру комнат и люстры в отдельных зонах интерьера.
Стильный современный дизайн квартиры, фото которого можно найти в текущей рубрике, предполагает обязательное использование достаточного количества аксессуаров. Они могут представлять собой абстрактные картины и различные статуэтки, вазы и объемные конструкции.
Фото интерьера столовой квартиры в стиле фьюжн
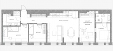
Планировка квартиры с двумя спальнями на Большой Дмитровке.
Фото интерьера коридора квартиры в стиле минимализм
Фото интерьера кухни квартиры в стиле минимализм
Фото интерьера столовой в стиле минимализм
Фото интерьера спальни квартиры в стиле минимализм
Фото интерьера гостевого санузла в стиле минимализм
Фото интерьера кухни квартиры в стиле фьюжн
Фото интерьера зоны отдыха квартиры в стиле фьюжн
Фото интерьера гостиной квартиры в стиле фьюжн
Фото интерьера спальни квартиры в стиле фьюжн
Фото интерьера спальни квартиры в стиле фьюжн
Фото интерьера балкона квартиры в стиле фьюжн
Фото интерьера гостиной квартиры в стиле минимализм
Фото интерьера столовой в стиле минимализм
Фото интерьера столовой в стиле минимализм
Фото интерьера санузла в стиле минимализм Фото интерьера ванной в стиле минимализм
Планировка семейной квартиры с общей гостиной в ЖК Green Park.
Фото интерьера входной зоны квартиры в стиле фьюжн
Фото интерьера столовой квартиры в стиле фьюжн
Фото интерьера спальни квартиры в стиле фьюжн
Фото интерьера кухни квартиры в стиле фьюжн
Фото интерьера санузла квартиры в стиле фьюжн
Фото интерьера зоны отдыха квартиры в стиле минимализм
Фото интерьера столовой в стиле минимализм
Фото интерьера кабинета в стиле минимализм
Фото интерьера детской квартиры в стиле минимализм
Фото интерьера гостиной квартиры в стиле фьюжн
Фото интерьера столовой квартиры в стиле фьюжн
Фото интерьера гостиной квартиры в стиле фьюжн