Дизайнеры Екатерина Блохина и Антон Корнеев оформили квартиру для семейной пары в престижной высотке, спроектированной при участии Филиппа Старка. «Современная архитектура комплекса с панорамным остеклением ориентировала в сторону инновационного дизайна, в то же время заказчики видели интерьер спокойным, уютным, с нотами французской классики. Мы предложили создать базовый интерьер с фоновым дизайном, который станет крепкой основой для предметов в любой эстетике. Заказчикам идея понравилась, но в итоге в процессе работы мы отошли от традиционного подхода и сделали акцент на ретро-дизайн, крупные формы и яркие предметы», - рассказывают авторы проекта.
Панорамные окна с непростой геометрией – основное преимущество дома и вместе с тем большая сложность. Дизайнерам следовало так оформить окна, чтобы сохранить специфику интерьера и в то же время сгладить чрезмерную архитектурную экспрессию, скорее уместную в офисном пространстве, нежели в частном жилье. Еще одной сложностью стала большая глубина квартиры: «Всего два, пусть и панорамных, окна на 110 кв. м – это не сильно много. Пришлось отказаться от кабинета в пользу большой спальни», - отмечают дизайнеры.
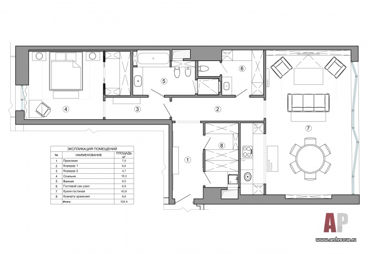
Квартира задумывалась проектировщиком как большая «евродвушка» с объединенной гостиной-кухней, спальней и большим центральным затемненным пространством для мокрых зон и подсобных помещений. Заказчики еще мечтали о кабинете, но отсутствие дневного света в центральной части квартиры вынудило отказаться от этой задумки. Вместо кабинета дизайнеры сделали удобные санузлы и гардеробные. Скрытые системы хранения позволили не перегружать жилые помещения шкафами, сделать объемы свободными и полными воздуха.
Интерьер получился сдержанным и ярким одновременно. Использование фоновой нейтральной палитры и осевая планировка позволили создать базу, крепкий «костяк» для ярких и броских деталей. Это ощущение поддерживают высокие двери (высотой 2, 50 м), симметричная раскладка гипсовых молдигов по стенам и правильной геометрии книжный стеллаж, занявший всю торцевую стену в гостиной. Для оформления стен дизайнеры выбрали сложные пастельные оттенки с теплым подтоном, с нейтральными стенами в гостиной контрастирует отделка задней поверхности открытых шкафов темным оливковым цветом, а в спальне – припыленный сиреневый текстиль.
Яркими акцентами на этом фоне выступают винтажная мебель, картины и статуэтки, они задают тон и формируют позитивный настрой.
Комплектация объекта
Строительные и отделочные материалы и изделия
Изделия из дерева, двери, компания Porta Robusta
Лепной декор из гипса, поставщик «Дикарт»
Декоративная финишная отделка стен, краска Little Greene, поставщик «Салон краски»
Камень, поставка и работы по камню Artishock
Свет, поставщики Eichholtz, IDC Collection; винтаж Dutchbone, поставщик VivaVintage рук Евгения Кудрявцева
Ковры, поставщик Jerome Botanic
Искусство, ArtBrut Moscow
Аксессуары вазы Menu и винтаж, скульптуры на камине и маска, поставщик IDC Collection
Текстиль постельное белье и плед Atelier Tati, декоративные подушки Enere
Сервировка стола, сервиз L’Appartement
Сантехника Villeroy & Boch, Jacob Delafon, Vitra, поставщик «Макслевел»
Мебель
Гостиная диван B&B Italia, поставщик «Макслевел»; кресло и кофейный столик Zuiver, поставщик VivaVintage; кресло Fogia (модель Bollo) и кофейный столик, поставщик L’Appartement; кофейный стол, поставщик IDC Collection
Столовая обеденный стол Bernhardt, поставщик White interiors; стулья, поставщик IDC Collection
Кухня Nolte Kuchen
Спальня кровать B&B Italia, поставщик «Макслевел», кресло, поставщик IDC Collection; комод, поставщик «Мастерская Кати Гердт»
Оборудование
Аудио- и видеотехника Bose
Оборудование кухни Miele, Kuppersbusch
Фото Михаил Степанов
Стилист Ксения Брейво
Трехэтажный загородный дом с патиной времени
Московская квартира с европейским декором Поиски нового офиса привели владельцев архитектурного бюро «Крупный план» к неожиданному, но очень значимому шагу – приобретению особняка - объекта культурного наследия XIX века...























Созидание как эволюция: офис бюро «Крупный план»
Равновесие, цельность и гармония как результат работы архитектора…
Ландшафтный архитектор. Инженер. Проектировщик. Логик.
«Мода в интерьере — это зеркало нашего быта»...
Храм в городе 
11
22
33
44
55
66
77
88
99
1010 