Архитекторы HORIZON STUDIO не просто реконструировали двухэтажный каркасный дом, построенный по типовому проекту, но увеличили площадь объекта в два раза и превратили его в место силы для активной семьи, которая много путешествует и работает.
Дом расположен на участке соснового леса площадью в гектар на самом берегу Истринского водохранилища – идеальная локация для отдыха после трудовых будней: само окружение здесь наполняет умиротворением и спокойствием.
Проект включал укрепление каркаса существующего двухэтажного дома, пристройку павильона бассейна, создание двухсветной гостиной и протяженной террасы, вдоль обращенного на водный пейзаж фасада и прокладку новых инженерных сетей.
Внешне дом изменился кардинально: отделанный натуральным деревом с открытыми террасами он растворяется в великолепном природном ландшафте.
В ходе реконструкции основного двухэтажного объема архитекторы добавили большую гостиную и столовую общей площадью 100 кв. м, создав светлое и «дышащее» пространство.
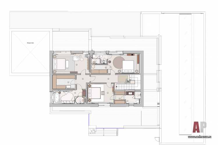
На втором этаже он провели полный демонтаж перегородок для замены инженерных сетей. Изначальную планировку с тремя спальня, объединенными центральным холлом, преимущественно сохранили. Исключением стал мастер-блок, который выделили в изолированные апартаменты, включающие собственно спальню, санузел и гардеробную.
К дому примыкает домашний СПА-комплекс площадью 200 кв. м с 15-ти метровым бассейном, сауной, массажным кабинетом и душевыми. Его отличительная архитектурная особенность – зенитный фонарь, который обеспечивает помещение естественным светов в любое время года.
Идея проекта – уютный загородный дом, интерьер которого гармонично перекликается с окружающей природой: сосновым лесом и рекой. Но при этом не рустикальный или минималистский, а элегантный и спокойный, пронизанный светом, отражениями от воды, и игрой теней высоких сосен.
Особенность места и уникальность интерьера подчеркивают столярные изделия, мебель и аксессуары, выполненные локальными мастерскими. Такой тесный тандем позволил реализовать идеальную цветовую палитру, добиться гармоничных оттенков в тонировке деревянных элементов и соединить фоновый дизайн с акцентным европейским текстилем.
Комплектация объекта
Строительные и отделочные материалы и изделия
Изделия из дерева, Фабрика Акимова
Двери, поставщик Софья
Финишная отделка, краска Little Greene, Zoffany
Декоративная штукатурка Derufa
Камин, компания Печи Горбунова
Лестницы и ограждения, компания Lankoni
Паркет, поставщик Coswick
Натуральный камень, поставщик Venezia Stone Company
Керамогранит, керамическая плитка, поставщики Laminam, And28
Свет, поставщик 2К Светомастерская
Ковры, поставщики Александровская мануфактура, Art de Vivre, KulturaKovrov
Сантехника Gessi, Zucchetti, Duravit, поставщик And28
Мебель
Кухня, гардеробная и постирочная, изготовление Lithium
Мебель по авторским эскизам – изготовление Фабрика Акимова
Оборудование
Розетки и выключатели из латуни Plug Electric
Бассейн, компания Allpools
Сауна, компания Русский мастер
Деревянный дом в Красногорске
Современная петербургская классика О специфике современного дизайна деревянных изделий, об особенностях принципа единства цветового решения, экспромтах в процессе работы и технологиях, которые продиктованы дизайнерским проектом...










































«Мода в интерьере — это зеркало нашего быта»...
Храм в городе
Три кита современного стиля
Проект: Аэропорт «Кавказ»
«Я рассматриваю интерьер как сценарий жизни конкретного человека» 
11
22
33
44
55
66
77
88
99
1010 
«С этим заказчиком мы работаем давно – проектируем для его компаний интерьеры круизных судов. Поэтому его эстетическое и пространственное видение было нам знакомо и близко. Мы стремились создать качественный архитектурный объект для искушенных клиентов».