Светлая и воздушная неоклассика в современной высотке – таков лейтмотив интерьера, спроектированного дизайнером Аленой Александровой в новом петербургском ЖК Neva House.
Заказчик живет на два города: работает в Москве, а отдыхает с семьей в Санкт-Петербурге. Он поставил задачу создать классическую, но нестандартную квартиру: живую, воздушную с современным прочтением традиционных решений. Важными критериями были легкость, воздушность пространства и наличие ярких акцентных элементов. Дизайнер соединила классические принципы и современную эстетику, предложив свое прочтение петербургской классики. Получился живой и воздушный интерьер, с яркими деталями и скрытыми смыслами.
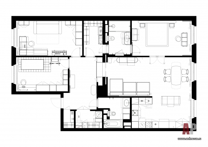
Квартира имеет удачную планировку: центральный холл объединяет разные по назначению зоны. Чтобы визуально нивелировать большое количество дверей, которое характерно для подобных помещений и создать целостное восприятие пространства, дизайнер использовали скрытый монтаж, арочную конструкцию с тонированным стеклом, а также замаскировала два проема волнистыми деревянными панелями.
Справа от входа располагается дневная зона, включающая кухню, столовую и гостиную. Из нее организован проход в хозяйскую спальню: тонированные распашные двери выглядят эстетично и украшают лаконичный интерьер гостиной. Кроме того, через распахнутые двери гостиной просматривается акцентный элемент в спальне – глубокий горчично-желтый цвет изголовья.
Отдельным блоком выделены две детские комнаты. Главная ванная соединяется с холлом через проходную гардеробную. На входе организованы гостевой санузел и постирочная. Все удобно и логично!
Этот интерьер – деликатный микс из классических деталей и современных решений. Лепнина, многоуровневые потолочные карнизы, фактура мрамора на острове и фартуке и каскадная люстра над обеденным отсылают к классике, а тотальный монохром в мебели, освещении и искусстве – к современности.
Особое внимание дизайнер уделила фактурам, многоплановым декоративным сочетаниям и точечно-сфокусированным цветовым акцентам. Вместе с авторскими художественными элементами они создают насыщенную декоративную среду, которая живет и меняется вместе с хозяевами.
Комплектация объекта
Строительные и отделочные материалы и изделия
Изделия из дерева, зеркальные панели, компания Wallstudio
Раздвижные арочные двери, компания Decus
Декоративные зеркала ручной работы, компания Mirrion
Обои ручной работы Fresq
Плитка, поставщик АРДО
Свет декоративный, поставщики Correct Form Gallery, Leds C4, Lodes
Свет технический, поставщик Technolight
Световое панно-космонавт, компания Neon show
Аксессуары Nomon, Guaxs, Laboratory, Warm Nordic, Audo Copenhagen, Kristina Dam Studio, Serax, Paola C, 101 Copenhagen, Kiasmo
Постельное белье, поставщик Fazzini Atelier
Декоративные подушки, пледы, покрывала, поставщик Josephine Testa, Cinelli Piumini, Signoria Firenze
Ковры, поставщик Kover.ru
Сантехника Ceramica Cielo, смесители Ritmonio, мраморные аксессуары для ванной комнаты TeakHouse, поставщик АРДО
Искусство, ArtMalley
Мебель
Прихожая консоль, пуфик, портал с зеркальными шкафчиками, на заказ
Гостиная диван Bino home; столик журнальный и комод ТВ, на заказ
Столовая стол обеденный Carin Casa, стулья обеденные Unika Møblär
Кухня гарнитур, на заказ
Спальня кровать, тумбы, комод, столик, на заказ; стул Bino home
Комната девочки шкафы, кровать, стол с комодом, на заказ; пуф Ferm Living, стул рабочий Bino home
Комната мальчика шкафы, кровать, на заказ; стеллаж и стул рабочий Bino home
Мебель на заказ – изготовление Wallstudio
Дом с отражениями сосен и воды
Светлый дом с природными фактурами О специфике современного дизайна деревянных изделий, об особенностях принципа единства цветового решения, экспромтах в процессе работы и технологиях, которые продиктованы дизайнерским проектом...




























«Мода в интерьере — это зеркало нашего быта»...
Храм в городе
Три кита современного стиля
Проект: Аэропорт «Кавказ»
«Я рассматриваю интерьер как сценарий жизни конкретного человека» 
11
22
33
44
55
66
77
88
99
1010 