Главная задача тех владельцев, которые имеют небольшие квартиры, состоит в том, чтобы создать максимальный комфорт в ограниченном пространстве. Правильно выполненный дизайн интерьера небольших квартир фото которого собраны в разделе, предполагает наличие четкого зонирования всего пространства. Деление можно осуществлять, используя мебель, различные фактуры и цвета отделочных материалов, потолки и полы разных уровней.
В оформлении небольших квартир используется зачастую однородное напольное покрытие, одна цветовая гамма для стен. Таким образом, помещения объединяются цветом, фактурой, стилем. Также интерьеры небольших квартир, фото которых представлены в рубрике, предполагают применение ярких оттенков, темных тонов. Именно такие цвета дают глубину и насыщенность, а пространство, в результате, от таких сочетаний только выиграет. На сайте можно ознакомиться, как и с фото проектов дома бани, так и с фото удачно выполненных интерьеров маленьких квартир. Высокие потолки увеличивают размеры квартиры. Чтобы сделать их визуально выше, используются обои или краска, которая светлее на один или несколько тонов, чем стены.
В дизайне интерьеров маленьких квартир особое внимание уделяется освещению. Не рекомендуется применять массивные, слишком большие и объемные приборы. Отличным вариантом будут изысканные светильники, бра. Увеличить помещение поможет точечное освещение. Удачно выполненный дизайн интерьера небольших квартир, фото которых есть на нашем сайте, предполагает использование небольшого количества аксессуаров и декоративных элементов. Главное, чтобы они подчеркивали оригинальность и индивидуальность обстановки.
Интерьеры небольших квартир предполагают применение компактной, многофункциональной мебели. Это могут быть диваны-трансформеры, складные столы, шкафы-купе, модульные системы для хранения, комоды, стеллажи. По возможности максимально используются так называемые скрытые резервы. Это эркеры, выступы и ниши в стенах, антресоли.
При оформлении интерьеров маленьких квартир важно избавляться от «мертвых зон», которые могут образоваться в результате нерационального использования комнат. Эффективным приемом создания уютного и комфортного жилья в небольшом помещении является использование складных или раздвижных дверей, перегородок. Они могут быть выполнены из пластика, ткани, стекла. Зрительно увеличить пространство помогут зеркальные панели, которые успешно закрепляются не только на стенах, но и на потолках.
Фото интерьера гостевого санузла квартиры в стиле эко
Планировка 3-х комнатной квартиры с террасой на крыше.
Фото интерьера лестничного холла двухэтажной квартиры в стиле лофт
Фото интерьера кухни двухэтажной квартиры в стиле лофт
Фото интерьера столовой двухэтажной квартиры в стиле лофт
Фото интерьера детской двухэтажной квартиры в стиле лофт
Фото интерьера кабинета двухэтажной квартиры в стиле лофт
Фото интерьера санузла двухэтажной квартиры в стиле лофт
Фото интерьера входной зоны квартиры в стиле фьюжн
Фото интерьера гостиной квартиры в стиле фьюжн
Фото интерьера гостевого санузла квартиры в стиле эко
Фото интерьера входной зоны двухэтажной квартиры в стиле лофт
Фото интерьера зоны отдыха двухэтажной квартиры в стиле лофт
Фото лестницы двухэтажной квартиры в стиле лофт
Фото интерьера кухни двухэтажной квартиры в стиле лофт
Фото лестницы двухэтажной квартиры в стиле лофт
Фото интерьера спальни двухэтажной квартиры в стиле лофт
Дизайнерская планировка 1 этажа с расстановкой мебели.
Фото интерьера входной зоны квартиры в стиле фьюжн
Фото интерьера гостиной квартиры в стиле фьюжн
Фото интерьера гостевого санузла квартиры в стиле эко
Фото интерьера гостиной двухэтажной квартиры в стиле лофт
Фото лестницы двухэтажной квартиры в стиле лофт
Фото интерьера каминной двухэтажной квартиры в стиле лофт
Фото интерьера кухни двухэтажной квартиры в стиле лофт
Фото лестницы двухэтажной квартиры в стиле лофт
Фото интерьера спальни двухэтажной квартиры в стиле лофт
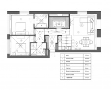
Исходный план двухкомнатной квартиры на последнем этаже ЖК «Соколиный форт». Общая площадь – 73 кв. м.
Дизайнерская планировка антресольного этажа с расстановкой мебели.
Фото интерьера коридора квартиры в стиле фьюжн