Квартира-трансформер.
Архитектор Наталья Сальник оформила квартиру площадью 53 кв. м, предназначенную для сдачи в аренду. При небольшом бюджете и запросе на максимальную практичность она создала эффектный интерьер с хорошей эргономикой, строгой геометрией и природными фактурами. Основную ставку она сделала на качественную фоновую отделку и стеновые панели из шпона ореха.
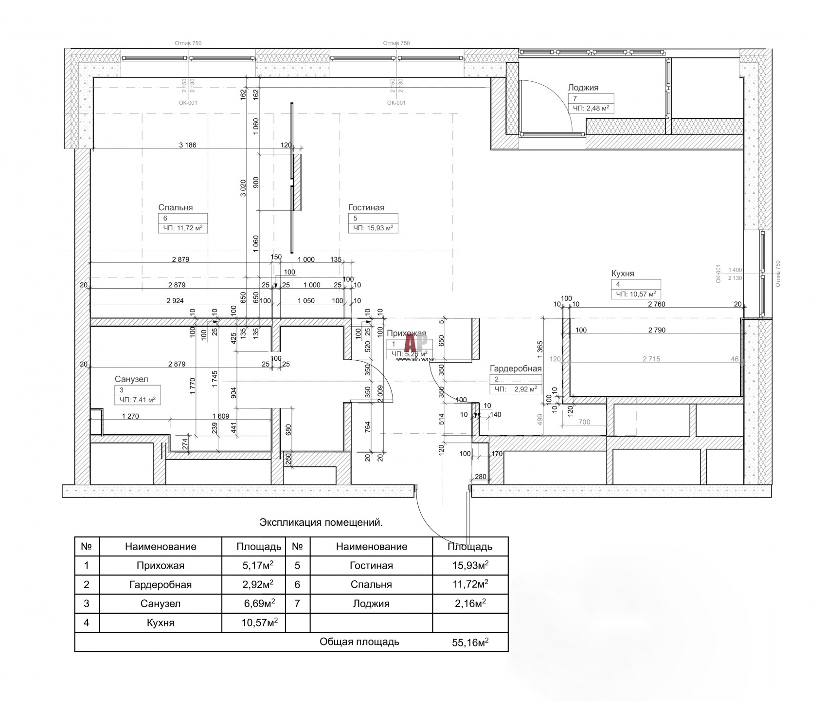
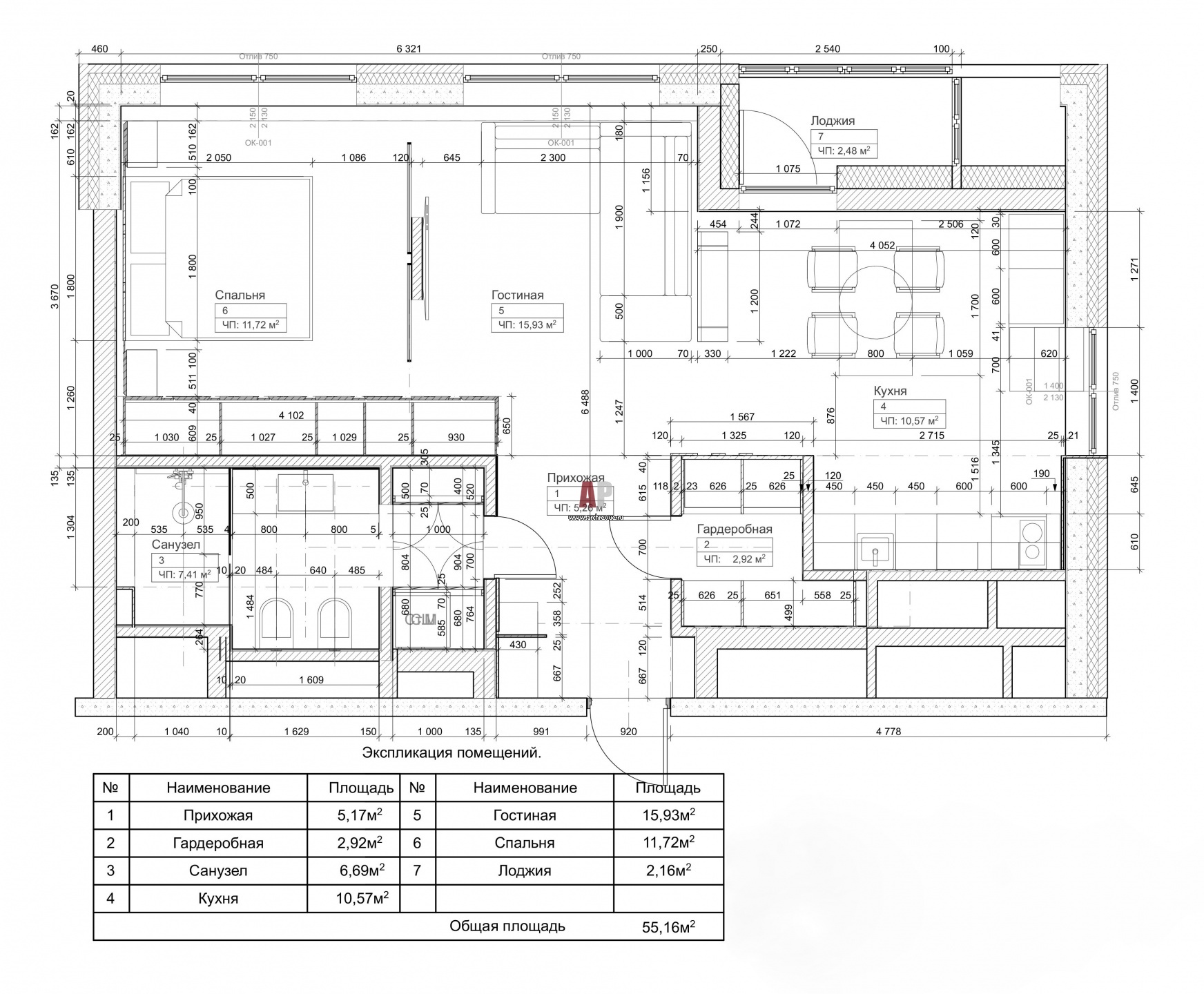
Квартира расположена в ЖК «Сити Парк», ее основные преимущества – урбанистические виды на стеклянные высотки Москва-Сити, правильные пропорции помещений и выход на крышу. Изначально она задумывалась застройщиком как классическая «евродвушка» с изолированной крошечной спальней и общей кухней-гостиной, но Наталья Сальник превратила ее в комфортную квартиру-трансформер, удобную для проживания как одного человека, так и молодой семьи.
Прежде всего она убрала глухую перегородку между спальней и общей зоной, установила две пары раздвижных дверей с тонировкой и зеркальной поверхностью. Они позволяют зонировать разные по назначению помещения, при раскрытых же дверях создается ощущение единого общего пространства – большого, с тремя окнами по фасаду и хорошей освещенностью. Визуальную цельность пространства поддерживает единая декоративная отделка: выкрашенные в светлый цвет стены, общее напольное покрытие из керамогранита с фактурой камня, а главное – вертикальные «ленты» стеновых панелей из шпона ореха со скрытой подсветкой и вставками из черного стекла.
Все столярные изделия в квартире, кухонная мебель и встроенные шкафы изготовлены на заказ по чертежам архитектора Натальи Сальник мастерами российской компании «Ассоциация русских мастеров». В производстве использован шпон дерева и МДФ со светлой эмалью. Как, например, в дизайне кухни, которую следовало максимально облегчить и растворить в пространстве. Гардеробная при входе, напротив, оформлена черным стеклом, что придает интерьеру графичность и интересную динамику.
Мягкая мебель была заказана на российской фабрике Relotti. Светильники приобретены в салоне Centrsvet. В санузле использован керамогранит двух оттенков – с активным серым рисунком и нейтральной однотонной фактурой. Все работы по камню осуществляла компания «Стройлюкс». Из интересных приемов - отделка стен и дверей в прихожей керамогранитом «под штукатурку», что обеспечивает интерьеру не только визуальную цельность, но и большую практичность в эксплуатации.





Потолки. Декоративные рельефы
Форма-Польза-Красота. Три кита правильного интерьера
Кухня. Баланс красоты, функции, качества.
«Я люблю лепнину...»
Созидание как эволюция: офис бюро «Крупный план» 
