Все большей популярностью среди городских жителей пользуется жилье в малоэтажных домах с многоуровневыми квартирами. По этой причине специалисты рассматривают дизайн интерьера таунхаусов фото которых представлены в категории, как один из самых востребованных вариантов отделки пространства современного жилья.
Прежде чем говорить непосредственно о декоративной составляющей данного вида помещения, стоит рассмотреть его основные характеристики. Данный тип домов появился в России уже в конце прошлого столетия и уже в начале 2000-х годов превратился в новую тенденцию в обустройстве пригородов и малозаселенных частей городов. Его концепция предполагает, что хозяин каждой квартиры имеет собственный отдельный вход в дом, а также нередко – гараж и небольшой участок перед зданием.
Исходя из упомянутых выше особенностей таунхаусов, следует отметить типичные черты в его отделке. Поскольку речь идет о многоуровневой квартире, основная задача специалиста заключается в гармоничном соединении всех элементов, составляющих дизайн таунхауса, фото которого демонстрируют их, и создании единой стилистики всего пространства. Такой эффект достигается посредством использования конкретной цветовой гаммы, а также через соответствие определенному направлению в декоре.
Довольно важной деталью в обустройстве таунхауса является грамотный подбор цветовой палитры. Как правило, декораторы отдают предпочтение пастельным тонам, которые представлены в качестве основы. Зачастую они дополняются более насыщенными вариантами цветов – это могут быть все оттенки коричневого и даже черный, подобно тому, как эффектно оформляется интерьер бара фото которого позволяет рассмотреть данное сходство.
Ключевой задачей декораторов в процессе работы над дизайном таунхауса является создание жилья, соответствующего индивидуальным потребностям хозяев, а также такого, что имеет домашнюю атмосферу. Исходя из этого, специалисты пристальное внимание обращают на вопрос освещения – интерьеры таунхаусов, фото которых имеются в рубрике, оснащаются хрустальными люстрами, а также торшерами и бра.
Фото интерьера коридора дома в стиле кантри
Фото интерьера столовой дома в стиле кантри
Фото интерьера кухни дома в стиле кантри
Фото интерьера лестничного холла дома в стиле кантри
Фото интерьера санузла дома в стиле кантри
Фото интерьера гостевого санузла дома в стиле кантри
Фото интерьера кухни таунхауса в стиле неоклассика
Фото интерьера зоны отдыха таунхауса в стиле неоклассика
Фото интерьера столовой таунхауса в стиле неоклассика
Фото интерьера гардеробной дома в стиле кантри
Фото интерьера кухни дома в стиле кантри
Фото интерьера кухни дома в стиле кантри
Фото интерьера лестницы дома в стиле кантри
Фото интерьера спальни дома в стиле кантри
Фото интерьера санузла дома в стиле кантри
Фото интерьера входной зоны таунхауса в стиле неоклассика Фото интерьера лестницы таунхауса в стиле неоклассика
Фото интерьера гостиной таунхауса в стиле неоклассика
Фото интерьера коридора таунхауса в стиле неоклассика
Фото интерьера столовой таунхауса в стиле неоклассика
Фото интерьера спальни таунхауса в стиле неоклассика
Фото интерьера каминной дома в стиле кантри Фото интерьера гостиной дома в стиле кантри
Фото интерьера столовой дома в стиле кантри
Фото интерьера кальянной дома в стиле кантри
Фото интерьера зоны отдыха дома в стиле кантри Фото интерьера мансардыдома в стиле кантри
Фото интерьера спальни дома в стиле кантри
Фото интерьера ванной комнаты дома в стиле кантри
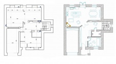
План 1 этажа 3-х этажного таунхауса до и после перепланировки.
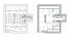
План мансарды 3-х этажного таунхауса до и после перепланировки.
Фото интерьера гостиной таунхауса в стиле неоклассика
Фото интерьера кабинета таунхауса в стиле неоклассика