Дизайнер Арина Волкова создала неоклассический интерьер, который восхищает не помпезностью, а сбалансированной атмосферой, где все продумано до мелочей и собрано в единую композицию.
Он построен на базовых принципах, что в сумме рождает гармонию: хорошие пропорции, правильно выставленный свет, качественные отделочные материалы, доведенные до логического завершения идеи. Такие проекты не зависят от трендов и долго остаются актуальными.
Особенность реализации проекта – сжатые сроки и решение многих строительных вопросов без участия заказчика: он приезжал на стройку всего несколько раз и даже для обсуждения материалов потребовалось три-четыре встречи.
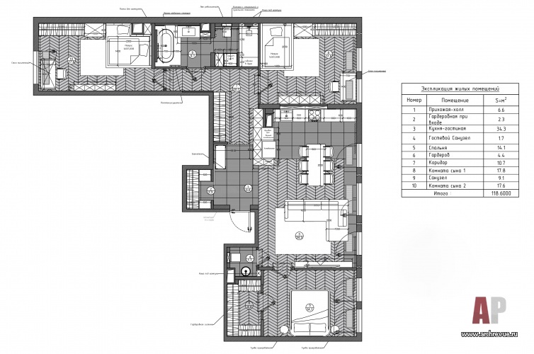
Квартира площадью 130 кв. м расположена в ЖК премиум-класса «Маленькая Франция» в Санкт-Петербурге и предназначена для проживания семейной пары с двумя детьми.
Техническое задание включало создание просторной кухни-гостиной, мастер-спальни с гардеробной, двух детских и двух санузлов: основного (с ванной и душевой кабиной) и небольшого гостевого.
Исходная планировка, по мнению дизайнера, была удачной: просторные помещения, большие окна, два санузла и места для гардеробных. Все пожелания полностью соответствовали возможностям имеющейся планировки.
В итоге получилась удобная для проживания семьи с детьми квартира. Общая гостиная делит пространство на две части: родительскую территорию (вход в нее организован из общей зоны, через дверь-невидимку) и детский блок с распашными комнатами, объединенными внутренним коридором и общей мокрой зоной.
Идея проекта – элегантный интерьер с нотами французской классики, мягкой, сдержанной атмосферой и светлой цветовой палитрой.
Он решен крупными мазками: большие цветовые заливки, крупный декор, открытые чистые поверхности. Стены здесь не столько фон, сколько активный элемент композиции: панели, встроенные системы хранения, дверные полотна и декоративные вставки придают интерьеру целостность, поддерживают масштаб.
В оформлении ставка сделана на материалы с природной текстурой: дубовый паркет, декоративная штукатурка, керамогранит с фактурой мрамора и оникса. Практически монохромный интерьер в теплых бежевых, сложных коричневых и зеленых оттенках оживляют металлические элементы – не кричаще золотые, а изящно сдержанные.
В выборе мебели дизайнер руководствовалась триединством «удобство-качество-красота». Посуда, постельное белье и мелкий декор подбирались вместе с заказчицей, с которой у автора проекта оказалось идеальное совпадение.
Комплектация объекта
Строительные и отделочные материалы и изделия
Изделия из дерева, компания Diosmebel
Двери, поставщик Софья
Декоративная штукатурка, поставщик Арт Коллекция
Обои и краска, поставщик Piterra
Паркет, поставщик Viva Parket
Плитка, поставщик Атмосфера
Свет, поставщик Bright Buro
Ковры, поставщик Kover.ru
Аксессуары, зеркала, стекло, поставщик Frotelli
Сантехника, поставщик Кредит Керамика
Мебель
Гостиная диван Molteni &C, кресло Giorgetti, столик Giulio Marelli
Столовая стол Carin Casa, стулья Potocco
Кухня Giulia Novars
Спальня кровать Molteni &C, столики Cattelan Italia
Детские, на заказ
Корпусная мебель на заказ – изготовление Diosmebel
Мягкая мебель на заказ – изготовление Rossi
Оборудование
Электроустановочные изделия, поставка и монтаж Bright Buro
Шале возле лесного озера Всероссийский архитектурный молодежный фестиваль «Перспектива 2026» состоялся в Москве. 38 российских и зарубежных городов, 33 архитектурных вуза и около 180 конкурсных работ боролись за звание лучших…
























Проект-победитель «Ломоносов-2»
Перспектива 2026. Итоги.
Смотр искусства АРТ МОСКВА
Наука в городе: Биомедицинский центр
Арт-проект «ВМЕСТЕ» 
11
22
33
44
55
66
77
88
99
1010 