Фото интерьера бассейна дома в стиле неоклассика
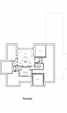
Планировка 3 этажа 3-х этажной резиденции для большой семьи.
Фото интерьера входной зоны дома в классическом стиле
Фото интерьера зоны отдыха дома в классическом стиле
Фото интерьера гостиной дома в классическом стиле
Фото интерьера кухни дома в классическом стиле
Фото интерьера зоны отдыха дома в классическом стиле
Фото интерьера спальни дома в классическом стиле
Фото интерьера спальни дома в классическом стиле
Планировка 1 этажа 3-х этажной резиденции для большой семьи.
Фото фасада дома в классическом стиле
Фото беседки дома в классическом стиле
Фото интерьера входной зоны дома в классическом стиле
Фото интерьера зоны отдыха дома в классическом стиле
Фото интерьера гостиной дома в классическом стиле
Фото интерьера кухни дома в классическом стиле
Фото интерьера зоны отдыха дома в классическом стиле
Фото интерьера ванной дома в классическом стиле
Фото интерьера библиотеки дома в классическом стиле
Планировка 2 этажа 3-х этажной резиденции для большой семьи.
Фото фасада дома в классическом стиле
Фото фасада дома в классическом стиле
Фото беседки дома в классическом стиле
Фото интерьера лестницы дома в классическом стиле Фото интерьера лестничного холла дома в классическом стиле
Фото интерьера каминной дома в классическом стиле
Фото интерьера столовой дома в классическом стиле
Фото интерьера гостиной дома в классическом стиле
Фото интерьера кухни дома в классическом стиле
Фото интерьера зоны отдыха дома в классическом стиле
Фото интерьера гардеробной дома в классическом стиле