Фото интерьера тренажерного зала дома в классическом стиле
Фото интерьера хаммама дома в классическом стиле
Фото фасада дома в стиле китч
Фото интерьера входной зоны дома в стиле китч
Фото интерьера столовой дома в стиле китч
Фото интерьера лестницы дома в стиле китч
Фото интерьера спальни дома в стиле китч
Фото интерьера гардеробной дома в стиле китч
Фото интерьера домашнего кинотеатра дома в классическом стиле
Фото интерьера бассейна дома в классическом стиле
Планировка 2 этажа частного загородного особняка площадью 1700 кв. м.
Фото фасада дома в стиле китч
Фото интерьера входной зоны дома в стиле китч
Фото интерьера гостиной дома в стиле китч
Фото интерьера зоны отдыха дома в стиле китч
Фото интерьера гостиной дома в стиле китч
Фото интерьера лестничного холла дома в стиле китч
Фото интерьера санузла дома в стиле китч
Фото интерьера санузла дома в стиле китч
Фото интерьера зоны отдыха дома в классическом стиле
Планировка эксплуатируемого цоколя частного загородного особняка площадью 1700 кв. м.
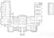
Планировка 1 этажа частного загородного особняка площадью 1700 кв. м.
Фото фасада дома в стиле китч
Фото интерьера входной зоны дома в стиле китч
Фото интерьера гостиной дома в стиле китч
Фото интерьера каминной дома в стиле китч
Фото интерьера лестницы дома в стиле китч
Фото интерьера библиотеки дома в стиле китч
Фото интерьера каминной дома в стиле китч
Фото интерьера санузла дома в стиле китч