Фото интерьера спальни пентхауса в стиле фьюжн
Фото интерьера ванной пентхауса в стиле фьюжн
Фото интерьера детской пентхауса в стиле фьюжн
Фото интерьера веранды пентхауса в стиле фьюжн
Фото интерьера веранды пентхауса в стиле фьюжн
Фото интерьера гостиной квартиры в стиле фьюжн
Фото интерьера каминной квартиры в стиле фьюжн
Фото интерьера столовой квартиры в стиле фьюжн
Фото интерьера спальни квартиры в стиле фьюжн
Фото интерьера гардеробной квартиры в стиле фьюжн
Фото интерьера спальни пентхауса в стиле фьюжн
Фото интерьера ванной пентхауса в стиле фьюжн
Фото интерьера детской пентхауса в стиле фьюжн
Фото интерьера веранды пентхауса в стиле фьюжн
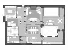
План первого этажа двухэтажного пентхауса в историческом особняке.
Фото интерьера гостиной квартиры в стиле фьюжн
Фото интерьера зоны отдыха квартиры в стиле фьюжн
Фото интерьера гостиной квартиры в стиле фьюжн
Фото интерьера кухни квартиры в стиле фьюжн
Фото интерьера спальни квартиры в стиле фьюжн
Фото интерьера кабинета квартиры в стиле фьюжн
Фото интерьера санузла пентхауса в стиле фьюжн
Фото интерьера детской пентхауса в стиле фьюжн
Фото интерьера детской пентхауса в стиле фьюжн
Фото интерьера гостевого санузла пентхауса в стиле фьюжн
План второго этажа двухэтажного пентхауса в историческом особняке.
Фото интерьера входной зоны квартиры в стиле фьюжн
Фото интерьера гостиной квартиры в стиле фьюжн
Фото интерьера столовой квартиры в стиле фьюжн
Фото интерьера кухни квартиры в стиле фьюжн