Фото интерьера спальни квартиры в стиле фьюжн
Фото интерьера санузла квартиры в стиле фьюжн
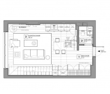
Планировка небольшой квартиры с антресолью, 88 кв. м.
Фото лестницы двухэтажной квартиры в стиле лофт
Фото лестницы двухэтажной квартиры в стиле лофт
Фото интерьера кухни двухэтажной квартиры в стиле лофт
Фото лестницы двухэтажной квартиры в стиле лофт
Фото интерьера кабинета двухэтажной квартиры в стиле лофт
Фото интерьера санузла двухэтажной квартиры в стиле лофт
Фото интерьера входной зоны квартиры в стиле неоклассика Фото интерьера столовой квартиры в стиле неоклассика
Фото интерьера спальни квартиры в стиле фьюжн
Фото интерьера гостевого санузла квартиры в стиле фьюжн
Фото интерьера гостиной двухэтажной квартиры в стиле лофт
Фото интерьера лестничного холла двухэтажной квартиры в стиле лофт
Фото интерьера кухни двухэтажной квартиры в стиле лофт
Фото интерьера столовой двухэтажной квартиры в стиле лофт
Фото интерьера детской двухэтажной квартиры в стиле лофт
Фото интерьера спальни двухэтажной квартиры в стиле лофт
Исходный план двухкомнатной квартиры на последнем этаже ЖК «Соколиный форт». Общая площадь – 73 кв. м.
Дизайнерская планировка антресольного этажа с расстановкой мебели.
Фото интерьера санузла квартиры в стиле фьюжн
Фото интерьера гостевого санузла квартиры в стиле фьюжн
Фото интерьера входной зоны двухэтажной квартиры в стиле лофт
Фото интерьера зоны отдыха двухэтажной квартиры в стиле лофт
Фото интерьера каминной двухэтажной квартиры в стиле лофт
Фото интерьера кухни двухэтажной квартиры в стиле лофт
Фото лестницы двухэтажной квартиры в стиле лофт
Фото интерьера спальни двухэтажной квартиры в стиле лофт
Дизайнерская планировка 1 этажа с расстановкой мебели.
Фото интерьера гостиной квартиры в стиле неоклассика