Фото интерьера гостевой спальни дома в стиле неоклассика
План первого этажа двухэтажного дома в коттеджном поселке «Клуб 2071» (проект архитектора Сергея Скуратова).
Фото фасада дома в стиле неоклассика
Фото интерьера гостиной дома в стиле неоклассика
Фото интерьера гостиной дома в стиле неоклассика
Фото интерьера столовой дома в стиле неоклассика
Фото лестницы дома в стиле неоклассика
Фото интерьера спальни дома в стиле неоклассика
Фото интерьера детской дома в стиле неоклассика
Фото интерьера санузла дома в стиле неоклассика
Фото интерьера мансарды дома в стиле неоклассика
План мансарды двухэтажного дома в коттеджном поселке «Клуб 2071» (проект архитектора Сергея Скуратова).
Фото интерьера гостиной дома в стиле неоклассика
Фото интерьера гостиной дома в стиле неоклассика
Фото интерьера гостиной дома в стиле неоклассика
Фото интерьера зоны отдыха дома в стиле неоклассика
Фото лестницы дома в стиле неоклассика
Фото интерьера спальни дома в стиле неоклассика
Фото интерьера ванной дома в стиле неоклассика
Фото интерьера детской дома в стиле неоклассика
Фото интерьера мансарды дома в стиле неоклассика
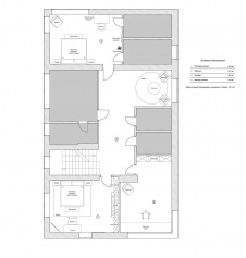
План второго этажа двухэтажного дома в коттеджном поселке «Клуб 2071» (проект архитектора Сергея Скуратова).
Фото интерьера входной зоны дома в стиле неоклассика
Фото интерьера каминной дома в стиле неоклассика
Фото интерьера зоны отдыха дома в стиле неоклассика
Фото интерьера столовой дома в стиле неоклассика
Фото интерьера кухни дома в стиле неоклассика
Фото лестницы дома в стиле неоклассика
Фото интерьера детской дома в стиле неоклассика
Фото интерьера гостевого санузла дома в стиле неоклассика