Закрыть галерею
Изображение 26 из 26

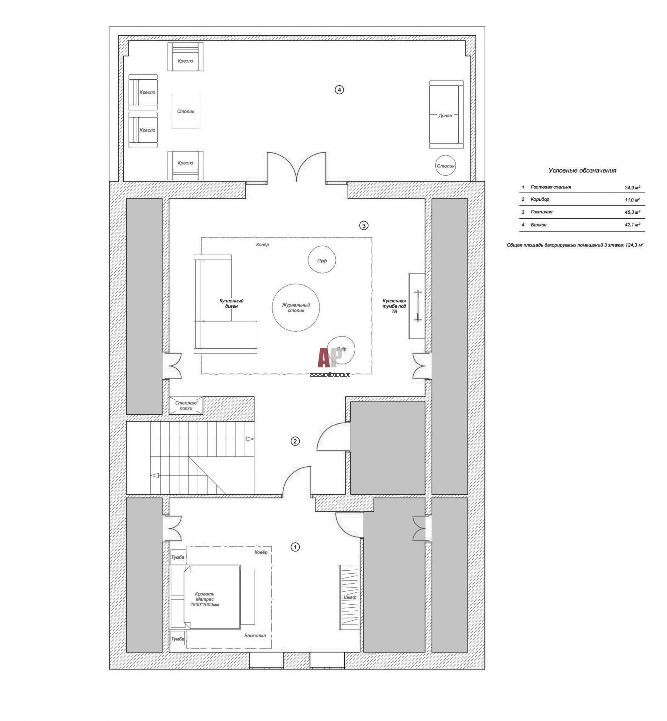
План мансарды двухэтажного дома в коттеджном поселке «Клуб 2071» (проект архитектора Сергея Скуратова).

Планировка мансардного этажа 2-х этажного современного дома с мансардой. Общая площадь – 600 кв. м. 

Проект: Белый дом с воздушным интерьером в стиле неоклассика
Автор проекта: Мезенцева Ксения
Объект: Белый дом с мансардой
Общая площадь: 600 кв.м.