Дизайнеры Ариана Ахмад и Ольга Трейвас оформили компактную квартиру на последнем этаже жилого комплекса «Сады Пекина». В пространстве высотой 4,6 метров, с огромным окном, из которого открывается лучший вид в доме, они предложили надстроить второй уровень и создать модный интерьер с теплыми фактурами и активной геометрией. Заказчица – молодая девушка – хотела эффектный интерьер, не уступающий городской панораме, и с энтузиазмом согласилась на спальню на антресоли и стеклянную душевую возле окна.
Кроме того, она собирает искусство, и важно было создать удобную площадку для экспозиции.
Сроки были поставлены жесткие: на проект и строительство было отведено всего 3-4 месяца, вещи приобретались из наличия и изготавливались на заказ в Москве у проверенных столяров.
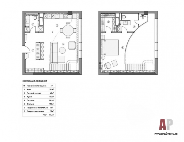
Квартира имеет форму квадрата, вдоль одной стороны которого располагается панорамное остекление. Чтобы наилучшим образом раскрыть пространство, дизайнеры спроектировали антресоль по дуге. Это позволило, во-первых, максимально сохранить высоту в зоне гостиной и увеличить площадь второго уровня, а с другой – сделать городскую панораму частью повседневной жизни.
Так, через стеклянное ограждение второго уровня с кровати можно любоваться видами, а душевая и вовсе расположена возле окна, на дальнем конце антресоли. Сквозь стеклянный объем (который можно затемнить) отлично проникает дневной свет.
Помимо спальни и «видовой» душевой на втором этаже находится изолированный санузел, а также гардеробная. Они скрыты за деревянной перегородкой. Первый уровень – парадное помещение с общей гостиной, столовой и кухней, гостевым санузлом и встроенной за диваном двухсторонней системой хранения. Для коллекции искусства хозяйки дизайнеры придумали стеллаж, который занимает целую стену. Из него вырастает лестница, что делает композицию цельной и собирает пространство.
Современный интерьер выглядит роскошно и модно благодаря природным фактурам, благородной палитре и эффектным деталям. Например, огромной люстре в форме кольца, парящей кровати со скрытой опорой, бра из кварца, цветной сантехнике, авангардным обоям по дизайну Келли Уэстслер… Вся встроенная мебель (в том числе стеллаж для расстановки работ из коллекции заказчицы), а также кухня, стеновые панели и лестница сделаны из седого дуба с красивой фактурой.
С натуральным и элегантным по своей сути деревом контрастирует открытый бетон: чтобы не терять высоту в строительном бетоне решили оставить потолок. Бонусом стал брутальный и немного хулиганский месседж, вполне в духе современного арта и дизайна.
Комплектация объекта
Строительные и отделочные материалы и изделия
Изделия из дерева, двери, стеновые панели, лестница, встроенная мебель, компания «Ассоциация русских мастеров»
Обои Kelly Wearstler
Паркет, дуб натуральный, поставщик «Паркет Ленд»
Керамогранит Iris FMG, поставщик RIM.ru
Свет Christopher Boots
Ковры, поставщик The Rug Company
Ковролин, поставщик Dovlet House
Постельное белье, поставщик Atelier Tati
Декор блюда из травертина и мрамора Collection Particulière, поставщик Booroom Gallery; поставщик Woon Stores
Сантехника Kerasan, Ceramica Cielo, cмесители Cisal, инсталляции Tece
Мебель
Гостиная стеллаж, на заказ, по эскизам дизайнера; кресло и диван De Padova
Столовая обеденный стол Gubi, кресла Baxter
Кухня, на заказ, по эскизам дизайнера
Спальня кресло De Padova, кровать Minotti
Мебель для ванных комнат столик Wittmann; на заказ, по эскизам дизайнера
Вся мебель на заказ – компания «Ассоциация русских мастеров»
Фотограф: Cергей Ананьев
Стилист: Наталья Онуфрейчук
Эклектичная квартира в светлой палитре с ониксом
Семейная квартира с темным колоритом О профессии «ландшафтный архитектор», образовании и специфике частных и общественных ландшафтных проектов говорим с Иваном Бугаевым…


















Созидание как эволюция: офис бюро «Крупный план»
Равновесие, цельность и гармония как результат работы архитектора…
Ландшафтный архитектор. Инженер. Проектировщик. Логик.
«Мода в интерьере — это зеркало нашего быта»...
Храм в городе 
11
22
33
44
55
66
77
88
99
1010 