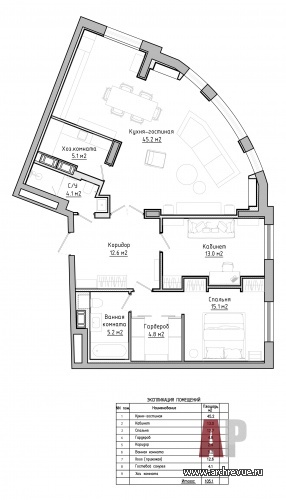
Заказчики архитектора Натальи Анищенко – люди в ремонте искушенные, они уже имели опыт работы с профессиональным дизайнером и знали, что начитать работу над интерьером надо с выбора жилья. Поэтому Наталью пригласили на самом раннем этапе, перед покупкой новой квартиры, чтобы лучше оценить потенциал каждого варианта. В итоге остановили выбор на квартире площадью 105 кв. м, расположенной на Петроградской стороне в новом монолитном доме.
«Исходная планировка квартиры сначала никого не устраивала: она имеет радиусную фасадную стену и как следствие комнаты сложной конфигурации. Но ее расположение, большие окна в пол и возможность провести полную перепланировку определили наш выбор», - рассказывает автор проекта. Наталья в основном занимается большими пространствами: проектирует здания и общественные интерьеры, поэтому к дизайну квартир подходит с архитектурной точки зрения. И здесь она хотела создать эргономичную планировку – комфортное пространство с большими светлыми помещениями и правильными пропорциями. Стилистически заказчики тяготели к современному интерьеру с некоторыми элементами скандинавского стиля и отголосками 60-х годов. Но непременно светлому и не загроможденному деталями.
Работа началась с полной перепланировки. «Мы демонтировали все ненесущие перегородки (предварительно согласовав в соответствующих инстанциях) и придали плану квартиры более правильную, строгую форму», - отмечает архитектор. Объем с полукруглой фасадной стеной она условно разделила на две самостоятельные зоны: общую, для приема гостей и семейного общения, и приватную – изолированный дверью блок, который включает в себя спальню с гардеробной и дополнительным санузлом.
Также в ходе перепланировки появились дополнительные помещения, делающие жизнь удобнее: хозяйственная комната и гардеробная. Все помещения получились большими, просторными, воздушными, со скрытыми в нишах системами хранения (кабинет и спальня), продуманной логикой движения и красивыми перспективами.
Оформляя интерьер, архитектор стремилась создать легкое пространство, наполненное воздухом. По ее словам, это оказалось легко, так как почти все окна в квартире панорамные, в пол. Важно было не загромождать помещениями деталями, действовать точечно и аккуратно. Основа интерьера – светлая, нейтральная палитра: почти белые стены, натуральные дубовые полы, серый керамогранит.
Они своего рода «холст» для ярких акцентов и цветовых пятен таких, как синяя стена в кабинете, красное дверное полотно в гостевом санузле, коралловое акцентное кресло в гостиной… Кроме того, чтобы сохранить эффект фоновых стен, шкафы и библиотеки намеренно сделаны встроенными, а кухонная витрина и вовсе подвесной. Такой прием позволил также улучшить звукоизоляцию: заказчики – музыкальные люди, и хорошая акустика была в приоритете.
Незадолго до начала проектирования заказчики посетили Японию, их вдохновили простые и аскетичные японские интерьеры, поэтому в квартире появились их отголоски в виде высоких дверей, подвесных витрин и светильников-фонарей по дизайну Хайме Айона. Так рациональный интерьер обогатился не только скандинавской, но и азиатской эстетикой.
Комплектация объекта
Строительные и отделочные материалы и изделия
Двери индивидуального изготовления по эскизам, компания Verarte
Двери межкомнатные, поставщики «Волховец» и Union
Декоративная финишная отделка стен, краска Paint & Paper Library
Обои BorasTapeter, Cole & Son
Паркет, наборный дубовый, поставщик «Горный ключ»
Керамогранит Atlas Concorde, Kerama Marazzi (коллекция Citta Bianco), Sant Agostino (коллекция Patchwork BW), Mirage (коллекция Reve), Peronda (коллекция Francisco Segarra)
Свет Marset, &Tradition (коллекция Formakami), Seyvaa Paris, Marbel, Market Set, Ideal Lux, Catellani & Smith, поставщик «Центр света Палантир»
Технический свет, поставщик Centrsvet
Ковры, поставщик Kover.ru
Деревянные жалюзи, поставщик «Уют»
Ткани портьеры Sahco, пледы Delo Design и H&M Home
Постельное белье, поставщик Morpheus
Аксессуары вазы керамиста Татьяны Солодовниковой, Tokeramika, ваза Ceramum, бетонные свечи IZI, поставщик «Палаты»
Зеркало Berloni
Искусство, «Мансарда Художников»
Сантехника раковина, ванна Villeroy & Boch, раковина Am.Pm, смесители и гигиенический душ Rubinetterie Giulini, смеситель кухонный Omoikiri
Мебель
Прихожая стеллаж-этажерка Qullar; шкаф, на заказ по эскизам
Столовая обеденный стол TeakHouse, стулья Parra
Гостиная диван Pohjanmaan (коллекция Joy), журнальные столики «Ток», кресло Bla Station (модель Oppo), поставщик Flai; тумба под ТВ BDI; встроенная библиотека, на заказ по эскизам
Кухня, на заказ по эскизам
Кабинет диван Saiwala; стол и стул, винтаж; библиотека, на заказ по эскизам
Спальня кровать Ethnicraft, этажерка TeakHouse, тумбочка Alexander Kanygin, поставщик «Палаты»; встроенные шкафы, на заказ по эскизам
Мебель для ванных комнат тумба под раковину TeakHouse
Мебель индивидуального изготовления по эскизам – изготовление «Столярная мастерская Сергея Маркова»
Оборудование
Встроенная акустическая система Jamo
Конвекторы встроенные напольные Varmann (серия Ntherm), радиатор настенный трубчатый Zehnder (серия Charleston)
Электроустановочные изделия Schneider electric, серия Merten M-pure
Фотограф: Иван Сорокин
Декоратор-стилист: Диана Ремизова
Современный дом из кело под Санкт-Петербургом
Уютный деревянный дом на краю леса О профессии «ландшафтный архитектор», образовании и специфике частных и общественных ландшафтных проектов говорим с Иваном Бугаевым…

























Ландшафтный архитектор. Инженер. Проектировщик. Логик.
«Мода в интерьере — это зеркало нашего быта»...
Храм в городе
Три кита современного стиля
Проект: Аэропорт «Кавказ» 
11
22
33
44
55
66
77
88
99
1010 
Этот проект длился немного дольше, чем планировалось, из-за пандемии. На проектирование и реализацию у нас ушло 2 года. Но это были плодотворные годы: заказчики полностью нам доверились, и их положительный настрой позволил создать городской интерьер, в котором хочется жить: с нетерпением возвращаться и надолго оставаться.