В бюро I.D. Interior Design заказчик обратился по рекомендации сразу нескольких своих знакомых, с которыми дизайнеры работали ранее. Он был хорошо знаком с творческим диапазоном дизайнеров их мастерством работы на сложных проектах, поэтому двухуровневую квартиру площадью 482 кв. м в отреставрированном доходном доме в центре Москвы доверил проверенным специалистам.
«Заказчик пришел к нам с готовым планировочным решением, мы его немного подкорректировали и адаптировали под привычную жизнь семьи,- рассказывают дизайнеры Инга Аршба, Дарья Широкова и Елена Чижова. – Изначальные данные квартиры были впечатляющие: большая площадь, много окон (в том числе колоритные арочные) и огромные потолки более 4-х метров».
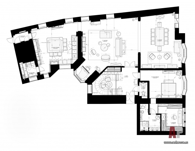
Согласно исходному проекту в квартире планировался лифт – элемент пусть и рациональный, но слишком громоздкий. А поскольку важно было создать в холле парадный настрой и передать легкое, присущее французским апартаментам, настроение, то от лифта было решено отказаться в пользу лестницы. Так эстетика победила функцию, и в прихожей появилась элегантная дугообразная лестница.
Хозяева квартиры любят устраивать вечеринки и ужины с друзьями, поэтому на первом этаже большая площадь отведена под гостиную с роялем, отдельную столовую с камином и кухню. От общей зоны изолирована хозяйская спальня с большой гардеробной и ванной комнатой. Второй этаж задуман как детский: у каждого ребенка есть своя спальня с гардеробной, а также санузел и общая детская гостиная. Кроме этого здесь же спроектирована полностью обособленная зона для родителей хозяев квартиры, чтобы они могли с комфортом оставаться в гостях. Помимо спальни у них есть своя гардеробная, санузел и небольшая кухня. Также на этом этаже расположен кабинет хозяина.
Стиль, в котором выполнена квартира, принято называть современной классикой. Для него характерны спокойный и даже строгий фон (здесь его формирует традиционная гипсовая раскладка по стенам, паркет с укладкой «французская елка», распашные двери с высокими порталами) и акцентная мебель.
«Заказчикам нравятся французские интерьеры, которым свойственна эклектика. Поэтому в проекте классические тумбы и комоды соседствуют с яркой и смелой мебелью, – отмечают дизайнеры. – В эркере гостиной размещен рояль, который регулярно используют по назначению, а в столовой композицию по оси стола завершает камин с высоким состаренным зеркалом. Так что здесь присутствуют все основные атрибуты светского интерьера». Доминантой первого этажа является элегантная лестница с ажурным ограждением: плавные линии и отсутствие опор придают ей легкость и воздушность. «Дугообразные лестницы – самые сложные в проектировании, но при этом и самые эффектные, – отмечают авторы проекта. – Сама форма тетивы, варианты отделки ступеней – эти моменты требовали особого внимания. В итоге мы выбрали лестницу классического вида, с радиальными нижними ступенями». Особый настрой в интерьере создают авторские двери: высокие (3200 мм), статные, с классической резьбой на портале. Их производством занималась московская компания. Поскольку двери и наличники достаточно сложные, перед их утверждением мастера-столяры изготовили образец масштабом 1:1 одной из дверей вместе с коробкой, доборами и наличниками с двух сторон, чтобы можно было увидеть изделие в интерьере и при необходимости внести корректировки.
Комплектация объекта
Строительные и отделочные материалы и изделия
Изделия из дерева, двери, «Столичная Столярная Компания»
Изделия из металла, ограждение лестницы, компания «Русская ковка»
Лепной декор из гипса, поставщик «Эллада»
Декоративная финишная отделка стен, краска Little Greene, цвет French grey mid 162
Паркет с раскладкой французская елка, американский орех под лаком, поставщик Parket-Esse
Камень, поставщик «Новый камень»
Микробетон в отделке столешницы и стен санузла, мастерская BetonStone
Свет Capital Lighting, Porta Romana, Currey & Company, Barovier & Toso, Arteriors, Fine Art Lamps, Marioni, Lumina, Stephane Davidts, Restoration Hardware, Sonneman
Аксессуары, декор Utopia & Utility, Restoration Hardware, поставщики GK Concept и Narottam home
Ковры Jerome Botanic
Зеркала Chelini, Cattelan Italia; на заказ, по эскизам дизайнеров, изготовление «Грань 99», Workingang
Искусство, ArtBrut Moscow, Nude Gallery, pARTnerproject gallery
Сантехника Villeroy & Boch, смесители Nicolazzi, аксессуары CB2
Мебель
Прихожая комод Salda
Холл кресла Casamilano, столик Reflex Angelo; шкафы, на заказ, изготовление «Столичная Столярная Компания»
Гостиная диван Meridiani, кресло Imperfettolab, журнальные столы Baxter, витрина Meridiani, лежанка Arketipo
Столовая стол Arte Brotto, стулья Marie's Corner, кресла Horchow, Brabbu, журнальный столик Arteriors, комод Salda, лежанка Zanotta, журнальный стол Meridiani
Кухня Old Line, барные стулья Marie's Corner
Спальня кровать Meridiani, прикроватные тумбы Christopher Guy, банкетка Eichholtz
Детская гостиная диван Gervasoni, кресло B&B Italia, журнальные столы Softline, приставной столик Minotti
Детская спальня кровать Shake Design, кресло Mogg
Детский санузел подвесные ящики Moab 80
Мебель для ванных комнат (тумба под раковины в хозяйском санузле), на заказ, изготовление «Столичная Столярная Компания»
Гардеробные, встроенные шкафы, на заказ, изготовление «Столичная Столярная Компания»
Фото Кирилл Овчинников
Панорамная квартира с видом на высотки Москва-Сити
Изящный минимализм О профессии «ландшафтный архитектор», образовании и специфике частных и общественных ландшафтных проектов говорим с Иваном Бугаевым…




























Ландшафтный архитектор. Инженер. Проектировщик. Логик.
«Мода в интерьере — это зеркало нашего быта»...
Храм в городе
Три кита современного стиля
Проект: Аэропорт «Кавказ» 
11
22
33
44
55
66
77
88
99
1010 
Работа над проектом от самого начала до въезда хозяев в квартиру заняла десять месяцев. Это рекордные сроки для таких объемов – почти 500 кв. м! Ситуация осложнялась тем, что работать приходилось «с листа», в процессе стройки. Поэтому все решения необходимо было принимать быстро и четко. Спасибо нашим заказчикам за то, что принимали активное участие во всем, благодаря чему процесс согласований и строительства проходил максимально оперативно