Архитектор Ариана Ахмад оформила мансардную квартиру для заказчицы с ребенком, превратив сложное пространство в старой застройке Хамовников в современное удобное жилье с восточным колоритом. Квартира площадью 87 кв. м с холодным чердачным помещением потребовала максимального включения, нужно было не только разработать дизайн-проект, но и провести весь комплекс работ по присоединению чердака к основному объему: утеплить, завести инженерию, установить мансардные окна.
В итоге получилась комфортная трехкомнатная квартира, из которой видно небо.
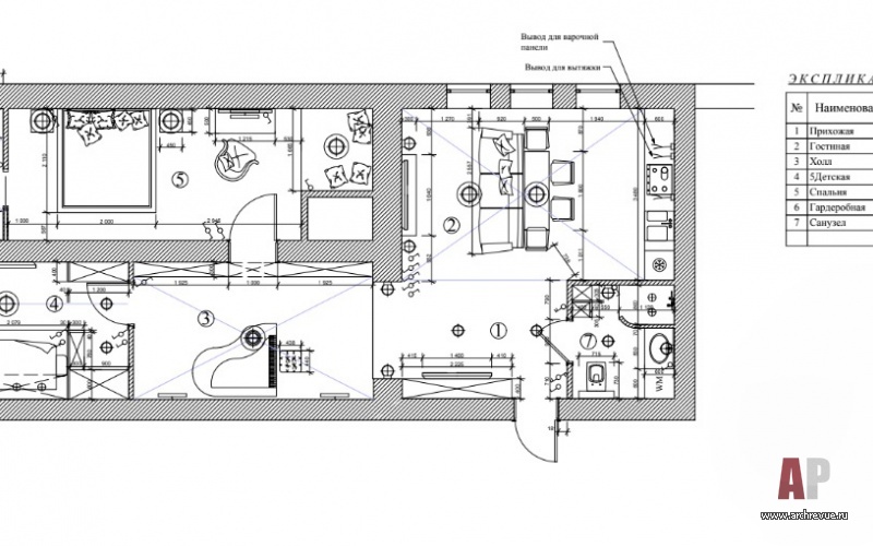
Квартира площадью 83 кв. м имеет форму сильно вытянутого прямоугольника. Объем напротив входной двери имеет характерную особенность – три выстроенных в ряд арочных окна. Здесь архитектор предложила разместить студийную гостиную-кухню, которая отлично просматривается от входа. Слева находятся две спальни (хозяйки и ее дочери), притом хозяйская половина как раз занимает место бывшего холодного чердака.
Помимо зоны для сна в ней удалось спроектировать изолированную гардеробную и лаундж со встроенной кушеткой для чтения. В центральном холле нашлось место не только встроенной библиотеке из темного дуба, но и кабинетному роялю, который вручную поднимали с улицы на шестой этаж.
Интерьер вдохновлен недавним путешествием заказчицы по Марокко, но восточная тематика присутствует лишь в отдельных деталях. В качестве основной стилистики была выбрана городская классика: светлая, лаконичная, с современными формами. Белые и серо-голубые стены, обои с изображением облаков, зеркальные шкафы, лакированная функциональная кухня – нейтральный фон, на котором разыгрывается яркая, «немосковская» история.
Так, три арочных окна в гостиной архитектор объединила смальтовой мозаикой в большую арку, которая похожа на восточный витраж. Зеленые и перламутровые оттенки мозаики наполняют помещение яркими красками, делают его более сложным и многогранным. Особенно выигрышно с соседстве с ними выглядит уложенный на пол рыжеватый тик, а также дуб, из которого сделан книжный шкаф и филенчатые двери. Очень необычно в этой квартире выглядит санузел. «Заказчица хотела оригинальный металлический шкаф (в нем находится стиральная машина), его брутальный облик мы подчеркнули грубой отделкой под бетон и насыщено-изумрудной керамической плиткой над умывальником», - рассказывает автор проекта.
Комплектация объекта
Строительные и отделочные материалы и изделия
Изделия из дерева, двери, встроенная мебель, компания «Ассоциация русских мастеров»
Финишная отделка стен, краски Farrow & Ball и Little Greene
Обои Fornasetti, поставщик KT Exclusive
Лепной декор Orac Decor
Паркет, тик, поставщик «Паркет Ленд»
Мозаика Sicis, керамогранит, поставщик RIM.ru
Свет Eichholtz, LeHome
Санузел Villeroy & Boch
Мебель
Прихожая, на заказ, изготовление «Ассоциация русских мастеров»
Гостиная диван LeHome, кресло, столик Eichholtz
Столовая стулья Eichholtz
Кухня Virs
Спальня кровать King Koil, кресло Crate and Barrel; тахта, на заказ, изготовление «Ассоциация русских мастеров»
Детская кровать Treca Interiors Paris, кресло Crate and Barrel
Гардеробные, на заказ, изготовление «Ассоциация русских мастеров»
Мебель для санузлов, на заказ, изготовление «Ассоциация русских мастеров»
Оборудование
Оборудование кухни Neff
Итальянская вилла в Подмосковье
Квартира с террасой в Красногорске О профессии «ландшафтный архитектор», образовании и специфике частных и общественных ландшафтных проектов говорим с Иваном Бугаевым…




















Созидание как эволюция: офис бюро «Крупный план»
Равновесие, цельность и гармония как результат работы архитектора…
Ландшафтный архитектор. Инженер. Проектировщик. Логик.
«Мода в интерьере — это зеркало нашего быта»...
Храм в городе 
11
22
33
44
55
66
77
88
99
1010 