Команда архитекторов бюро Artechnology спроектировала квартиру в престижной высотке на Западе Москвы, которая задумывалась как подарок родителей сыну-студенту. Ключом к декоративному образу стал вид из окон с высоты 22 этажа и современная архитектура здания.
Проектом руководил архитектор Тимур Шарипов, который ранее уже работал с заказчиками над их семейной квартирой, поэтому хорошо знал, что они являются приверженцами американской классики и современного комфорта. В итоге получился интерьер на вырост: в меру строгий и молодежный, с респектабельным дизайном и актуальным искусством – такой, что идеально подойдет молодому человеку на пороге карьерного роста. Вместе с архитектором Тимуром Шариповым над квартирой работали дизайнеры Сергей Назаров и Ольга Истомина.
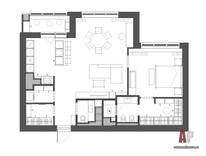
Квартира занимает площадь 75 кв. м – достаточную для комфортного проживания одного человека. Архитектор не стал мельчить и нарезать много небольших комнат, а сделал всего два жилых помещения, но больших и просторных.
Центральное место занимает опен-спейс со многим функциями. Напротив телевизора расположена диванная группа, в нише – рабочая зона, возле окна – обеденный стол. На противоположной стороне размещена кухня с островом-баром (так называемая вечерняя или коктейльная зона). Она продолжается на присоединенной лоджии, где есть место и для спортивных тренажеров, и для утренних завтраков с головокружительным видом на город (подоконник одновременно служит столешницей). Еще одно преимущество планировки – большое количество вспомогательных помещений: две полноценные гардеробные комнаты (одна при входе, вторая примыкает к спальне), два санузла и профессионально оборудованная постирочная.
В основе эклектичного интерьера – лепнина, филенчатые двери, высокий плинтус – традиционные для американской классики элементы. В то же время наполнение вполне современное – минималистичная мебель, дощатый пол, брутальный керамогранит с фактурой бетона, который использован помимо прочего в оформлении изголовья кровати!
Сверхтонким (5 мм шириной) керамогранитом облицованы санузлы и барная стойка. В то же время зона ТВ, рабочее место и гардеробные выполнены в дереве с теплой текстурой. Общая цветовая гамма – по-мужски строгая: благородных серых оттеков с бирюзовыми акцентами. В целом проект не требовал большого бюджета, но все материалы выбирались качественные, а мебель и светильники – уважаемых брендов.
Комплектация объекта
Строительные и отделочные материалы и изделия
Декоративная финишная отделка стен, краска Sherwin-Williams
Керамогранит, поставщик Arch-Skin
Декоративный свет Ligne Roset, TAL, Astro, Zuiver, Gubi, Dutchbone
Встроенный свет TAL
Сантехника Villeroy & Boch, смесители Hansgrohe
Подушки, пледы, поставщик Enere
Искусство, ArtBrut Moscow
Мебель
Гостиная диван DiTre Italia, журнальные столы, комод-бар Cattelan Italia, TV-композиция, рабочее место Olivieri, кресло Gubi
Столовая обеденный стол Cattelan Italia, стулья Porada
Кухня, на заказ, изготовление LaForma, барные стулья Tonon и Kristalia
Спальня кровать Felis, тумбочки и комод Olivieri
Гардеробные, на заказ, изготовление LaForma
Оборудование
Радиаторы Kermi
Электроустановочные изделия GIRA, Lithos
Оборудование кухни Miele
Эклектичное шале в Подмосковье
Мужская квартира с эмоциональным дизайном О профессии «ландшафтный архитектор», образовании и специфике частных и общественных ландшафтных проектов говорим с Иваном Бугаевым…
























Созидание как эволюция: офис бюро «Крупный план»
Равновесие, цельность и гармония как результат работы архитектора…
Ландшафтный архитектор. Инженер. Проектировщик. Логик.
«Мода в интерьере — это зеркало нашего быта»...
Храм в городе 
11
22
33
44
55
66
77
88
99
1010 