Закрыть галерею
Изображение 20 из 20

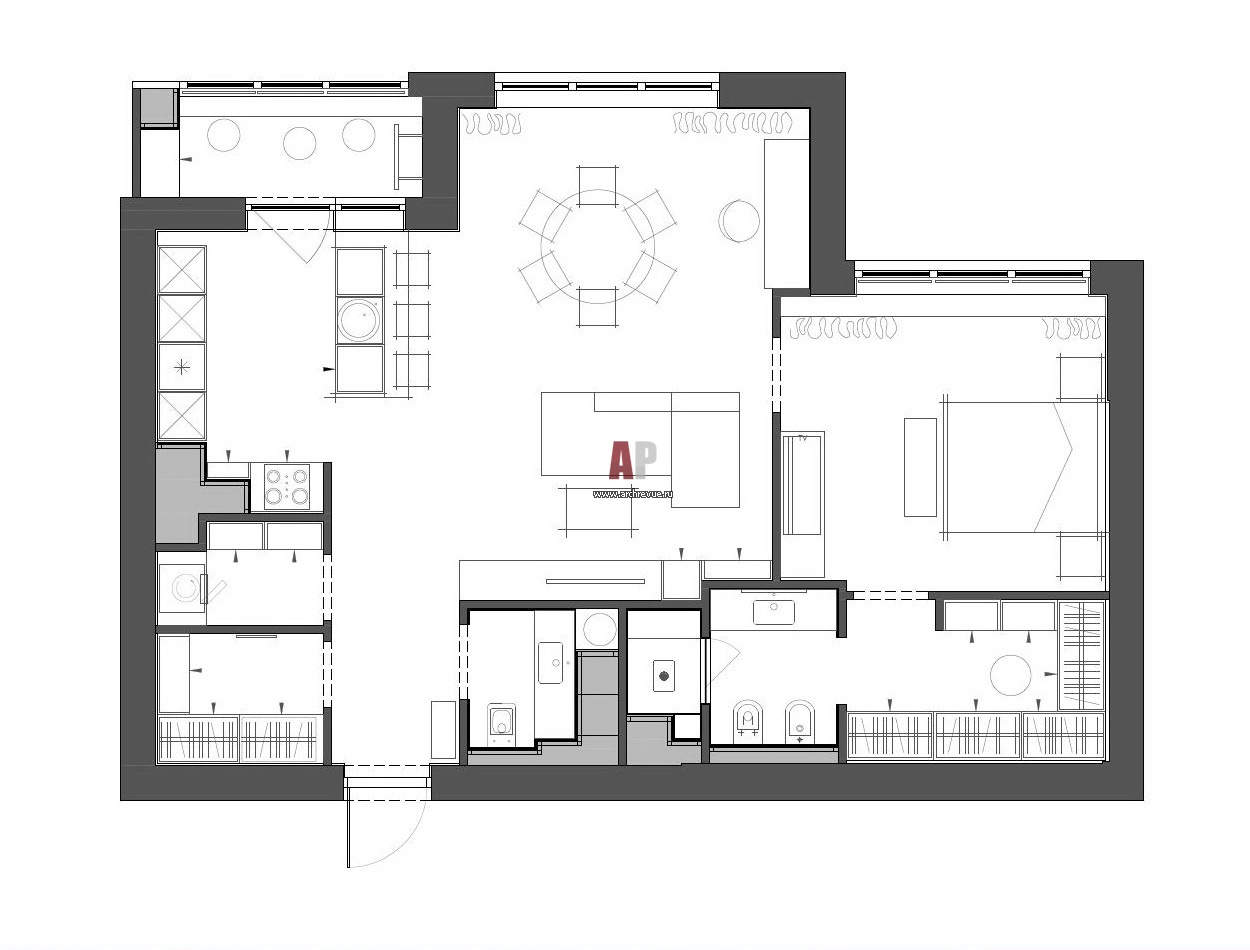
Планировка 2-х комнатной квартиры для студента.

План двухкомнатной квартиры для молодого мужчины. Общая площадь – 75 кв. м.

Проект: Квартира в ЖК «Рублевские огни» с элементами американской классики и хай-тека для молодого мужчины
Автор проекта: Шарипов Тимур
Объект: Квартира на вырост для студента
Общая площадь: 75 кв.м.