Сдержанная классика, деревянные панели, теплая медовая палитра с вкраплениями зеленого, много мест для хранения и статусная мебель американских фабрик – таковы были основные пожелания семейной пары с двумя детьми, с которыми они обратились к архитекторам Ариане Ахмад и Татьяне Корякиной.
Квартира площадью 150 кв. м расположена в ЖК «Дом на Плющихе», из ее окон открывается вид на парк, отчего создается полное ощущение загородного жилья. Архитекторы предложили подчеркнуть природную тему и создать легкий и комфортный классический интерьер, наполненный натуральными фактурами. Работать пришлось в сжатые сроки, заказчики торопились закончить ремонт и переехать, чтобы дети начали учебный год в новой школе.
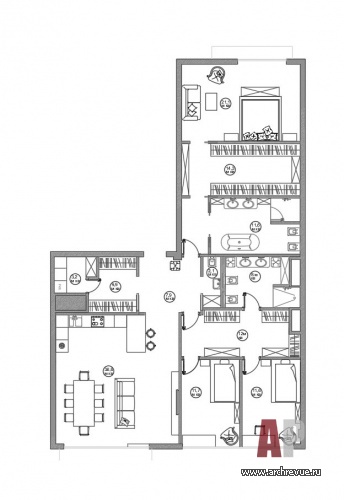
Техническое задание было обширным, на 150 кв. м архитекторам следовало спроектировать общую семейную зону, хозяйскую спальню, две детские, три санузла, постирочную и несколько гардеробных. Задача совсем не из простых… В итоге центральное помещение в квартире заняла студийная гостиная, объединенная с кухней и столовой.
В прихожей разместился гардероб для верхней одежды и крошечный, но очень стильный, гостевой санузел. По обе стороны от него организованы выходы в личные помещения хозяев: слева находится родительская спальня со своей гардеробной и ванной комнатой, справа – две детские с общей ванной и гардеробной. Обе гардеробные сделаны походными, что существенно экономит пространство и позволяет создать дополнительную звукоизоляцию. «Основная сложность была с детскими. Каждому из двух детей – мальчику и девочке – требовалась своя отдельная комната, но по плану у нас была одна большая комната с панорамным окном. Вместе со строителями мы долго думали, как разделить объем, и установили на окно импост, к которому смонтировали перегородку. Так у нас получились две абсолютно одинаковые компактные детские», - рассказывают авторы проекта.
Отличительная особенность этого интерьера – теплая цветовая гамма со сложными зелеными и медовыми оттенками и природные материалы с красивыми фактурами. Так, полы в прихожей и зоне кухни оформлены мозаикой из камня (оникса, мрамора) разных оттенков. Те же сорта камня использованы для изготовления столешницы обеденного стола.
«Мы объездили немало складов в поисках камня правильных солнечных оттенков, - вспоминает архитектор Ариана Ахмад. – Практически всю корпусную мебель (обеденный стол, кухню, шкафы, рабочие столы, умывальники), буазери, двери изготовили на российском предприятии по эскизам. Мы тщательно выбирали фактуры фасадов, использовали дуб с разной обработкой». Шелковые обои, американская мебель, светильники из стекла и латуни завершают образ стильного городского интерьера для семьи.
Комплектация объекта
Строительные и отделочные материалы и изделия
Изделия из дерева, двери, стеновые панели, встроенная мебель, компания «Ассоциация русских мастеров»
Обои Vescom, Pierre Frey
Паркет, дуб натуральный, поставщик «Паркет Ленд»
Камень, керамогранит, поставщик RIM.ru
Свет Visual Comfort & Co, Ralph Lauren
Зеркала Gubi
Санузел раковины Ceramica Cielo, Catalano, Bathco, смесители Webert, Nobili
Ковры, поставщик «Ателье Марка Патлиса»
Искусство, NG Gallery
Мебель
Гостиная диван, кресло, столик-пуф Ralph Lauren
Столовая стулья Baker, стол, на заказ, изготовление «Ассоциация русских мастеров»
Кухня на заказ, изготовление «Ассоциация русских мастеров»
Спальня кровать Treca Interiors Paris, прикроватные тумбы, комод, на заказ, изготовление «Ассоциация русских мастеров»; кушетка Ralph Lauren
Детские кресло, банкетка Vitra, диван Bonaldo; стол, на заказ, изготовление «Ассоциация русских мастеров»
Гардеробные, на заказ, изготовление «Ассоциация русских мастеров»
Мебель для санузлов, на заказ, изготовление «Ассоциация русских мастеров»
Суровый минимализм для молодой девушки
Дом в нормандском стиле Поиски нового офиса привели владельцев архитектурного бюро «Крупный план» к неожиданному, но очень значимому шагу – приобретению особняка - объекта культурного наследия XIX века...



























Созидание как эволюция: офис бюро «Крупный план»
Равновесие, цельность и гармония как результат работы архитектора…
Ландшафтный архитектор. Инженер. Проектировщик. Логик.
«Мода в интерьере — это зеркало нашего быта»...
Храм в городе 
11
22
33
44
55
66
77
88
99
1010 