Руководитель студии GAFA Architects, архитектор Григориос Гавалидис занимается большими градостроительными работами, проектирует крупные жилые и общественные объекты, жилье для своей семьи он выбирал долго и с пристрастием. Хотелось найти современный комплекс со спокойной атмосферой, вдали от городской суеты, но где бы ощущался ритм мегаполиса.
В итоге выбор был сделан в пользу ЖК Green Park, он расположен всего в 500 метрах от входа в Ботанический сад и парк ВДНХ – идеальное место для активного отдыха, занятий спортом и долгих прогулок. Оформление интерьеров своей квартиры Григориос Гавалидис доверил руководителю интерьерного направления студии GAFA Architects Анне Коркиной, которая создала современную квартиру-трансформер для динамичной жизни в мегаполисе.
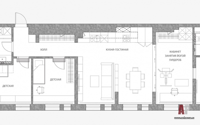
Большое и светлое пространство площадью 120 кв. м образовано путем объединения трех соседних квартир, которые расположены на 17 этаже высотки и обращены на солнечную южную сторону. В плане квартира представляет собой вытянутый по фасаду прямоугольник, все 6 окон обращены на одну сторону: из них открывается панорамный вид на Ботанический сад, ВДНХ и виднеющихся вдалеке небоскребов Москва-Сити и МГУ.
Основная идея проекта – это открытая светлая квартира с минимумом коридоров и продуманной системой зонирования с расчетом на комфортное проживание с двумя подрастающими детьми. Жилые пространства здесь сгруппированы вдоль окон, а санузлы и технические зоны расположены в темной части квартиры. Объем разделен на три блока: справа от входа находятся детские комнаты, в центре – объединенная гостиная, столовая и кухня. К ней примыкает родительская часть: спальня о своей ванной комнатой, а также буферная зона кабинета с функциями зала для занятия спортом и йогой. От гостиной она отделена стеклянными раздвижными дверями, которые работают на образ мобильного пространства.
Современный интерьер выглядит цельным за счет открытой планировки, мобильного зонирования с помощью системы раздвижных перегородок и единой цветовой гаммы. Стены в квартире выкрашены в серо-белые тона, на пол уложен паркет из натурального светлого дуба, мебель использована преимущественно встроенная, которая выглядит как продолжение стен.
Встроенные шкафы и стеновые панели выполнены из шпона ореха и массива дуба, который добавляет интерьеру красок и вносит природную тему. Яркий декоративный акцент – раздвижная перегородка из черного металла и прозрачного стекла, она зонирует жилой объем и добавляет интерьеру брутальности. Семья ведет здоровый образ жизни и старается все свободное время проводить на природе: природные тона, текстуры и материалы в интерьере помогают лучше настроиться на отдых.
Комплектация объекта
Строительные и отделочные материалы и изделия
Изделия из дерева, двери, компания «Дизайнстрой»
Раздвижные стеклянные перегородки, поставщик NAYADA
Декоративная штукатурка, поставщик «НовоФлор»
Текстильный дизайн, Artelino
Паркет, поставщик Siberian Floors
Натуральный камень, сланец Vals Quartzite поставщик «Архитайл»
Свет Karman, Vibia
Техническое освещение, поставщик L1 Group
Керамическая плитка Refin (серия Fossil), Equipe Ceramicas, поставщик «Сеньора Керамика»
Сантехника Ceramica Cielo (модель Tres Grifería), смесители и полотенцесушитель Tece, поставщик «Андеграунд»
Мебель
Гостиная диван DiTre Italia (модель Kanaha)
Столовая обеденный стол, стулья Profim
Кухня на заказ
Спальня кровать, на заказ
Детская, на заказ; стул Profim
Мебель на заказ, изготовление «Дизайнстрой»
Оборудование
Электроустановочные изделия GIRA
Бытовая техника Miele
Двухэтажный дом в стиле минимализм
Синяя квартира в стиле ретро О профессии «ландшафтный архитектор», образовании и специфике частных и общественных ландшафтных проектов говорим с Иваном Бугаевым…


















Созидание как эволюция: офис бюро «Крупный план»
Равновесие, цельность и гармония как результат работы архитектора…
Ландшафтный архитектор. Инженер. Проектировщик. Логик.
«Мода в интерьере — это зеркало нашего быта»...
Храм в городе 
11
22
33
44
55
66
77
88
99
1010 