Квартира площадью 82 кв. м в новом жилом комплексе на Пречистенской набережной задумывалась как место для временного проживания. Заказчица – молодая девушка – вместе с дизайнерами бюро Ольги Кушнаревой-Леоне как раз заканчивала реновацию собственной квартиры в том же доме и предложила сделать еще один интерьер для приема гостей и временных остановок родителей.
Хотелось создать сдержанный, но статусный интерьер с потрясающими перспективами. Вдохновением послужили современные панорамные квартиры на Манхэттене с видом на Центральный парк: роскошные и запоминающиеся.
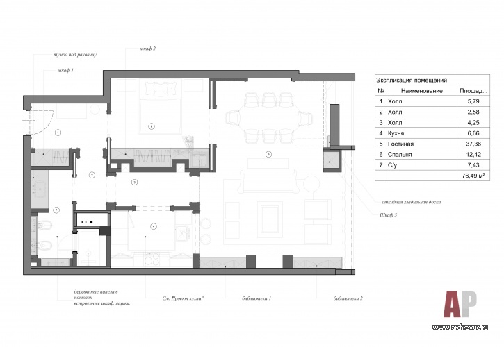
Глубокая квартира с единственным, но панорамным, окном сдавалась в свободной планировке. На выбор архитекторы предложили три разных варианта организации пространства. В итоге остановились на самом функциональном и комфортном для проживания.
При непростых исходных данных архитекторам удалось создать три изолированных помещения: общую гостиную с обеденной группой, кухню и спальню. Кухня удалена от окна, но свет в нее попадает через декоративное окно, по одну сторону от которого находится барная стойка, по другую – мойка и зона приготовления пищи. Дневной свет в спальню также проникает из гостиной, через стеклянную раздвижную дверь. На одной оси со стеклянной дверью в спальне сделана еще одна – с выходом в холл и санузел. В итоге архитекторы блестяще выполнили задачу и спроектировали просторную зону для общения и компактный приватный блок.
Интерьер выполнен в современном американском стиле с использованием материалов и отделок премиального уровня: природный камень, авторский лепной декор, заказные столярные изделия из дерева с белой эмалью создают образ стильного городского пространства.
Чтобы зрительно увеличить небольшую площадь, добавить воздуха, авторы проекта используют зеркала, раздвижные двери и встроенные элементы: почти за каждой элегантной стеновой панелью скрывается система хранения. Квартира строится на контрасте белых стен и темной корпусной и мягкой мебели и яркого, насыщенного текстиля. Декоративным акцентом гостиной служит мягкая группа в обивке из красного бархата, дополненная ковром с цветочным орнаментом. Спальня выдержана в прохладной синей гамме: обои в шотландскую клетку привносят в интерьер строгость и рифмуются с картинами и постерами с изображением лошадей. Рафинированная стилистика Ralph Lauren сближает московскую квартиру с роскошными апартаментами Нью-Йорка.
Автор проекта:
Ольга Кушнарева-Леоне, архитектурное бюро Olga Kushnareva-Leone Architecture&Design
Тел.: +7 (495) 982 38 30
Сайт: http://olgakushnareva.com
E-mail: info@olgakushnareva.com
Комплектация объекта
Проектирование, строительство, бюро Olga Kushnareva-Leone Architecture&Design
Строительные и отделочные материалы и изделия
Текстильный дизайн, Charles.Cameron
Лепной декор из гипса, компания «Петергоф»
Обои Thibaut, Ralph Lauren, поставщик Charles.Cameron
Свет Schonbek, Chelsea House, Visual Comfort & Co, поставщик Charles.Cameron
Ковры Surya, поставщик Charles.Cameron
Аксессуары, вазы Chelsea House, постеры Trowbridge и Chelsea House, посуда Mottahedeh, хрусталь Royal Scot Crystal, подсвечники Global Views, гравюры, G&C Interiors, поставщик Charles.Cameron
Сантехника Devon & Devon, поставщик Charles.Cameron
Мебель
Прихожая комод Theodore Alexander
Гостиная диван Duresta, журнальный столик Century Furniture, кресла и пуф Sherrill Furniture, столик Theodore Alexander
Столовая обеденный стол и стулья Chelini
Кухня Christopher Peacock
Спальня прикроватные столики Theodore Alexander, кровать, на заказ, изготовление Charles.Cameron
Вся мебель – поставщик Charles.Cameron
Оборудование
Оборудование кухни, бытовая техника Wolf, Sub-Zero, V-Zug
Классическая квартира в светлой гамме
Московская квартира в дореволюционном доме Великое наследие и возрождение Храмового зодчества в России – поговорим об этом с архитектором Дмитрием Пшеничниковым, основателем архитектурного бюро «Дмитрий Пшеничников и Партнеры»
























Ландшафтный архитектор. Инженер. Проектировщик. Логик.
«Мода в интерьере — это зеркало нашего быта»...
Храм в городе
Три кита современного стиля
Проект: Аэропорт «Кавказ» 
11
22
33
44
55
66
77
88
99
1010 