На проект этого дома и его декоративное решение архитектора Максима Кашина вдохновил интерьер церкви в Вольфсбурге, спроектированной финским архитектором-модернистом Алваром Аалто в 1963 году. Строгая геометрия, использование реечного декора, аскетизм и спокойствие стали визитной карточкой современного двухэтажного особняка, спроектированного для большой семьи.
Заказчики поставили задачу создать дом с выразительной архитектурой, но при этом предельно функциональный, чтобы в нем было бы удобно жить разным поколениям семьи. Архитектор предложил современный проект в форме параллелепипеда, который состоит из квадратных в плане, последовательно выстроенных, модулей. Фасады дома оформлены в духе модернизма и облицованы армянским травертином и деревянными реечными панелями, они подчеркивают структуру постройки.
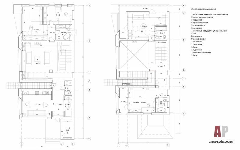
Объем дома набран из трех модулей, которые соответствуют трем основным функциональным зонам: жилой блок родителей, жилой блок детей, взрослого сына с семьей, и общее связующее пространство. Дом имеет два входа, первый расположен с торцевой стороны, он ведет через кухню и гостиную в зону для родителей с отдельным кабинетом, спальней и большим санузлом.
Через второй вход, с террасы главного фасада, можно подняться сразу на второй этаж, в зону для младшего поколения с двумя спальнями и санузлами. Разные по назначению модули связывают лестничные марши с выразительной пластикой. На эксплуатируемой кровле доме расположена зона отдыха с открытым патио для отдыха на природе.
Архитектор стремился создать аскетичный интерьер с яркой эмоциональной выразительностью, минималистичный, но в то же время с мощной внутренней динамикой. В белоснежном пространстве обозначено несколько доминант: реечная отделка потолка и стен деревом (реверанс в сторону работ архитектора Алвара Аалто), скульптурный камень из травертина и контрастные лестничные полотна, созданные из переплетенных между собой металлических прутьев, – конструкции легкие и воздушные.
Прутья без дополнительных конструктивных элементов обеспечивают жесткость всему лестничному ограждению.
Комплектация объекта
Строительные и отделочные материалы и изделия
Кровля, фальцевая стальная, компания «Уникма »; эксплуатируемая кровля, производитель «ТехноНиколь »
Вентилируемые фасады Delta, поставщик Radders
Окна, витражи, двери, поставщик Alutech и Schuco
Межкомнатные двери, поставщик Union
Мрамор, камин, компания «КАМ»
Напольная массивная доска, дуб, поставщик «Атмосфера дерева»
Оформление стен, краска, Sikkens, поставщик «Дом Краски / Деко – Эм»
Свет Kartell
Сантехника Villeroy & Boch
Мебель
Poliform, Virs, Kartell
Оборудование
Газовый котел Wolf
Внутрипольные ковекторы и батареи Kermi
Энергообеспечение внутридомовая элетрораспределительная система ABB, система домофона и контроля входа на территорию участка ABB, Welcome
Системы вентиляции и кондиционирования Toshiba
Внутренние инженерные системы, системы водоснабжения, канализации и отопления Rehau
Нескучный фьюжн
Содержательная пустота Великое наследие и возрождение Храмового зодчества в России – поговорим об этом с архитектором Дмитрием Пшеничниковым, основателем архитектурного бюро «Дмитрий Пшеничников и Партнеры»
























Ландшафтный архитектор. Инженер. Проектировщик. Логик.
«Мода в интерьере — это зеркало нашего быта»...
Храм в городе
Три кита современного стиля
Проект: Аэропорт «Кавказ» 
11
22
33
44
55
66
77
88
99
1010 