Для семейной пары, приближающейся к юбилею жемчужной свадьбы, дизайнер Светлана Юркова создала квартиру с атмосферой романтики, тепла и покоя, который напоминает о прогретой солнцем вилле на юге Франции. Сама дизайнер назвала его «нежное шале», изящно обыграв в пространстве брутальную стилистику исторической альпийской архитектуры, изысканность классических французских интерьеров и изящную простоту интерьеров Прованс.
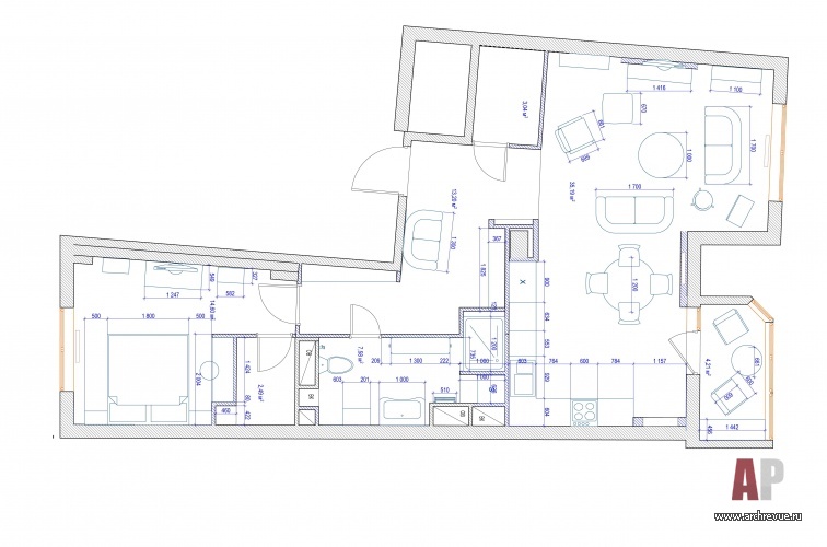
Двухкомнатная квартира площадью 80 кв. м подверглась небольшой реконструкции. Чтобы увеличь пространство гостевой зоны, дизайнер объединила кухню и гостиную, а также присоединила лоджию, выделив эркерную часть с панорамным остеклением. На присоединенной территории, примыкающей к кухне-столовой, она организовала зону отдыха: с большими окнами, каменной кладкой стен и плетеными из ротанга креслами, она похожа на террасу загородного дома. Спальня и ванная комната расположены в глубине квартиры.
Отличительная особенность проекта – увеличение площади гардеробной за счет присоединения части коридора в подъезде. Несмотря на долгие согласования, такое решение позволило не только улучшить функционал гардеробной, но расширить помещения кухни и санузла.
Исполненная в теплых пастельных цветах квартира создает ощущение загородной виллы. Классический интерьер дополнен и усложнен элементами в стиле шале и Прованса, а также деталями, создающими домашнюю, теплую атмосферу. При его оформлении дизайнер сделала ставку на материалы с ярко выраженной фактурой: облицовочном камне с эффектом старения, палубной доске с приятным неровностями, потолочные балки с брашировкой, какими славятся французские шале…
Но выкрасила их не в традиционный темно-шоколадный, почти черный цвет а на несколько тонов светлее, чтобы деликатно подчеркнуть светло золотисто-бежевый цвет стен и текстиля, также фактурного, с крупным плетением нитей. Белая керамическая плитка, предметы мебели и фурнитура светильников из кованого, крашенного в светлый цвет металла, резные порталы декоративных каминов цвета слоновой кости, открытые кухонные полки и развивающиеся от ветра легкие занавеси на дверях вызывают ассоциации с домами Прованса.
Комплектация объекта
Строительные и отделочные материалы и изделия
Изделия из кованого металла, компания «Ковка МСК»
Двери New Design Porte
Обои, шторы Sanderson
Финишная отделка стен, краски Little Greene, поставщик «Салон краски»
Плитка Ceramiche Grazia
Натуральный облицовочный камень, поставщик Kamrock
Паркет, палубная доска Foglie d`Oro
Камины Dialma Brown
Свет Eurolampart
Сантехника Gaia Mobili
Мебель
Гостиная диван и кресла LeHome, корпусная мебель Country Corner
Кухня Arcari Arredamenti, плетеные кресла Riviera Maison
Столовая стол и стулья Dialma Brown
Спальня кровать и тумбочки Country Corner
Мебель для ванной комнаты Gaia Mobili
Оборудование
Кондиционеры Toshiba
Оборудование кухни Smeg
Попутного ветра!
Дом с настроением выходного дня О профессии «ландшафтный архитектор», образовании и специфике частных и общественных ландшафтных проектов говорим с Иваном Бугаевым…



















Созидание как эволюция: офис бюро «Крупный план»
Равновесие, цельность и гармония как результат работы архитектора…
Ландшафтный архитектор. Инженер. Проектировщик. Логик.
«Мода в интерьере — это зеркало нашего быта»...
Храм в городе 
11
22
33
44
55
66
77
88
99
1010 