Для большой семьи архитектор Кирилл Кручинин спроектировал интерьер квартиры в довольно редком для московского дизайна стиле – деконструктивизме. Выбранная эстетика позволила сохранить максимально открытое и объемное пространство, окна в пол позволили поиграть со светом, цветом, сложными формами.
Острые углы, ломаные линии, некая иллюзия диспропорций и смены планов делает интерьер ярче, интереснее, насыщеннее и образно, и функционально.
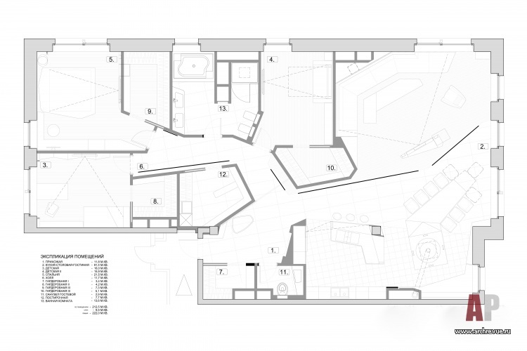
Квартира сдавалась в свободной планировке. При организации пространства архитектор учитывал потребности жизни семьи из четырех человек. Так появились три спальни (хозяйская и две детские), два санузла, гардеробные, технические помещения и общая гостевая зона.
Гостиная и кухня представляет собой единое пространство с минимальным зонированием с помощью функциональных элементов: барной стойки, поворотной на 360 градусов стойки под телесистему, авторского обеденного стола, переходящего в основание камина… Такое решение позволило сохранить объем и сделать общественную половину максимально комфортной для семейного досуга и приема гостей.
Основная идея интерьера – сложная пластика пространства, которая поддерживается геометрией и наполнением. Ставка здесь сделана на нестандартные конструктивные элементы и мебель. В их числе – и вращающаяся стойка под ТВ, и сложной формы системы хранения из деревянного шпона, а главное – камин, переходящий в обеденный стол.
Столешница ломаной формы переходит в снование подвесного дровяного камина Focus, а он в свою очередь, служит центром зоны отдыха с мягкой группой. В оформлении использованы материалы с природной текстурой: керамогранит под камень, шпонированное дерево, стекло… Авторская мебель, придающая дизайнерскому интерьеру уникальный вид, выполнена из панелей МДФ, отделанного шпоном дуба с использованием разных тонировок. Цельность проекту обеспечивает и общая колористика в рыжих, коричневых и черных и белых тонах.
Комплектация объекта
Строительство, компания DISobject
Строительные и отделочные материалы и изделия
Текстильный дизайн, «А-кант»
Изделия из дерева и кориана, нестандартная мебель, компания «Щукин»
Витражи, компания Strong Steel
Паркетная доска, дуб Parador
Керамогранит Mirage, поставщик «Турбос»
Панорамный камин Focus
Свет Artemide, Linea Light, Murano Due, поставщик Lilux
Сантехника раковина из кориана, на заказ, изготовление «Щукин», ванна Hoesch, Agape, душ Dornbracht, поставщик Konzept
Мебель
Прихожая пуфик Moroso
Гостиная диван TS Salotti, журнальный столик-тетрис Christine Kroencke; телевизионная стойка, на заказ, по эскизам, изготовление «Щукин»
Столовая стулья Wogg, барная стойка, обеденный стол, на заказ, изготовление «Щукин»
Кухня Mittel
Спальня изголовье кровати Falegnameria 1946, кресло Riva 1920, кровать, прикроватные тумбы, стеллаж под ТВ, на заказ, изготовление «Щукин»
Поставщик корпусной мебели – «Онто-Форма»
Оборудование
Системы вентиляции и кондиционирования Daikin
Внутрипольные конвекторы Minib
Оборудование кухни вытяжка Gutmann, бытовая техника Miele, холодильник Viking
Современная классика с витражом
Интерьер для эстетов О профессии «ландшафтный архитектор», образовании и специфике частных и общественных ландшафтных проектов говорим с Иваном Бугаевым…






















Созидание как эволюция: офис бюро «Крупный план»
Равновесие, цельность и гармония как результат работы архитектора…
Ландшафтный архитектор. Инженер. Проектировщик. Логик.
«Мода в интерьере — это зеркало нашего быта»...
Храм в городе 
11
22
33
44
55
66
77
88
99
1010 