Кубическое стеклянное сооружение на пригорке, больше похожее на музей советской оккупации, чем на жилой дом, вероятно, долго вызывало пересуды на селе. Архитектурное бюро G.Natkevicius & Partners – одна из самых знаменитых студий в Литве. Едешь по Вильнюсу – и то тут, то там встречаешь их творения. В основном, это стекло. Они очень любят обширное остекление здания, чтобы в огромных окнах отражалась ближайшая улица, ее прохожие и автомобили.
Не обошлось без стекла и в этом оригинальном строении. Задумка была весьма своеобразной. Дом для семьи из четырех человек, площадь 327 кв. метров. Здание построено в 2007 году в Литве, недалеко от Вильнюса. Хозяин - банкир и коллекционер антикварных книг. Купив этот участок, он, видимо, сразу почувствовал запах антиквариата. В средние века на этом месте стоял оружейный заводик, который производил сабли и пушечные ядра для польско-литовской армии. От него сохранился только один полуразрушенный этаж и подвал. Даже сами кирпичи, из которых сложено здание, являются исторической ценностью, поскольку произведены они на первом литовском кирпичном заводе. Было принято решение сохранить древнее здание, провести его реставрацию и попытаться вписать старинную постройку в современную жилую конструкцию, в которой может жить семья с детьми.
Архитекторы из бюро G.Natkevicius & Partners сделали проект в своем стиле. Они просто поместили древнее строение под стеклянный куб, сделав его частью внутреннего интерьера. В принципе, это не новая идея. Во многих старинных городах, чтобы сохранить вековой фасад здания, его помещают под стеклянный колпак. Правда, свою аутентичность сохраняет только фасад. Внутренние помещения переделываются по запросам хозяев здания.
Здесь мы видим частный дом, никакого фасада нет и в помине. Наоборот, фигурирует только внутренняя кирпичная структура. Получается интересная вещь. Фасадом выступает современная стеклянная обшивка, а антикварные стены превращаются в предмет интерьера. Не знаю, как в нем чувствуют себя обитатели дома, но само по себе решение в высшей степени оригинально.
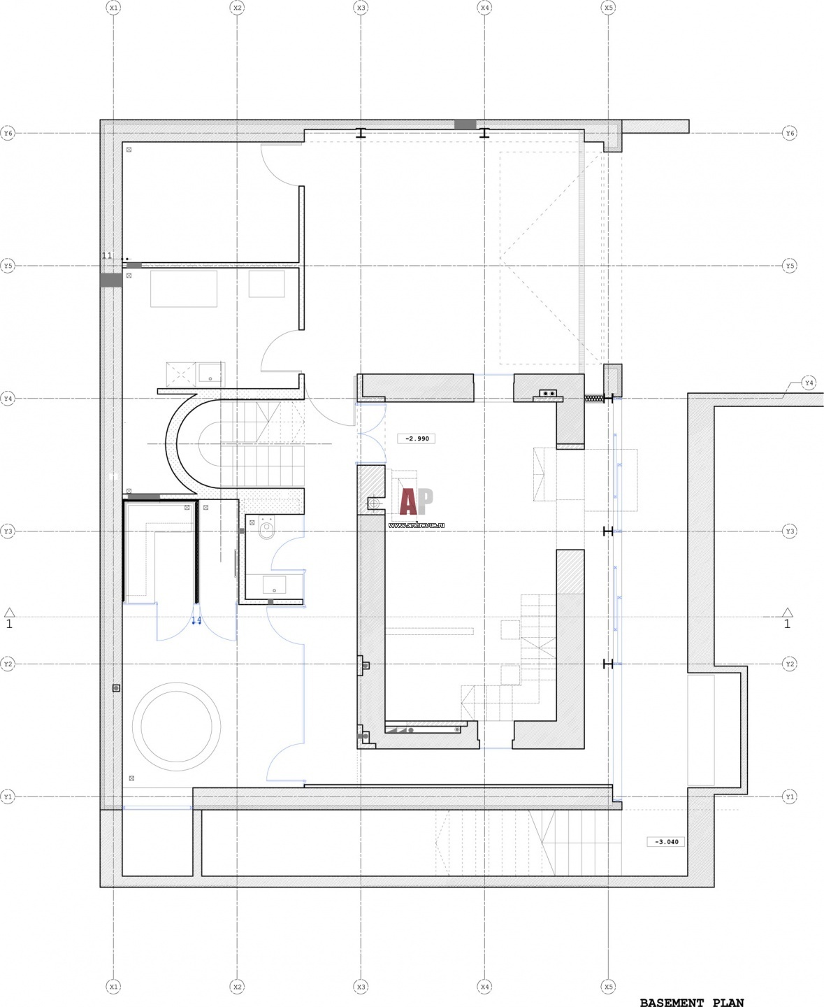
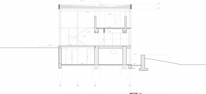
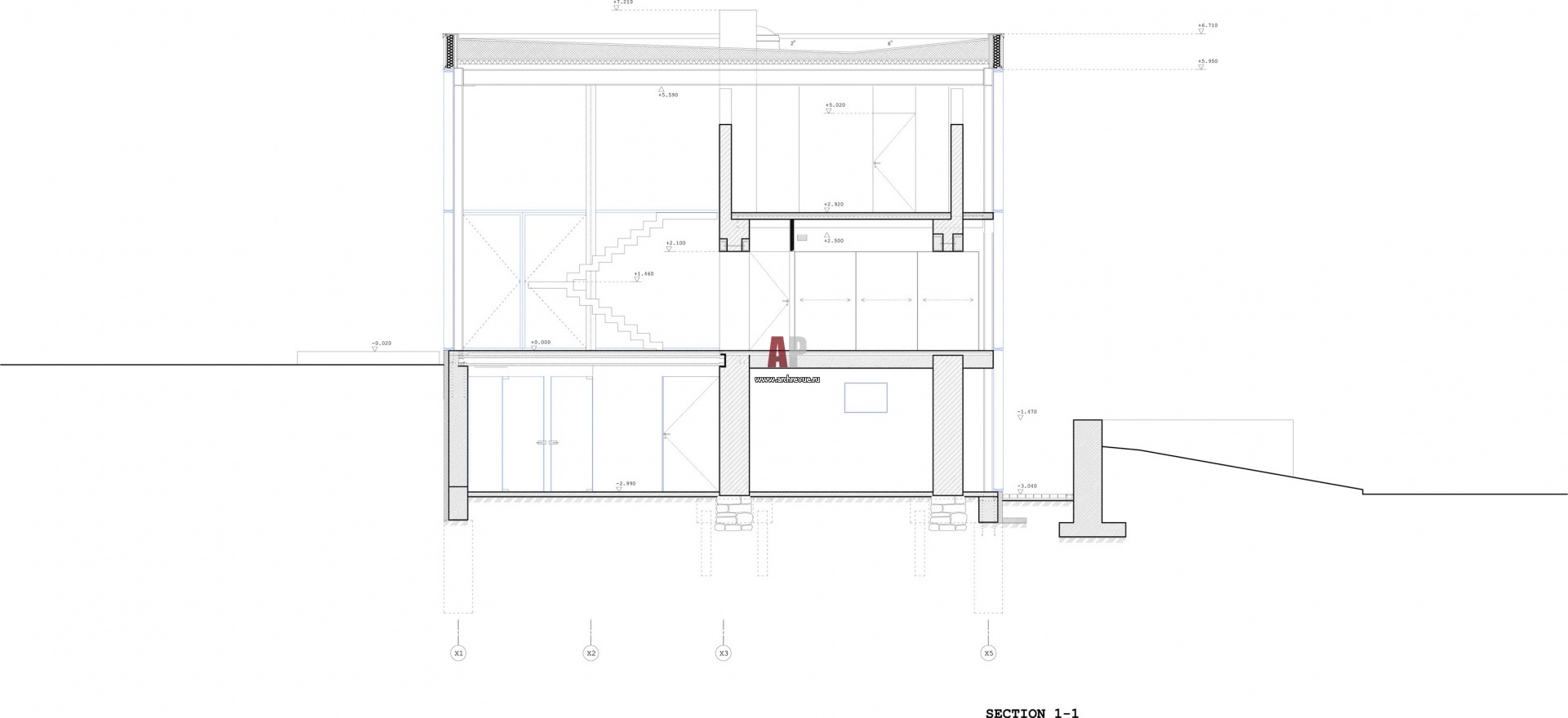
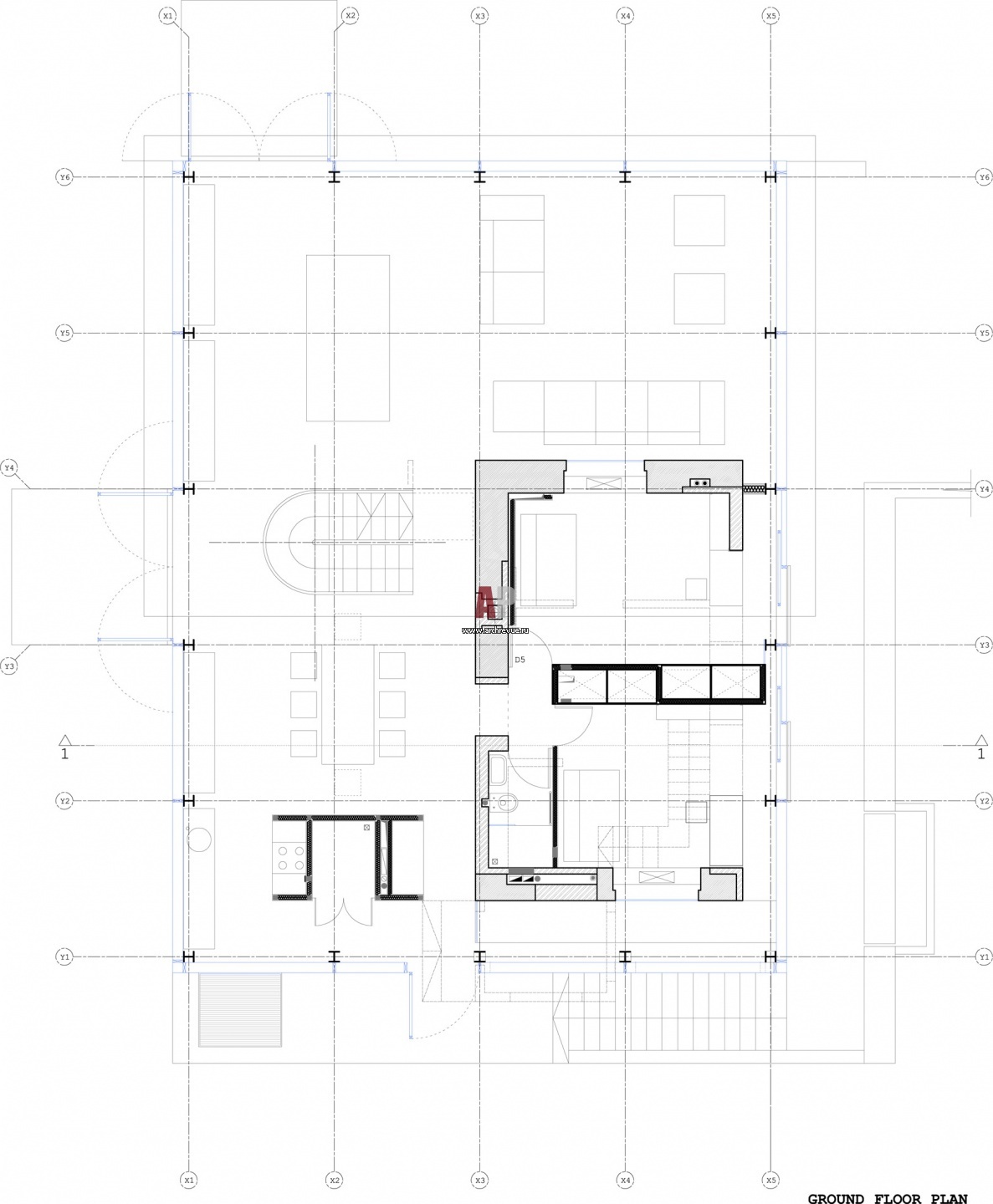
В итоге мы имеем три этажа. Подвал с гаражом на две машины и турецкой баней, а также условные два этажа сверху. Собственно, жилая площадь по всему периметру здания сохраняется только на первом этаже, где находятся кухня, столовая и гостиная, за старыми стенами - комнаты для детей. Второй этаж является жилым только внутри старой постройки – там расположена комната для взрослых. Этажи соединяются стильной модерновой лестницей. Предельный минимализм в интерьере не дает мне почувствовать сам дом. Здесь нет личностной атмосферы. Человек здесь лишний. Смысловая масса древней постройки, как черная дыра, затягивает в себя любые проявления человеческого присутствия. На фоне такого массивного антиквариата человек стирается.
Проект интересен, но, глядя на эту конструкцию, задаешься вопросом, будет ли там уютно темными промозглыми зимними вечерами? Кроме того, заявленные 327 метров на треть съедаются пустым пространством под стеклом. Поэтому реальная жилая площадь уменьшается. Также непонятно, как решается проблема летней защиты от солнечных лучей. В общем, заявка интересная, но мне кажется, что проект не проработан до конца.
Дата создания: 2007
Расположение: Вильнюс, Литва
Площадь дома: 327 кв.м
Площадь участка: 1647 кв.м
Архитекторы: Architectural Bureau G.Natkevicius & Partners


















5 главных правил защиты окон на время строительства
Система озелененной кровли
Поговорим об окнах...
Бассейн... С чего начнем?
Сверкнуть фасадом. Вопросы освещения... 
