Оформление частного дома является отражением индивидуальных предпочтений его владельцев. Оригинальный интерьер небольших домов фото которых представлены во множестве информационных источников отличается продуманностью и максимальным уровнем комфорта.
Главной чертой интерьера маленького дома является рациональность и возможность предоставления личного пространства каждому жителю. Прекрасным дизайнерским решением в данном случае станет использование разнообразной трансформируемой мебели, способной выгодно сэкономить полезную площадь, не лишая обитателей высокого уровня комфорта. Если в доме присутствует лестница, разумным решением станет использование подлестничного пространства, в котором может быть расположен встроенный шкаф.
Для помещений небольшого размера лучше всего использовать светлую цветовую гамму, способную зрительно увеличить пространство. В качестве отделки следует отдать предпочтение натуральным материалам, несущим особую энергетику домашнего уюта. Стильный интерьер небольших домов, фото которых можно подробно изучить на этих страницах, украсит сочетание светлых оттенков с элементами, выполненными из натуральной древесины.
Оформление загородных домов отличается своей самобытностью за счет максимального приближения к природе. Для таких объектов характерно использование разнообразных каминов, выполняющих не только декоративную роль, но и применяемых по своему прямому назначению. В роли его альтернативы может выступить печь, способная обеспечить автономное теплоснабжение и в тоже время стать изюминкой интерьера конкретного помещения.
Особое внимание следует уделить дверям, отделяющим жилое пространство от уличного. Они должны быть рассчитаны на большие нагрузки и быть устойчивыми к различным климатическим условиям. В случае необходимости установки в маленьком доме лестницы, соединяющей этажи, лучшим выбором станет маршевая или винтовая конструкция.
Создавая оригинальный интерьер небольшого загородного дома, фото которого можно детально проанализировать, глядя на готовые профессиональные проекты, представленные в этом разделе, следует особое внимание уделить оформлению окон, которые не должны способствовать теплопотере. Сейчас наиболее популярными являются металлопластиковые и деревянные оконные конструкции, обеспечивающие комфорт и безупречный внешний вид.
Для людей, предпочитающих высокий уровень комфорта, не менее интересными в данном случае станут интерьеры таунхаусов фото которых также представлены в соответствующих разделах. Единый стиль в оформлении маленького дома придаст ему особую изысканность.
Фото интерьера санузла дома в стиле кантри
Фото интерьера каминной дома в современном стиле
Фото интерьера кухни дома в современном стиле
Фото интерьера гостиной дома в современном стиле
Фото интерьера лестницы дома в современном стиле
Фото интерьера гостевой дома в современном стиле
Фото интерьера веранды дома в современном стиле
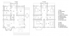
Поэтажный план небольшого двухэтажного деревянного дома в Подмосковье. Общая площадь: 250 кв. м.
Фото фасада дома в стиле минимализм
Фото интерьера гостиной дома в стиле минимализм
Фото интерьера гостевого санузла дома в стиле кантри
Фото фасада дома в современном стиле
Фото интерьера каминной дома в современном стиле
Фото интерьера столовой дома в современном стиле
Фото интерьера лестницы дома в современном стиле
Фото интерьера гостевой дома в современном стиле
Фото беседки дома в современном стиле
Фото интерьера зоны отдыха дома в современном стиле
Фото фасада дома в стиле минимализм
План 1 этажа 3-х этажного таунхауса до и после перепланировки.
План мансарды 3-х этажного таунхауса до и после перепланировки.
Фото фасада дома в современном стиле
Фото интерьера гостиной дома в современном стиле
Фото интерьера гостиной дома в современном стиле
Фото интерьера лестничного холла дома в современном стиле
Фото интерьера спальни дома в современном стиле
Фото интерьера санузла дома в современном стиле
Фото интерьера веранды дома в современном стиле
Фото интерьера входной зоны дома в стиле минимализм
Фото интерьера гостиной дома в стиле минимализм Фото интерьера каминной дома в стиле минимализм