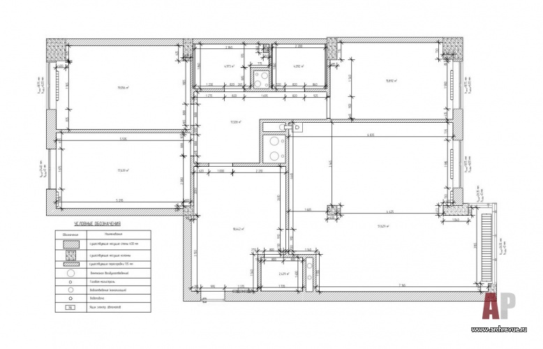
В жилом комплексе премиум класса в центре Калининграда дизайнер Алена Чашкина оформила четырехкомнатную квартиру, превратив не самую удобную планировку в эффектную особенность интерьера. Несущие перегородки и колонны, большое количество вентиляционных каналов, невысокие потолки, три небольшого размера санузла – все это не самая лучшая исходная ситуация, которую следовало филигранно обыграть и создать комфортное, современное и статусное городское жилье на Балтике.
Техническое задание заказчика было конкретным и достаточно обширным: общая гостиная, кухня с островной частью, большая гардеробная при входе и много систем хранения в помещениях, совмещенная с санузлом спальня, телевизор в ванной комнате, гостевой санузел с хозблоком, современная система вентиляции и кондиционирования - требовалось создать максимально функциональный интерьер. И при этом яркий, запоминающийся, с характером.
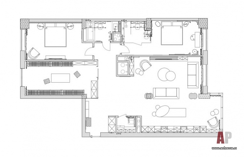
Дизайнер осуществила небольшую перепланировку, которая позволила нивелировать исходные недостатки и создать новое функциональное пространство. К несущей колонне в общей гостиной она добавила фальш-колонну, сделав симметричную композицию зоны отдыха.
Колонны позволили логично зонировать кухню с островом, сделав объем собранным и в то же время сохранив воздушность. Приватные помещения разместились отдельным самостоятельным блоком: две спальни (мужская и женская) оснащены своими ванными комнатами. При входе организована большая гардеробная комната с окном.
Интерьер оформлен в современном стиле с элементами ар-деко. Качественные отделочные материалы, дизайнерская мебель и аксессуары, фактуры натуральной кожи и шпона дерева – все это атрибуты респектабельного интерьера.
Акцентный элемент общей зоны – стена за ТВ, оформленная камнем с природным рисунком с полками для хранения приятных мелочей. Кухня предельно минималистская: лаконичные однотонные фасады с навесными полками из черного стекла, бесшовный камень на столешницах контрастируют с отделкой колонн в стиле ар-деко и эффектной футуристической люстрой над островом.
Спальни максимально комфортные, в мужской доминируют фиолетовые обои с фактурой, имитирующей кожу, в женской ставка сделана на нестандартную архитектуру с прозрачной ванной комнатой, интегрированной в общий объем. Реечные раздвижные двери, деревянные ставни, крупноформатный керамогранит добавляют монохромному интерьеру графичности и масштабируют пространство.
Комплектация объекта
Строительные и отделочные материалы и изделия
Финишная отделка стен, краска Oikos (серия Kreos) и Hygge paint
Лепной декор из полиуретана Orac Decor
Обои Tiffany Design
Межкомнатные двери Lualdi Porte, поставщик СБР Студио
Раздвижные перегородки, компания Артис-мебель
Керамогранит Rex (коллекция Stratuario soft), Cerrad (коллекции Fratto Gris, Master Stone), Tubadzin (коллекция Grand Cave Grafite), Ceramika Netto (коллекция Marmoli polished gres, CSC), поставщик Мир Плитки
Свет Luceplan, Flos
Текстиль, деревянные жалюзи Coulisse, поставщик Textile Lab
Ковры, поставщик Amini
Сантехника Antonio Lupi, TOTO, ArtCeram; смесители Griferias Maier, Zucchetti, Hansgrohe; полотенцесушители Zehnder, поставщик Санилюкс
Мебель
Гостиная стеллаж, столик кофейный, стол журнальный Cattelan Italia, диваны DiTre Italia (модель Arlot Low), кресла Poltrona Frau
Кухня барный стул Poltrona Frau
Женская спальня кровать DiTre Italia, столики Moroso
Мужская спальня кровать и комод Alf DaFre, кресло Moroso, прикроватные столики B&B Italia
Кухня, зона ТВ, гардеробные, встроенные шкафы, мебель в ванных комнатах, на заказ – изготовление Артис-мебель
Поставка мебели – Сервант
Оборудование
Оборудование кухни, встроенная техника Bosch
Современный дом в лесу
Панорамный дом на Волге О профессии «ландшафтный архитектор», образовании и специфике частных и общественных ландшафтных проектов говорим с Иваном Бугаевым…































Созидание как эволюция: офис бюро «Крупный план»
Равновесие, цельность и гармония как результат работы архитектора…
Ландшафтный архитектор. Инженер. Проектировщик. Логик.
«Мода в интерьере — это зеркало нашего быта»...
Храм в городе 
11
22
33
44
55
66
77
88
99
1010 