Дизайнер Елена Зуфарова оформила квартиру на Кутузовском проспекте для семьи с тремя детьми и белым ретривером. Заказчики намеренно искали жилье в этом районе: здесь прошло их детство, вблизи когда-то жили родители. Но именно эту квартиру они купили случайно, на стадии продаж, и не прогадали. Дом, в котором она расположена, построен по проекту бюро «Цимайло+Ляшенко и Партнеры» и имеет уникальные световые фонари-трубы на современных фасадах.
Сама квартира находится на третьем этаже, ее окна выходят на три стороны, и отовсюду открывается прекрасный вид: на Кутузовский проспект, набережную со старинным зданием Бадаевского завода и одну из московских высоток – гостиницу Украина.
Заказчики долгое время прожили во Франции, поэтому им близки светлые и легкие парижские интерьеры. В то же время они ценят старые московские интерьеры, советскую эстетику и любят винтаж. Квартиру они видели воздушной, без лишнего пафоса, но основательной: настоящее семейное гнездо, где в радость растить детей и принимать гостей.
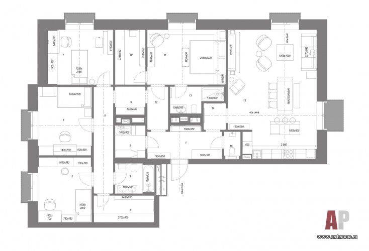
По планировкам застройщика в квартире площадью 155 кв. м изначально предполагалась общая зона (гостиная-столовая-кухня) и две спальни (большая хозяйская и дополнительная). Дизайнеру же следовало разместить три детские комнаты, достаточное количество санузлов и мест хранения. Для этого она разделила объем на две части: общественную территорию и частную половину.
Парадные помещения получили окна, которые выходят на более шумный проспект, а спальни разместились в тихой части. Для родителей был организован свой блок, включающий спальню, гардеробную, санузел. Для детей – три детские комнаты, объединенные своим коридором, также с гардеробной и санузлом. Удалось разместить даже постирочную с местом для купания собаки.
Однако сделать отдельную кухню в данном проекте не позволили особенности конструктива и расположение окон, а также пожелание заказчиков о едином пространстве, но кухонный блок удалось разместить в стороне от открытого общего пространства. И главное – сохранить центральную видовую перспективу от входа на гостиную с окном, обращенным на сталинскую высотку.
При оформлении интерьера дизайнер стремилась сохранить баланс современной архитектуры дома с уникальными ардекошными световыми фонарями и запроса заказчиков на парижские интерьеры. Кроме того, важно было органично обыграть еще один интерес хозяев – к старомосковской классике и советскому дизайну.
Отсюда в интерьере дубовый паркет с укладкой «ёлочкой» (в общей зоне) или узкая дубовая доска (в приватных помещениях), цементная плитка разных цветов, в том числе и ручной работы, лаконичные гипсовые карнизы со скругленными углами.
Важную роль в интерьере играет цвет. По словам дизайнера, он возник из ощущений от квартиры, ее месторасположения, общей цветовой среды и вида из окон. «Цвет домов на проспекте, синее небо и кирпичные стены Бадаевского завода – все это опосредованно перешло в цветовую гамму интерьера. Гостиная молочного цвета с полами классического дуба – вечная классика и для Москвы, и для Парижа. Цвета в детских немного иные, они выбраны с учетом пожеланий их маленьких владельцев», - рассказывает автор проекта.
При выборе мебели дизайнер руководствовалась общими принципами решения интерьера, балансом между всеми составляющими: формами, материалами и фактурами. Поэтому появились и винтажные предметы, и современные, что в условиях небольшого бюджета стало наилучшим решением: ярким, эффектным и максимально рациональным.
Комплектация объекта
Строительные и отделочные материалы и изделия
Изделия из дерева, двери, компания Oldwood
Лепной декор из гипса, компания «Идеал Декор»
Финишные отделки стен, краски Zoffany, Farrow & Ball
Паркет, поставщик «Заря Паркет»
Кухонные столешницы и фартук, поставщик Quartz Style
Цементная плитка Luxemix, керамика TopCer
Свет Ralph Lauren, Gubi, Foscarini, Muuto, Menu, New Works, Warm Nordic, Nuura, Berliner Messinglampen, Graypants, Umage, Seletti; винтаж, поставщик Apartment with vintage
Ковры Cappelen Dimyr, Amini
Сантехника Laufen, Villeroy & Boch, инсталляции Tece
Мебель
Прихожая шкаф, консоль, на заказ, по эскизам дизайнера; скамья Ethnicraft
Гостиная диван Fritz Hansen, стол Hay, кресла Artifort (by Pierre Paulin), винтаж – поставщик Correct Form Gallery; винтажный столик Mathieu Mategot, Франция, 1950-е
Столовая стол BoConcept, стулья, винтаж – поставщик Podra Store; лавка Dutchbone
Кухня Cesar, барные стулья Hay
Спальня кровать Felis, тумбочки La Redoute, комод Vysotka home, скамья Ethnicraft
Детская среднего сына шкафы и стол, на заказ, по эскизам дизайнера; кровать Bonaldo, тумбочка Kartell, стул Zuiver
Детская старшего сына шкафы и стол, на заказ, по эскизам дизайнера; кровать Vysotka home, стул Dutchbone
Детская дочери кровать La Redoute, стол The Idea, стеллаж Normann Copenhagen; шкафы и туалетный столик, на заказ, по эскизам дизайнера; пуф White label living
Мебель для ванных комнат, на заказ, по эскизам дизайнера
Мебель на заказ – изготовление Oldwood
Оборудование
Оборудование кухни, встроенная техника Neff
Двухэтажный пентхаус в современном стиле
Деревянный дом с террасой и открытой жаровней Поиски нового офиса привели владельцев архитектурного бюро «Крупный план» к неожиданному, но очень значимому шагу – приобретению особняка - объекта культурного наследия XIX века...






























Созидание как эволюция: офис бюро «Крупный план»
Равновесие, цельность и гармония как результат работы архитектора…
Ландшафтный архитектор. Инженер. Проектировщик. Логик.
«Мода в интерьере — это зеркало нашего быта»...
Храм в городе 
11
22
33
44
55
66
77
88
99
1010 