Заказчик дизайнеров Марины Пенние и Романа Воронова – занятой серьезный мужчина – хотел построить комфортный деревянный дом для проживания за городом с минимумом декора, большой зоной для приема друзей и гостей, зоной BBQ на улице и открытым кострищем на веранде. За индивидуальным проектом он обратился в компанию Honka, архитектор Светлана Веселова-Беднякова разработала проект одноэтажного дома: рационального, компактного, с большой верандой под крышей.
При проектировании она сделала упор на особенностях участка: вся часть панорамного остекления обращена на овраг, естественность которого заказчик хотел сохранить. Дизайнеры подключились к работе на стадии обсуждения архитектурного проекта и активно участвовали в выборе не только декоративных и строительных решений (окна, двери, отделочные материалы), но и архитектурных: площадь и расположение террасы, посадка дома на участке, тип фундамента (изначально планировался цокольный этаж). Такой комплексный подход позволил наилучшим образом реализовать все пожелания требовательного заказчика и создать индивидуальный интерьер, который по-настоящему отражает личность владельца.
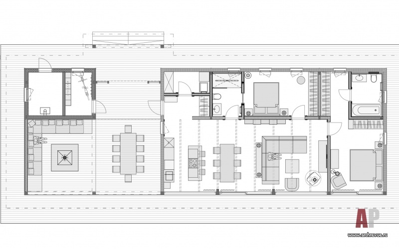
Одноэтажный деревянный дом построен из безусадочного бруса. Его общая площадь составляет 270 кв. м, из них 100 кв. м – жилая, а 170 кв. м – площадь террас и технических помещений. Центральный объем дома занимает общая гостиная-столовая-кухня, зоны выстроены по одной оси вдоль панорамных окон.
К ней примыкает гостевая спальня с гостевым санузлом и изолированный хозяйский блок, включающий спальню, ванную комнату и гардеробную. Центральный вход предваряет терраса с зоной барбекю, угловым диваном на большую компанию и открытой жаровней.
Заказчик – молодой бизнесмен, любит отдых на природе, ценит естественную красоту и комфорт, в деталях предпочитает стилистику ар-деко. Ему нравится природная фактура дерева, сдержанность и монохром (первоначально интерьер вообще планировался черно-белым, но уже потом появились яркие цветовые акценты – горчичная обивка дивана, столешница из камня и фартук на кухне желтого цвета).
«Мы попытались создать интерьер, похожий на нашего заказчика: в меру брутальный, но не скучный, неожиданный и спокойный одновременно, - отмечают дизайнеры. – В нем много натурального дерева, поданного в современном исполнении». Краски интерьера спокойные, в выборе оттенков авторы проекта отталкивались от серого цвета и разбавляли интерьер цветными деталями. С фасада дом получился более темным, в интерьере же он сделан чуть посветлее: дерево и так сильно поглощает свет, хотелось не перетемнить.
Его декоративное наполнение – это микс предметов как дорогих фабрик, так и очень бюджетных. Но везде использованы только натуральные материалы и богатые фактуры. Значительная часть предметов, в том числе все кровати, диван и кухня выполнены по эскизам дизайнеров московскими мебельщиками. Они же изготовили эффектный журнальный стол из толстых бревен и пни из кедра (их 15 штук!), отшлифованные вручную и покрашенные в разные цвета они есть во всех помещениях, что еще больше подчеркивает природную сущность проекта.
Комплектация объекта
Строительство, компания Honka
Строительные и отделочные материалы и изделия
Двери, поставщик Honka
Декоративные финишные отделки стен, краски по дереву Sikkens, поставщик «Дом краски Paint Life»
Паркет, дуб, Coswick, поставщик «Олимп Паркета»
Текстильный дизайн, шторы, деревянные жалюзи и карнизы, компания Kulagina Design
Керамогранит Peronda
Свет Vitaluce, Kare Design
Камин-печь Invicta (модель Bradford); каминный набор и ведро для дров, поставщик Adelle concept
Вытяжной короб на террасе, компания Diamond Grille
Аксессуары, поставщики Something Good и BoConcept
Декоративный текстиль, покрывала, поставщик Empire Design
Постельное белье, одеяла, подушки, поставщик Adelle concept
Сантехника ванна Riho, раковина и унитаз Globo, смесители Ramon Soler, инсталляции Tece, душевая перегородка Vegas Glass
Мебель
Гостиная диваны, столик журнальный, тумба под ТВ, библиотека, на заказ, по эскизам дизайнеров
Столовая обеденный стол Riva 1920, поставщик «ТРИО-Интерьер»
Кухня, на заказ, по эскизам дизайнеров
Мастер-спальня кровать и шкаф, пеньки, на заказ, по эскизам дизайнеров; комод и кресло Eichholtz, поставщик IDC Collection
Гостевая спальня кровать и шкаф, на заказ, по эскизам дизайнеров
Терраса диван и обеденный стол, на заказ, по эскизам дизайнеров; кресла плетеные Cara
Вся мебель на заказ – изготовление Something Good
Современная семейная квартира на Кутузовском проспекте
Бетонный дом в Подмосковье Поиски нового офиса привели владельцев архитектурного бюро «Крупный план» к неожиданному, но очень значимому шагу – приобретению особняка - объекта культурного наследия XIX века...


























Созидание как эволюция: офис бюро «Крупный план»
Равновесие, цельность и гармония как результат работы архитектора…
Ландшафтный архитектор. Инженер. Проектировщик. Логик.
«Мода в интерьере — это зеркало нашего быта»...
Храм в городе 
11
22
33
44
55
66
77
88
99
1010 
«Мы рады, когда проект доводится до конца. Мы начали отделку и комплектацию в очень непростое время, в 2021-2022 годах, когда мало что было понятно с поставками и вообще ситуацией в мире. Но нам удалось решить все поставленные задачи, а благодаря российским поставщикам сделать все красиво и качественно за приемлемые деньги и в нужные нам сроки».