Закрыть галерею
Изображение 27 из 27

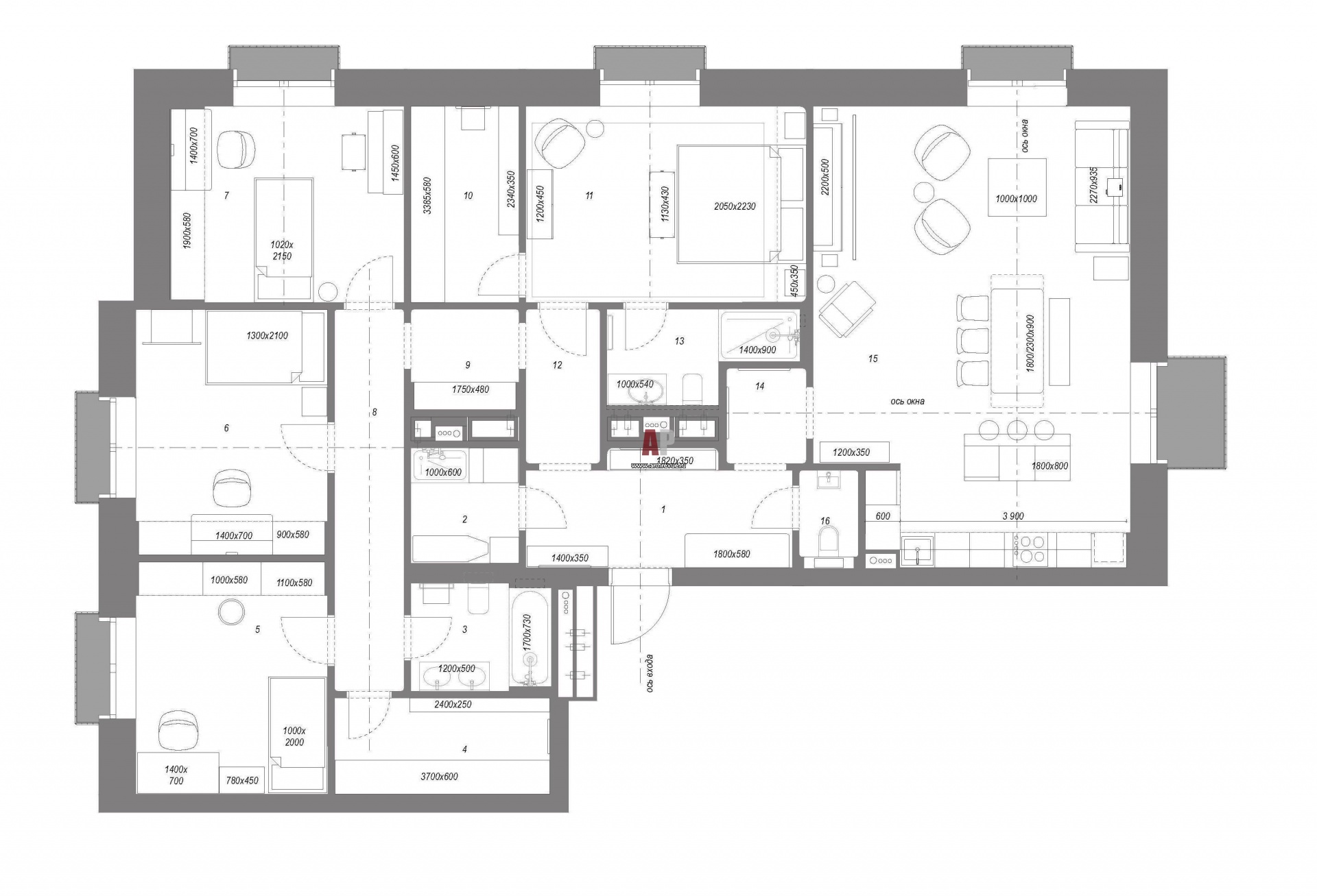
План семейной квартиры с тремя детскими. Общая площадь – 155 кв. м.

Планировка 5-ти комнатной квартиры в клубном доме «Кутузовский XII». 

Проект: Квартира с элементами парижского стиля и московской классики
Автор проекта: Зуфарова Елена
Объект: Современная семейная квартира на Кутузовском проспекте
Общая площадь: 155 кв.м.