Семейная пара с двумя дочками обратились в бюро Geometrix Design с запросом на современный интерьер и четким понимаем стилистических возможностей архитекторов, которые создают минималистские проекты со сложной, активной геометрией и инновационными решениями. Задача была объединить две сложные по планировке квартиры в большое семейное жилье, продумать общую зону, детское пространство и обязательно выделить гостевую на случай приезда родственников.
Функционал всех зон должен был быть полноценным, но без ущерба общей эстетике. Стилистически заказчикам нравились многоплановые интерьеры с интересными перспективами, мобильными решениями, чистыми ровными плоскостями, бетоном и монохромом. Поэтому обыграть планировку архитекторы предложили с помощью масштабных объектов с активной геометрией, деконструктивистских приемов и нейтрального фонового дизайна.
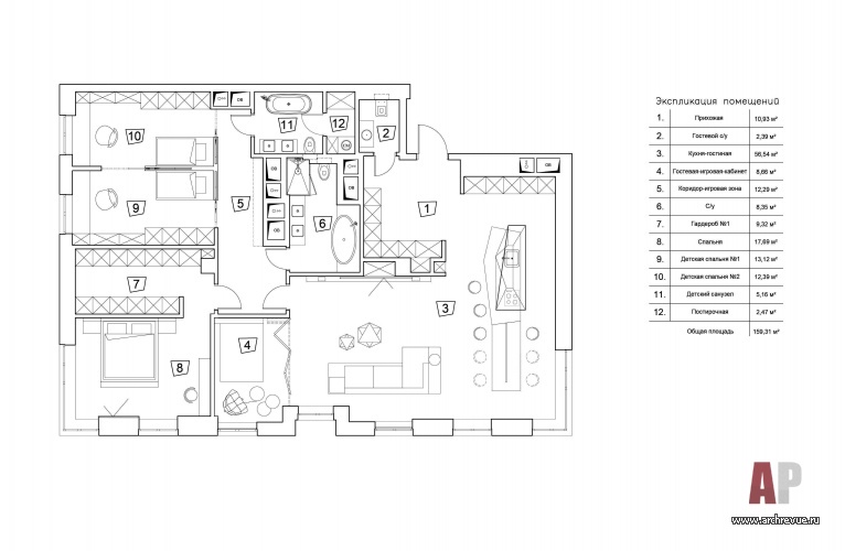
Квартира площадью 159 кв. м создана путем объединения двух соседних квартир. Почти половину от общей площади заняла гостевая зона – открытое пространство гостиной, столовой и кухни. Ее доминанта – кухонный остров-айсберг с ломаными гранями, облицованный керамогранитом и зеркалами.
Впечатляющий объем, своего рода арт-объект с огромным функционалом: вытяжкой, варочной панелью, мойкой, шкафами для хранения и светильником. Как часть гостиной решена гостевая комната. «Для полноценной гостевой места не хватало. Нам не хотелось урезать площадь общей зоны, поэтому мы придумали комнату-трансформер. В обычной жизни зона отдыха с уютным креслом расположена на подиуме и визуально объединена с гостиной, но, когда необходимо, из стены, отделанной панелями из ореха, откидывается кровать, а скрытые раздвижные двери превращают этот блок в изолированную гостевую комнату», - рассказывают авторы проекта Майкл и Элен Мирошкины.
Приватная часть квартиры включает хозяйский блок со спальней, гардеробной и ванной комнатой, а также две абсолютно одинаковые по планировке и наполнению детские комнаты. Чтобы не лишать маленьких девочек совместных игр, детские спланированы смежными (с раздвижной перегородкой посередине), при этом каждая имеет независимый вход из холла.
Все решения в квартире выполняют сразу две задачи: функциональную и эстетическую. Так, сердцем проекта является кухня, где ключевую роль играет кубический остров, выполненный по эскизам авторов проекта. Он выглядит как арт-объект, при этом с обратной стороны имеет полноценную систему хранения.
В его облицовке использованы керамогранит и зеркало, отражение в котором меняется в зависимости от точки обзора и создает эффект игры объемов и преломлений света. В остров врезается обеденный стол из стекла. Деревянные панели и подиум из шпона американского ореха выделят гостевую зону- трансформер, в связке с ними изготовлена перегородка, которая убирается в стену, и откидная кровать. В гостиной за черным стеклом спрятан телевизор, а лаконичные кухонные фасады снабжены ножным механизмом открывания.
Интерьер оформлен в монохромной палитре, настроение в нем меняется в зависимости от освещения и погоды. Белые стены, серый пол, тонированный бетон, оставленный в зоне гостиной как ключевой момент отделки, зеркала, ломающие и расширяющие объем – вот его основные особенности. В приватных пространствах основная линия сохраняется, но акценты немного смещаются: в хозяйской спальне на первый план выходят вертикальные серые матовые стеновые панели, в детских – оригинальные круглые светильники и удобная встроенная мебель, в главном санузле – будто врезанная в брутальный серый камень округлая парящая ванна.
Комплектация объекта
Строительные и отделочные материалы и изделия
Изделия из дерева, стеновые панели, двери, встроенная мебель, компания «АФ Ника»
Паркет, поставщик Finex
Керамогранит Laminam и Inalco, плитка Ceramica Fioranese
Свет Pallucco, Vibia
Система OFS Invisilight с вентиляционным диффузором Invisiline и интегрированным светом Wever & Ducré
Сантехника парящая ванна Glass 1989, ванна Villeroy & Boch; унитазы Ceramica Cielo, Laufen, Galassia; раковины Laufen, Galassia; смесители Gessi
Мебель
Гостиная диван и столики Poliform, кресло Moroso
Столовая стулья MDF Italia
Кухня Leicht
Спальня кровать и тумбы Poliform, пуф B&B Italia
Детские кровать Lago, стулья MDF Italia; корпусная мебель, рабочий стол, на заказ по эскизам архитекторов
Мебель для ванных комнат Antonio Lupi и Galassia
Мебель на заказ – изготовление компания «АФ Ника»
Оборудование
Оборудование кухни Miele
Система теплых полов Devi
Элегантная квартира с игрой полутонов
Квартира в стиле дорогого отеля Великое наследие и возрождение Храмового зодчества в России – поговорим об этом с архитектором Дмитрием Пшеничниковым, основателем архитектурного бюро «Дмитрий Пшеничников и Партнеры»































Равновесие, цельность и гармония как результат работы архитектора…
Ландшафтный архитектор. Инженер. Проектировщик. Логик.
«Мода в интерьере — это зеркало нашего быта»...
Храм в городе
Три кита современного стиля 
11
22
33
44
55
66
77
88
99
1010 