Почти десять лет дизайнеру Наталье Поповой потребовалось на то, чтобы создать загородный дом для себя и своей семьи, превратить струю сталинскую дачу в неоклассический особняк с подробным декором, антиквариатом и значимыми для семьи предметами. «В свое время нам очень понравилось место – территория дома отдыха «Снегири», где ранее была усадьба графов Кутайсовых с классическим главным домом, а в послевоенное время были построены типовые сталинские дачи. Берег пруда, высокие сосны, романтика…
Моей семье достался только остов дома: стены по периметру, без крыши, межэтажные прогнившие перекрытия. Нужно было полностью реконструировать постройку. В качестве архитектора была приглашена Ирина Сазонова, и началась глобальная реконструкция с оглядкой на русскую классику», - отмечает автор проекта.
Изначально дом имел «П»-образную форму, архитектор предложила выдвинуть часть фасадной части и создать прямоугольный объем, тем самым расширив второй этаж. Увеличить площадь также позволили большая мансарда и веранда. Работы велись размеренно и поэтапно по всему объему сразу. Сначала закрыли строительный контур (окна, стропильная система, перекрытия, кровля) и сменили финишный материал кровли на мягкую битумную черепицу. Затем переключились на инженерные системы, которые требовали полной замены, а далее – перешли к отделочным работам, которые продолжались несколько лет. Интерьер складывался постепенно, без спешки. Дизайнер по несколько раз перекрашивала стены, примеряла привезенные из поездок винтажную мебель, антикварные предметы и искусство, чтобы найти верное настроение, тот образ, который сильнее всего отзывается в душе.
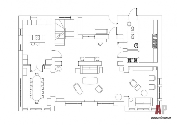
Пространство дома площадью 450 кв. м. организовано на трех этажах. Первый этаж имеет классическую анфиладную планировку с открытыми проемами-порталами, здесь расположены основные гостевые зоны: гостиная, каминный зал, парадная столовая. Отдельным помещением выделена кухня с островом для завтраков и быстрых перекусов.
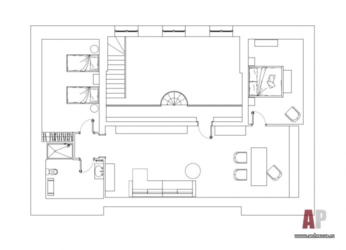
Ядро второго этажа составляет двусветная зона отдыха, предназначенная для семейного досуга, по периметру пространства расположены спальни: хозяйская, детские, гостевые со своими ванными комнатами.
Верхний, мансардный, этаж занимают дополнительные спальни и большая мастерская-кабинет дизайнера. Из общей зоны второго этажа к ним ведет ажурная винтовая лестница из металла.
«Оконные проемы в целом не менялись, за исключением гостиной, где их было решено опустить, чтобы была возможность выхода на террасу, которую пристроили к дому. Также добавили света в холле второго этажа, когда надстраивали контур для мансарды. Но основа архитектуры – послевоенный сталинский проект. Очень удачный и атмосферный», - отмечает автор проекта.
Интерьер дома складывался постепенно и очень осознанно. Все десять лет в нем появлялись новые предметы, из каждого путешествия, будь то семейный отдых в Испании или поездка в Нормандию, дизайнер привозила то кресло, то светильник, то небольшой аксессуар, который обязательно находил свое место.
Большие окна и хорошая освещенность внутреннего пространства позволили использовать плотную темную палитру. Так, стены одной гостиной выкрашены цветом Antique Noir («античный черный»), другой – оформлены насыщенным зеленым. В сочетании с обивками мебели оттенков сапфира, аметиста и сливы, а также отделкой из латуни, темный фон раскрывается нюансами оттенков и становится еще богаче… Это ощущение усиливают многочисленные детали: резной портал антикварного камина, состаренное зеркало, вазы, светильники, искусство.
Аристократическую линию оформления поддерживает декор второго этажа, где двусветный зал больше всего напоминает гостиную старого французского замка с деревянным потолком, ажурной винтовой лестницей, коваными люстрами и исторической кирпичной кладкой. Кирпич здесь аутентичный, с утолщениями и шероховатостями, он был лишь окрашен в светлый оттенок и выставлен на обзор. Точно такая же неоштукатуренная стена, но серо-зеленая, оставлена и в мастер‑спальне. Эти детали придают интерьеру ностальгическую ноту. Верхний, мансардный этаж исполнен в более современном ключе.
Стены и потолок кабинета дизайнера зашиты крупноформатными листами фанеры, длинный рабочий стол в бионическом стиле изготовлен из корня тополя, а стеллаж и растянувшийся от стены к стене комод выполнены из дуба по эскизам автора проекта. Резюмируя, надо сказать, что долгая работа пошла проекту только на пользу: он наполнился деталями, стал очень личностным, в нем появилась атмосфера дома с историей, где каждая вещь на своем на месте и прочно связана с жизнью семьи.
Комплектация объекта
Строительные и отделочные материалы и изделия
Окна, деревянные стеклопакеты, поставщик «Вешки»
Отделка фасада, краска Beckers
Изделия из дерева, двери, компания Bionica Wood
Лепной декор из гипса, «Петергоф»
Финишная отделка стен интерьеров Little Greene, Argile, поставщик «Салон краски»
Лестница, «Мастерская ковки Сергея Филипьева»
Паркетная доска, поставщик «Золотой лес»
Керамогранит с мраморными вставками, плитка, поставщик «Джиель»
Камин, антикварный, конец XIX века
Свет Arteriors; винтаж, антиквариат; Bottega; Altagamma
Зеркало, гравюры, аксессуары, поставщик «Живые вещи»
Ковры, шпалеры, поставщик «Ателье Марка Патлиса»; ковры Safavieh
Текстильный дизайн, компании «Кадо», «Галерея Арбен»
Шторы Casamance, Schumacher; покрывала Malabar
Сантехника раковины Olympia, умывальник, унитаз Simas, ванна Jacob Delafon
Мебель
Гостиная диваны Guadarte, шезлонг Danish Design, поставщик Correct Form Gallery; табурет Dax Sierra; стол журнальный, на заказ, по эскизам дизайнера; антиквариат
Холл второго этажа библиотека, на заказ – изготовление Bionica Wood; антиквариат
Вторая гостиная ТВ тумба и пьедестал из шпона тополя, на заказ – Bionica Wood; кресло в обивке Fabricut и кресла в обивке Pierre Frey, винтаж; антиквариат
Столовая обеденный стол, антиквариат; стулья Loft Studio
Кухня Leicht, остров из мраморного агломерата – изготовление Stone&Home
Мастер-спальня кровать Loffilab в обивке тканью Casamance; кресло, антиквариат
Детские кровати Loffilab, письменный стол Fancy Home Collection; антиквариат
Мастерская в мансарде длинный стеллаж, письменный стол из шпона корня тополя, библиотека, на заказ – изготовление Bionica Wood
Квартира с видом на Смольный собор в Санкт-Петербурге
Французская квартира в Сокольниках О профессии «ландшафтный архитектор», образовании и специфике частных и общественных ландшафтных проектов говорим с Иваном Бугаевым…


































Созидание как эволюция: офис бюро «Крупный план»
Равновесие, цельность и гармония как результат работы архитектора…
Ландшафтный архитектор. Инженер. Проектировщик. Логик.
«Мода в интерьере — это зеркало нашего быта»...
Храм в городе 
11
22
33
44
55
66
77
88
99
1010 