При оформлении квартиры в современном жилом комплексе вблизи Смольного собора в Санкт-Петербурге дизайнеры Анна Першукова и Анна Гришанова вдохновлялись работами известных американских дизайнеров и топовыми предметами фабрики Baker. Это позволило им создать элегантный и комфортный timeless interior в духе современной американской классики. Заказчики – семейная пара – пришли к дизайнерам по «сарафанному радио».
Они хотели эстетичную и функциональную квартиру в приятной светлой гамме, со скрытыми системами хранения и качественной мебелью. Предметы должны были выглядеть красиво не только снаружи, но и внутри: внутренняя отделка шкафов, фурнитура, скрытые элементы – все на высшем уровне. Так родилась идея современной американской классики со свойственными ей красивой архитектурой, респектабельностью и сдержанной элегантностью в деталях. Подбором искусства в проект занималась арт-консультант Наталья Елисеева.
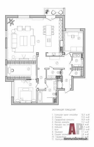
Исходная планировка квартиры площадью 180 кв. м представляла набор отдельных помещений: 4 комнаты, кухня и 2 санузла с транзитным и очень большим холлом. Заказчик хотел сделать единой зону кухни-столовой-гостиной, в приватной зоне разместить спальню с большой ванной и гардеробной по соседству, а также кабинет. Для комфортного проживания нужно было спроектировать постирочную, гостевой санузел и много мест для хранения.
Главная особенность квартиры – великолепный вид на Смольный собор и парк. Чтобы усилить парадный настрой интерьера, общую зону дизайнеры ориентировали на роскошную панораму: она отлично просматривается как из столовой, так и с диванной группы. Уменьшение большого нерационального холла позволило увеличить кухню, разместить в ней обеденный стол и значительно улучшить пропорции гостевого пространства.
Небольшой буферный коридор авторы проекта сохранили, он ведет на приватную территорию с видом на тихий парк и включает спальню, просторную гардеробную с окном и ванную комнату. Кабинет примыкает к гостиной с парадной панорамой, и, сидя за рабочим столом, можно созерцать позолоченные купола собора.
Прихожая обособлена от основных помещений, в конструктивных стенных нишах организовано дополнительное хранение и встроенный шкаф. Гардеробная для верхней одежды примыкает к постирочной.
При оформлении квартиры дизайнеры соединили классические элементы, минималистичный дизайн и современное искусство. За основу взяли традиционную канву: лепной карнизы и молдинги из гипса, паркет с укладкой «французская елка» из древесины американского ореха с долговечным покрытием, филенчатые межкомнатные двери… «Мы выбирали благородные фактуры и тактильные материалы, чтобы к ним было приятно прикасаться. Поэтому здесь много натурального дерева, камня, латуни, тактильного текстиля – бархата, шерсти, шелка, египетского хлопка. Классический фон разбавили современной американской мебелью и предметами коллекционного дизайна», - отмечают авторы проекта.
Особое внимание дизайнеры уделили цветовой палитре: она тонкая, изящная, нюансная.
Зона гостиной и общие пространства имеют теплый приятный оттенок итальянского печенья Cantucci, кабинет и спальня оформлены в светлых оттенках серого и голубого. Сложная гамма успокаивает и настраивает на созерцательный лад и служит идеальным фоном для эффектных дизайнерских предметов, а также картин, графики, фото и скульптур современных, преимущественного петербургских художников. Они дают необходимый эмоциональный заряд и вместе с великолепным видом из окон служат для хозяев неиссякаемым источником вдохновения.
Комплектация объекта
Строительные и отделочные материалы и изделия
Фурнитура мебельная, компания Latuning
Дверные ручки Buster + Punch, поставщик Furnitek Group
Лепной декор, поставщики «Онима», Piterra
Финишная отделка стен, краска Designers Guild, Benjamin Moore
Паркет Monpar, поставщик «Питер Паркет»
Камень мрамор Bardiglio, Statuario, работы по камню – компания Jamstone
Мраморная мозаика, поставщик Lithos Mosaico
Свет Baker, Masiero, Workstead, Ralph Lauren, DOM Edizioni, Circa Lighting
Текстильный дизайн, «Мастерская Ксении Дедовой»
Ковры, поставщики Jerome Botanic, Dovlet House, l.e.store
Постельное белье, покрывала, поставщик Atelier Tati
Растения горшечные и срезы, поставщик Saint palms
Искусство, Galerie 46, Marina Gisich Gallery, l.e.store
Сантехника раковина Devon & Devon, смесители Zucchetti, поставщик Sturm
Мебель
Прихожая банкетка Signorini & Coco, столик для ключей и мелочей Friends & Founders
Холл консоль Faina, табурет Zanat
Гостиная диван, кресла, кушетка Baker, кресло-шезлонг Cassina, столик La Chance, консоль Theodore Alexander; корпусная ТВ-мебель, на заказ
Кухня мебель Effeti, стулья Baker
Гардеробная, на заказ
Кабинет письменный стол Bolier, стул Overgaard & Dyrman; шкафы, на заказ
Спальня кровать, тумбы, кушетка Baker
Поставка мебели – Space Four Concept Store, BVS interiors, Gallery 46
Оборудование
Вентиляция и система «умный дом» на базе оборудования Jung, поставка и инсталляция, компании «Сэтком»
Оборудование кухни, встроенная техника V-Zug
Четырехэтажный пентхаус на Знаменке
Загородный дом в Снегирях Великое наследие и возрождение Храмового зодчества в России – поговорим об этом с архитектором Дмитрием Пшеничниковым, основателем архитектурного бюро «Дмитрий Пшеничников и Партнеры»




























Ландшафтный архитектор. Инженер. Проектировщик. Логик.
«Мода в интерьере — это зеркало нашего быта»...
Храм в городе
Три кита современного стиля
Проект: Аэропорт «Кавказ» 
11
22
33
44
55
66
77
88
99
1010 