Для своих давних знакомых дизайнер Наталья Попова построила и оформила дом в Балаклаве, в котором соединила современную архитектуру, историческую культуру Крыма и ремесленный дух французской Ривьеры. Проект начался с того, что заказчики – семейная пара средних лет – решили снести старый дачный дом, который устарел во всех отношениях, и на его месте построить новый.
Семья ожидала пополнение, скоро должны были появиться долгожданные дети (мальчики-близнецы), и нужен был дом функциональный, из современных материалов, с абсолютно другой планировкой, технической начинкой и настроением. «Для заказчиков Балаклава – это место силы и любви, они родились и выросли в Севастополе. Поэтому ответ на вопрос, где строить дом для себя и своих детей, был однозначным. Мне хотелось создать интерьер, наполненный светом, любовью к этим людям и этому совершенно уникальному месту, в котором красота и история везде. Скифы, татары, греки – здесь такое наслоение различных культур и ощущение свободы… Хотелось передать это настроение в интерьере, чтобы дети выросли с чувством внутренней свободы и гордости за свой край», - рассказывает автор проекта.
Пятно застройки было точно определено, важно было сохранить всю инфраструктуру участка: бассейн, зону барбекю, любимые деревья. Эскизный проект был заказан московскому архитектору Елене Першиной, которая спроектировала на склоне горы трехэтажное здание, всем своим фасадом развернутое на панорамный вид в долину рядом с виноградниками Золотой Балки.
Строительством занимались местные специалисты с использованием традиционных для Крыма и его каскадного рельефа технологий.
Каркас дома железобетонный с заполнением газоблоком, кровля – плоская, неэксплуатируемая с парапетом, на ней расположена климатическая установка системы вентилирования и кондиционирования, панорамные окна – с алюминиевым профилем и энергоэффективными стеклопакетами с защитой от ультрафиолета. Фасады оформлены характерной для этого региона камешковой декоративной штукатуркой белого цвета. Ограждения балконов выполнены из закаленного стекла и не перекрывают роскошный природный вид.
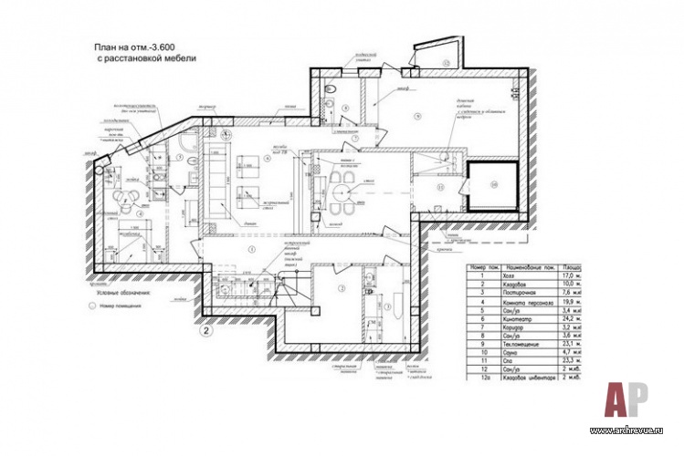
Дом площадью 600 кв. м включает три этажа. Цокольный этаж с трех сторон утоплен в ландшафт, наружные стены железобетонные с внешней гидроизоляцией и утеплением, вокруг – дренажная система отвода воды от грунтовых вод. Здесь расположены хозяйственные и технические помещения, а также зона отдыха с домашним кинотеатром и баром, СПА с сауной.
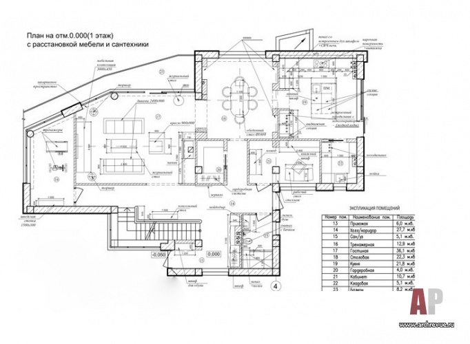
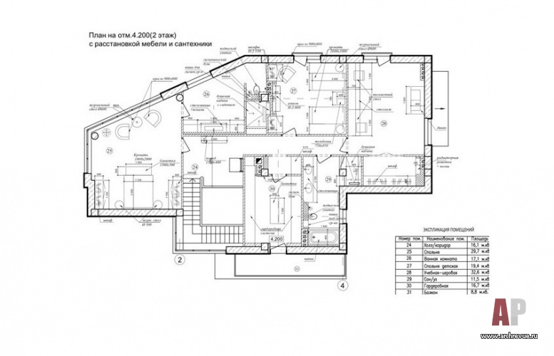
Первый этаж включает зону прихожей и холла, выстроенную в анфиладу вдоль панорамных окон гостиную, столовую и кухню, кладовую для продуктов, кабинет, мини-спортзал. На втором этаже находятся приватные помещения: мастер-спальня с ванной, детская спальня для близнецов, игровая комната, детская ванная и гардеробная. В холле второго этажа спроектирована выдвижная лестница для выхода на плоскую крышу.
Центральный элемент внутреннего объема – лестница. «Нам не хотелось делать ее доминантой, главное в доме – воздух, пространство, наполненное светом, и виды из панорамных окон. Нужно было «растворить» ее в интерьере, чтобы она его не перегружала, но вместе с тем, подчеркивала архитектуру дома, задавала определенную графичность линий, «белое по белому», давала некую отсылку к средиземноморскому стилю», - отмечает дизайнер Наталья Попова.
Такой дом мог появится только здесь, в Крыму, в Севастополе, вблизи горного склона с виноградниками под теплым солнечным небом. Интерьер дома наполнен светом и максимально открыт: крымская природа со всей ее красотой проникает внутрь и сливается с декоративным наполнением. Обилие дерева, тактильные фактуры, теплые природные цвета, аутентичные детали, греческий паттерн – во всем прослеживается единство места.
Материалы и текстуры по ощущениям созвучны виду, открывающимся на долину с известняковой слоистой горой, где в определенное время суток даже можно увидеть диких животных. Стены отделаны белой гипсовой штукатуркой с бархатистой фактурой, на полу – плитка под травертин, массив ореха, керамика. Керамики здесь много, и она необыкновенная: во-первых, удивительный кухонный фартук со сложной геометрией полотен чешских кубистов, во-вторых – авторские керамические светильники в виде морских раковин, они созданы московским мастером по индивидуальным эскизам…
Большую роль в создании правильного настроения играет дерево: двери, порталы, мебель из фактурного тонированного дуба, шпона ясеня, ореха с патиной, ротангом и другими спецэффектами. Мебель подбиралась точечно, из фабричных предметов здесь только диван в гостиной, все остальное собиралось по крупицам в антикварных лавках Европы или изготавливалось в индивидуальном порядке современными российскими мастерами. Ощущение подлинности создают детали: картины местных художников и аутентичные артефакты, среди которых поставленная на постамент древняя амфора, поднятая хозяевами с глубин Черного моря.
Комплектация объекта
Строительные и отделочные материалы и изделия
Строительство Artline
Изделия из дерева, межкомнатные двери, порталы, стеновые панели, компания Bionica Wood
Панорамные окна, алюминий поставщик Schuco
Ограждения балконов из стекла, компания «Алюмэкспо Крым»
Декоративная штукатурка в отделке фасадов и интерьеров, микроцемент, поставщик «Стенология»
Обои Phillip Jeffries, Thibaut
Паркет, орех, поставщик «Золотой лес»
Керамогранит под травертин EdimaxAstor (коллекция Instone, Bone)
Плитка Zellige, Mosaic del Sur, поставщик Materialix; Amadis Fine Tiles (коллекция Boston Atlantic)
Мозаика Architeza
Керамическая плитка на кухонном фартуке, по эскизам дизайнера, компания Crea ceramics
Подоконники, камень Lime stone, компания «Стиль Камня Юг»
Свет Arteriors, Circa Lighting, антиквариат, винтаж; авторские бра из керамики Levadnaja Details; авторские бра Savour Design
Ковры, поставщики галерея Didier Benichou, M Carpet Atelier
Шторы S. Harris, Misia, поставщик «Кадо»
Постельное белье, поставщик Atelier Tati
Сантехника смесители Cocoon, Bongio; унитазы Bathco; раковины Stone&Home, Bathco; ванная Mauersberger
Вазы, ADH Studio, Woon Stores
Искусство, «Галерея Арт- Юг»
Мебель
Холл шкаф, на заказ – изготовление Bionica Wood; стул Dirk Van Sliedregt, винтаж, поставщик VivaVintage; консоль из стекла и травертина, Carlo Scarpa «Samo» Style
Гостиная кресла, антиквариат, Франция, 1920-е годы в обивке Dedar, поставщик Gallery Beke; журнальный столик Aldo Tura,1970-е годы, диван Hamilton Conte в обивке S. Harris
Столовая обеденный стол, по эскизу дизайнера – изготовление MOss Furniture; стулья, Дания, 1960-е годы
Кухня кухонный гарнитур с островом, на заказ – изготовление Bionica Wood
Кабинет кресло, Дания, 1960-е годы; стол письменный, стеллажи, на заказ – изготовление Bionica Wood
Спальня кровать, на заказ – изготовление «Мастерская Елены Гусевой»; винтажные кресла Guillerme et Chambron, 1960-е годы, Франция, поставщик Galerie Karine Szanto; банкетка, поставщик Zara Home; винтажные столики by Sergio Terzani, поставщик Gallery Beke; шкафы с вертикальными фрезерованными фасадами, на заказ – изготовление Bionica Wood
Спальня сыновей кровати, на заказ – изготовление «Мастерская Елены Гусевой»; кресло Alky chair by Giancarlo Piretti for Castelli, 1970-е годы, поставщик Gallery Beke; шкафы, игровая зона, на заказ – изготовление Bionica Wood
Мебель для ванных комнат и кладовой, гардеробная из ЛДСП Egger, на заказ – изготовление Bionica Wood
Оборудование
Оборудование сауны Tylo
Оборудование кухни, встроенная техника Miele
Консольный дом в Серебряном Бору
Харизматичная квартира с арочными окнами Поиски нового офиса привели владельцев архитектурного бюро «Крупный план» к неожиданному, но очень значимому шагу – приобретению особняка - объекта культурного наследия XIX века...




































Созидание как эволюция: офис бюро «Крупный план»
Равновесие, цельность и гармония как результат работы архитектора…
Ландшафтный архитектор. Инженер. Проектировщик. Логик.
«Мода в интерьере — это зеркало нашего быта»...
Храм в городе 
11
22
33
44
55
66
77
88
99
1010 
«Горжусь тем, что этот дом с момента заливки фундамента и до окончания отделочных работ мы сделали практически за полтора года. Это с учетом географии и всех логистических сложностей – Крым уже был в изоляции, вызванной пандемией, – рекордные сроки! Затем в течение года мы подбирали искусство, предметы декора, ждали ткань для штор… А в это время семья уже заехала и потихоньку обживала пространство».