Архитекторы бюро Arch(e)type под руководством Дарьи Беляковой оформили квартиру площадью 200 кв. м, расположенную в дореволюционном доме вблизи Патриарших прудов. Квартира была после демонтажа, без внутренних перегородок, архитекторов вдохновили ее правильные объемы, симметричность расположения архитектурных элементов и череда удлиненных окон по главному фасаду. Их ни в коем случае не хотелось скрывать, разбивать глухими стенами, напротив, важно было сохранить единый ритм, свет и воздух. Заказчика такой вариант очень устраивал.
Перфекционист по натуре он тяготел к неброской роскоши, которая считывается через большой масштаб, внимание к деталям и свободную, непринужденную атмосферу. В итоге получился минималистский, но полный эмоциональных и интеллектуальных деталей интерьер, который дает пищу для размышления и вызывает разноплановые культурные ассоциации. Например, стилизованные арочные окна и проемы отсылают к классическому старомосковскому наследию, латунные двери – к стилистике американского ар-деко, а лаконичные камень, металл и стекло – к современной инновационной архитектуре.
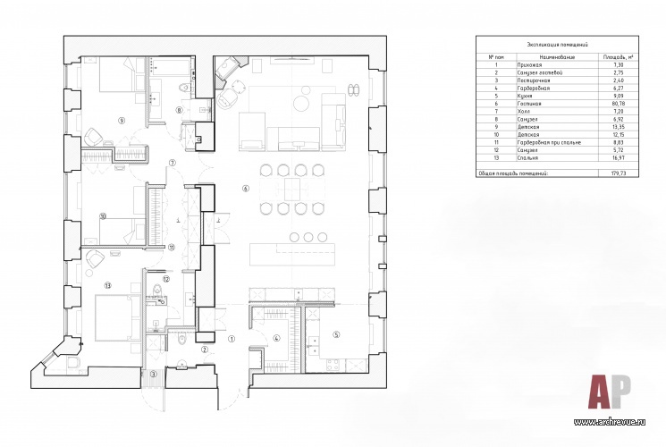
Квартира в плане стремится к квадрату, который по середине разделен несущей стеной с множеством проемов. Эта стена разделила квартиру на частную и общественную зоны. В общественной зоне размещается гостиная, столовая, каминная, парадная кухня, черновая кухня, гардероб и гостевой санузел с прачечной. В частной зоне – три спальни, санузлы, гардеробные.
В мастер-спальне есть маленькая зона, так называемый «хвост» комнаты, которая в дореволюционное время была холодильной комнатой. Сейчас по понятным причинам она не востребована, и это пространство архитекторы превратили в небольшой угловой кабинет.
При работе с планировкой архитекторы максимально сохранили исторические элементы: проемы в несущей стене, где-то они получились сквозные, где-то обыграны как ниши для хранения. При этом независимо от функционала, все проемы имеют одинаковое оформление – стеклянные витражи с фацетом в латунных рамах.
Основа интерьера – современное лаконичное пространство, подчеркивающее красоту и пластику исходной архитектуры. Окрашенные в белый цвет стены, уложенные светлой дубовой «елкой» полы, фактура камня и металл – вот, пожалуй, и весь арсенал декоративных средств, который используют авторы проекта. Интерьер намеренно сделан светлым и легким, что позволяет точечно расставить необходимые акценты и подчеркнуть самые значимые элементы интерьера: полукруглый мраморный камин, мраморную кухню, витражные двери в латунном профиле, искусство.
Безусловно, стилеобразующим элементом проекта являются витражные двери. Их использовано несколько типов: стеклянные и зеркальные, откатные и распашные в латунных рамах. Они подчеркивают высоту пространства, объем и сохраняют ощущение воздуха. Внушительную площадь общей гостиной также акцентируют парные масштабные потолочные светильники с металлической круглой основой.
Комплектация объекта
Строительные и отделочные материалы и изделия
Финишная отделка стен, краска Little Greene
Дверная и мебельная фурнитура Buster + Punch и Blum
Паркетная доска, поставщик Finex
Наливной пол «терраццо» Altezza
Свет Il Fanale, Santa & Cole, Allied Maker, Atelier Areti
Сантехника раковина Rexa Design, смесители Fantini, водяной полотенцесушитель Margaroli
Мебель
Гостиная диван Walter Knoll (модель Tama Living) кресло и оттоманка Fritz Hansen, барные табуреты Miyazaki Chair Factory
Столовая обеденный стол Walter Knoll (модель Tadeo Table), стулья Miyazaki Chair Factory (модель Hata)
Кухня в облицовке камнем, на заказ; рабочая кухня V-Bureau
Спальня кровать, на заказ; кресло Walter Knoll, столик Molteni&C (модель Panna Cotta)
Детская на заказ
Мебель для ванных комнат Antonio Lupi
Оборудование
Электроустановочные изделия Buster + Punch
Яркий дом в Подмосковье
Семейная резиденция в камерном поселке Подмосковья Поиски нового офиса привели владельцев архитектурного бюро «Крупный план» к неожиданному, но очень значимому шагу – приобретению особняка - объекта культурного наследия XIX века...
























Созидание как эволюция: офис бюро «Крупный план»
Равновесие, цельность и гармония как результат работы архитектора…
Ландшафтный архитектор. Инженер. Проектировщик. Логик.
«Мода в интерьере — это зеркало нашего быта»...
Храм в городе 
11
22
33
44
55
66
77
88
99
1010 