Закрыть галерею
Изображение 21 из 21

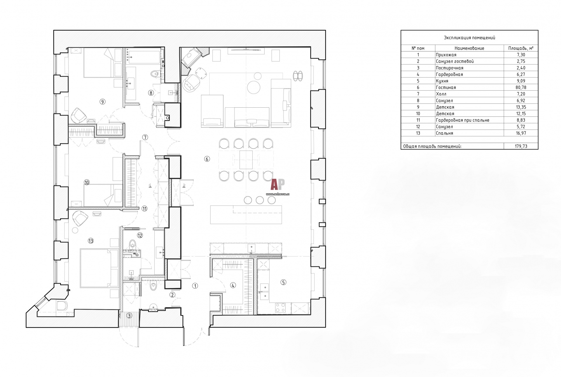
План квартиры с 3-мя спальнями и общей гостиной столовой, кухней.

Планировка четырехкомнатной квартиры в дореволюционном доме. Общая площадь – 200 кв. м.

Проект: Белая квартира с латунными витражными дверями
Автор проекта: Белякова Дарья
Соавтор(ы): Бюро ARCH(E)TYPE
Объект: Современная квартира в дореволюционном доме на Патриарших прудах
Общая площадь: 200 кв.м.