Заказчики дизайнера Ирины Бдайциевой привыкли жить за городом, поэтому, когда семья увеличилась, они решили приобрести дом побольше. Выбирали на вторичном рынке жилья, потому что искали стабильное место: охраняемый поселок с хорошо развитой инфраструктурой. Двухэтажный дом достался Ирине в готовом виде: с завершенными классическими фасадами, внутренней планировкой и отделкой.
Заказчики хотели переехать как можно быстрее и поставили задачу минимальными средствами, кардинально не изменяя архитектуру, решить некоторые технические вопросы и полностью изменить характер интерьера: наполнить интерьер яркими красками и необычными решениями.
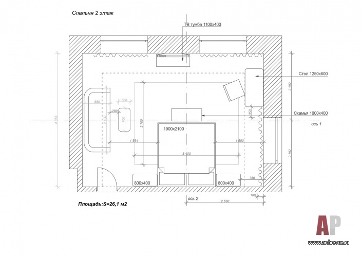
Адаптируя интерьер, оставшийся от прежних владельцев, для жизни молодой семьи с тремя детьми дизайнер частично сохранила отделку в парадных помещениях (например, полы из массива дерева, напольную плитку, винтовую лестницу), а также обстановку детских на втором этаже. Но обыграла их совершенно в новом свете, добавила свежести и креатива.
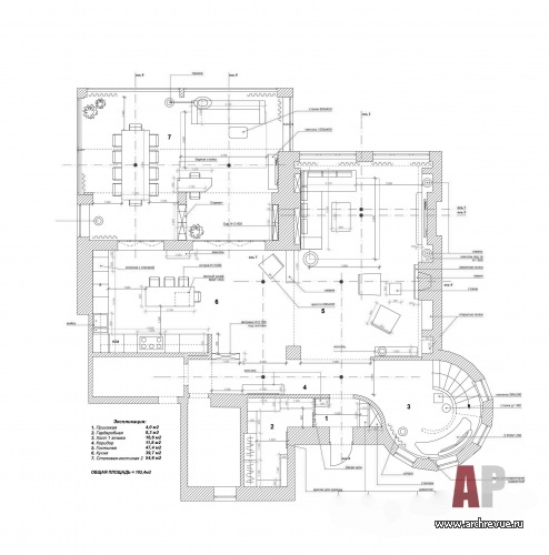
Дом имеет простую и ясную структуру, которая устраивала новых хозяев. Вмешательство в планировку было минимальным, но визуально весомым. «К общей кухне-гостиной мы присоединили террасу, на месте которой сделали парадную столовую с большим обеденным столом. Терраса досталась нам уже утепленной, с теплыми полами, мы снесли стандартные двери и в широкие проемы установили изготовленные на заказ двери-гармошки, порталы зашили шпоном ореха и зонировали кухню с баром», - рассказывает автор проекта.
Помимо просторной и светлой за счет панорамных фасадных окон общей зоны на первом этаже находится удобная прихожая и круглый холл с винтовой лестницей. Второй уровень занимают приватные спальни, санузлы и кабинет хозяина.
Заказчики хотели сочный и «звонкий» интерьер с фактурой американского ореха и активными цветовыми решениями. Так, в интерьере появились яркие обои ручной работы с крупным цветочным орнаментом, деревянные панели и мебель с индивидуальным характером, большей частью выполненная на заказ на российских производствах.
Каменный портал камина дизайнер акцентировала латунной отделкой, частично переделала фасады кухни Leicht, доставшейся от прежних владельцев, бетонную лестницу дополнила радиусным поручнем из дуба… Максимально «утеплила» интерьер, добавила тактильных фактур, ярких акцентов. Пожалуй, главным их них стали две пары деревянных дверей в виде гармошки, оформленные черной и золотой эмалью. Они создают в гостиной парадный настрой и масштабируют пространство.
Комплектация объекта
Строительные и отделочные материалы и изделия
Изделия из дерева двери, радиусный поручень лестницы, «Столярная мастерская Эдуарда Беляева»
Дверные и мебельные ручки, поставщик «Планета ручек»
Изделия из металла, компания Dordi
Изделия из камня, колонны, фартук и столешница кухни, остров в граните, барная стойка, компания «Мрамор.ru»
Лепной декор Orac Decor, поставщик Artique; Artpole
Декоративная финишная отделка стен, краски Little Greene и Benjamin Moore, поставщик Artique
Обои Wall&Deco, Osborne&Little, Loymina, Harlequin, BN Walls, поставщик Artique; обои ручной работы, поставщик Fresq
Керамогранит Keope, поставщик «Артисан»
Свет Jago, Kutek; Generation Lighting, Visual Comfort & Co, поставщик Design Place; Eichholtz, поставщик IDC Collection; Handle Studio; Any Home, Flos, Serip; Rubn, поставщик L’Appartement; Pushastore; John Richard, поставщик Decorum
Светильники из гипса под покраску, поставщик Astro
Трековые системы освещения, поставщик Swetodiod.ru
Шторы, поставщик «Галерея Арбен»; шторы из ткани JAB, обивочный текстиль, поставщик «Альянс Высокий Текстиль»
Пошив штор, компания Marilux
Постельное белье, поставщик Pratesi
Ковры, поставщик Design Carpets и «Ателье Марка Патлиса»; ковры Serge Lesage, поставщик Design Place
Декор, поставщики «Дом Фарфора», Luxury design, Stebli
Сантехника Villeroy & Boch
Мебель
Прихожая диван Montbel, пьедестал Eichholtz, консоль Malerba
Гостиная диван Gray Cardinal, кресла, Wittmann, журнальный столик Red Edition
Кухня Leicht, фасады и элементы частично сделаны на заказ по эскизу дизайнера – изготовление «Столярная мастерская Дмитрия Северина»; барные стулья Gubi
Столовая стол обеденный на заказ, по эскизу дизайнера подстолье – изготовление NewTekPro, столешница в шпоне ореха – изготовление Lores; стулья в ткани Colefax & Fowler фабрика Lores
Зона отдыха в столовой диван The Idea, журнальный столик Dordi, стулья полубарные в ткани Colefax & Fowler, Unika Møblär
Спальня хозяев кровать, на заказ, по эскизам дизайнера с обивкой из ткани Sanderson, банкетка из ткани Harlequin - изготовление Loftmark; диван Gray Cardinal; прикроватные тумбы Bragindesign; тумба, на заказ, изготовление - «Столярная мастерская Эдуарда Беляева», ручки, поставщик Soda homedecor
Кабинет стеллаж и тумба под ТВ Furman, стол письменный с электроприводом Vitra, стул рабочий Herman Miller (модель Aeron), стол кофейный Any Home
Поставка мебели – Design Place, L’Appartement, DK Project
Оборудование
Оборудование кухни, встроенная техника De Dietrich
Двухэтажный лофт в современном классическом стиле
Современная квартира в дореволюционном доме на Патриарших прудах Великое наследие и возрождение Храмового зодчества в России – поговорим об этом с архитектором Дмитрием Пшеничниковым, основателем архитектурного бюро «Дмитрий Пшеничников и Партнеры»




















Ландшафтный архитектор. Инженер. Проектировщик. Логик.
«Мода в интерьере — это зеркало нашего быта»...
Храм в городе
Три кита современного стиля
Проект: Аэропорт «Кавказ» 
11
22
33
44
55
66
77
88
99
1010 