Архитектор Наталья Юдина и ее команда АБ U-project спроектировала и оформила загородный дом для одного из совладельцев компании Dantone Home. В качестве стилистического ориентира была выбрана современная фламандская архитектура: романтичная и брутальная одновременно. Строгий одноэтажный дом повторяет вытянутую форму участка, жилые помещения выходят на террасы, террасы переходят в бетонные ступени, по которым спускаешься в сад. Более закрытый приватный блок с террасой соединяет галерея с перголой.
Интерьер, архитектура и ландшафт здесь существуют в единой связке. В отделке фасадов использован клинкерный кирпич темного серого цвета и графитовый фальцевый пурализированный металл. Деревянные декоративные стойки, подшивка кровли, алюминиевые оконные рамы также окрашены в темно-серый цвет. Несущие опоры для кровли террасы и козырька входа в техническую часть оставлены бетонными так же, как пол террасы и отмостка со ступенями вокруг здания. Строительный бетон сверху покрыт водоотталкивающей пропиткой и выглядит живым и настоящим.
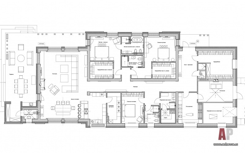
Одноэтажный дом рассчитан на проживание троих человек и имеет логичную структуру. Входная группа, технические помещения, приватный блок с тремя спальнями (родительской, спальни дочери и гостевой), санузлами, гардеробными и сауной соединяет центральный осевой коридор. Он же выводит к общественной зоне – объединенному пространству гостиной, столовой и кухни, к которому примыкает большая терраса.
«От главного входа, через холл-прихожую, с расположенной там же гардеробной и гостевым санузлом, по коридору, ведущему в гостиную и кухню-столовую, можно попасть во все помещения дома. И это очень удобно. Основная ось останавливается камином в гостиной. Гостиная и кухня-столовая решены как общее пространство с большими окнами, скатным, максимально высоким потолком», - отмечает автор проекта
Еще на стадии архитектурного проектирования было решено оставить открытой внутреннюю кирпичную кладку и окрасить ее в темные природные цвета. Контрастность интерьеру добавляют белые заливки плоскостей, деревянные стеновые панели и латунные молдинги (в спальне). Полы общественной зоны облицованы черным сланцем трех разных форматов, привезенным хозяином дома из Бельгии, приватной – инженерной дубовой доской, уложенной английской елкой.
Акцент гостиной – строгий и эффектный камин с порталом из черного мрамора Nero Marquina, выполненного по эскизам архитектора. Во всех ванных комнатах использована керамическая плитка фабрики Tonalite, которая сочетается с микроцементом в отделке стен. Большая часть мебели фабрики Dantone Home, она миксуется с предметами британского бренда Neptune и американскими светильниками Visual Comfort & Co. Несмотря на то, что основным принципом оформления стало минимальное вмешательство в сложившийся архитектурный объем, дом выглядит ярко и колоритно.
Комплектация объекта
Строительные и отделочные материалы и изделия
Отделка фасада, клинкерный кирпич ABC Klinkergruppe
Фальцевая кровля, Ruukki
Алюминиевые окна и двери Alutech, поставщик «Окна России»
Изделия из дерева, панели, мебель, компания P.S People
Декоративная финишная отделка стен, Tikkurila
Паркет, поставщик Finex
Керамическая плитка Tonalite
Свет Visual Comfort & Co, поставщик Visual Comfort Gallery
Сантехника Duravit, Catalano, Jacob Delafon, инсталляции Tece, смесители KLUDI, поставщик «Душ Консалтинг»
Мебель
Dantone Home, Neptune; на заказ – изготовление P.S People
Фото: Евгений Кулибаба, Андрей Пугач
Стилист: Кира Прохорова
Квартира для отдыха от городской суеты
Семейная квартира на Мосфильмовской О профессии «ландшафтный архитектор», образовании и специфике частных и общественных ландшафтных проектов говорим с Иваном Бугаевым…



































Равновесие, цельность и гармония как результат работы архитектора…
Ландшафтный архитектор. Инженер. Проектировщик. Логик.
«Мода в интерьере — это зеркало нашего быта»...
Храм в городе
Три кита современного стиля 
11
22
33
44
55
66
77
88
99
1010 