Закрыть галерею
Изображение 31 из 31

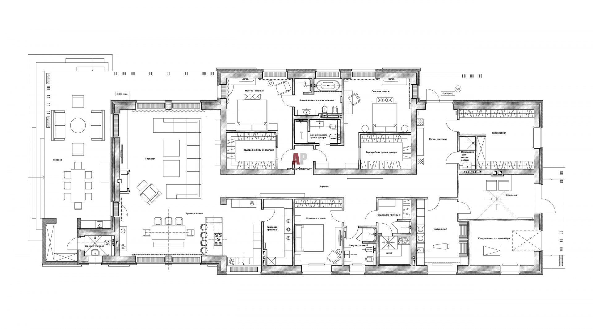
Планировка одноэтажного дома с террасами и скатной кровлей.

План одноэтажного дома для постоянного проживания семьи из трех человек, общая площадь – 390 кв. м.

Проект: Одноэтажный дом в поселке Дарьино с серым фасадом и колоритным интерьером
Автор проекта: Юдина Наталья
Объект: Фламандский дом в Подмосковье
Общая площадь: 390 кв.м.