Архитектор-дизайнер Олег Ребров оформил типовой двухэтажный таунхаус в Новогорске, превратив его в альтернативное пространство, наполненное предметами искусства и творческой атмосферой. Заказчик – бизнесмен, коллекционер, меценат и покровитель деятелей искусств – хотел уютный и яркий дом, в котором не только комфортно жить, но и проводить встречи, выставки, мероприятия. Своего рода площадку для общения, где бурлит творческая жизнь, рождаются идеи…
Создать интерьер без правил, с одной стороны, мечта любого дизайнера, с другой – задача очень непростая. «Важно было найти баланс, чтобы яркий и многосложный дизайн не спорил с сильным по цвету и эмоциям искусством. В итоге решили работать широкими заливками и на контрастах: светлых нейтральных плоскостей и мощных акцентов в виде пестрого натурального камня, винтажной амбарной доски, кирпича ручной работы, разноцветной мебели», - рассказывает автор проекта.
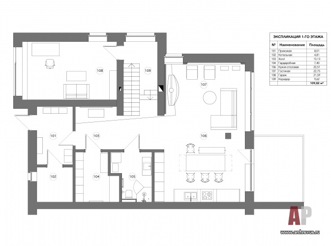
Хотя изначальная планировка и была достаточной удобной, дизайнер серьезно перекомпоновал пространство и четко выделил жилую зону и общественную территорию для общения и приема гостей. Для этого на первом этаже убрал перегородки между кухней и гостиной, создав один большой зал, а также изменил расположение гардеробной и санузла, расположив их компактно при входе.
Кабинет разместил на удалении от общей зоны, из него можно быстро попасть на лестницу второго этажа, а кроме того через панорамный витраж выйти на участок.
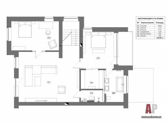
На втором этаже сначала была стандартная мелкая нарезка на спальни, из них дизайнер оставил только две (одну из них с санузлом), а оставшееся пространство сделал общим. Таким образом на обоих этажах удалось создать автономные зоны отдыха, свои гостиные для общения. «Мы хотели еще надстроить третий этаж – сделать кабинет, но решили отказаться от гаража и переместить кабинет на его место, а для машин сделали навес. Так удалось обеспечить приватность рабочему процессу без дополнительных строительных работ», - рассказывает дизайнер.
Помимо комфортной жизни в доме изначально планировалось создать арт-среду, проводить мероприятия и выставки. Поэтому интерьер получился сложным, многоплановым, с отсылками к современному дизайну и близкой заказчику эстетике соцарта. Цветовая гамма выбрана светлая, с акцентными деталями и яркими заливками. «Палитра радостная, немного вычурная: революционный красный, гжельский синий, теплый янтарный, - отмечает автор проекта. - Она создает атмосферу фана, свободы, смелости и вдохновения».
В гостиной особенно эффектно смотрится разноцветный мрамор, яркие и сложные оттенки которого перекликаются с палитрой настенной фрески работы художника Азама Атаханова. В кабинете усилена лофтовая стилистика: использован кирпич ручной формовки, авторские изделия из сварного металла. В хозяйской спальне акцент сделан на чистый тотальный цвет, а в примыкающей к ней ванной комнате – брутальной фактуре старых амбарных досок… Яркие краски, затейливые детали, смелый микс на первых взгляд несочетаемых вещей служит отличным фоном для главного героя интерьера – предметов искусства из большой коллекции хозяина.
Комплектация объекта
Строительные и отделочные материалы и изделия
Мансардные окна, VELUX
Двери, на заказ, компания DoorsBrothers
Натуральный камень, поставка и работы, компания «Экостоун»
Изделия из металла, лестница, компания «МаксиГласс»
Декоративная штукатурка, поставщики «Франс-Деко’Р», «Студия Марата Ка»
ГВЛ, «КНАУФ»
Кирпич ручной формовки, Feldhaus Klinker
Инженерная доска, дуб «Антик»
Амбарная доска, поставщик «Ретро-доска»
Камин Focus, модель Antefocus
Свет декоративный Bocci (модель Random 28.36), MOOOI (модели Heracleum the Big O и Random), GANTlights, (модель Corten), поставщик «Световые ресурсы»; Muuto, поставщик L’Appartement
Технический свет Delta Light
Ковры, поставщик Art de Vivre
Текстиль, поставщики Zara Home, «Стокманн», H&M Home
Декор, поставщик L’Appartement
Сантехника Duravit (коллекции CapeCode, Architec, Duravit Starck 3); смесители, аксессуары, душевые Hansgrohe
Мебель
Прихожая пуф Ferm Living
Гостиная мягкая мебель BoConcept, журнальный столик Zuiver, столик Molteni&C
Кухня «Икеа»
Столовая стол, лавка BoConcept, стулья Kartell, стул-кресло Magis
Кабинет письменный стол BoConcept, диван «Икеа»
Зона отдыха на втором этаже мебель мягкая, мебель для ТВ и журнальные столы, консоли BoConcept, журнальный столик фирмы Zuiver, кресло и оттоманка Gubi
Гостевая спальня «Икеа», стул Frama
Хозяйская спальня кровать, консоль BoConcept
Мебель – поставщик L’Appartement
Оборудование
Электроустановочные изделия Jung, серия LS990, поставка и монтаж «Световые ресурсы»
Оборудование кухни, техника Miele
Фотограф: Евгений Кулибаба
Стилисты: Елена Середа, Алена Буканова
Апартаменты в стиле ар-деко в Хамовниках
Квартира-студия с элегантным дизайном и видом на Неву Поиски нового офиса привели владельцев архитектурного бюро «Крупный план» к неожиданному, но очень значимому шагу – приобретению особняка - объекта культурного наследия XIX века...



























Созидание как эволюция: офис бюро «Крупный план»
Равновесие, цельность и гармония как результат работы архитектора…
Ландшафтный архитектор. Инженер. Проектировщик. Логик.
«Мода в интерьере — это зеркало нашего быта»...
Храм в городе 
11
22
33
44
55
66
77
88
99
1010 
Заказчик является большим поклонником творчества художника Азама Атаханова. В его коллекции много его живописных работ, и в какой-то момент он мне сообщил, что заказал у художника настенное мозаичное панно размером 2Х2 метра и две большие фрески. Сначала я колебался, нужно было сделать так, чтобы интерьер не отвлекал от искусства, а акцентировал его. В итоге мозаике в холле я выделил почетное место, сделал нейтральный фон и поддержал активной, яркой стеной напротив. В гостиной поработал с разноцветным мрамором, яркие и сложные оттенки которого перекликаются с палитрой Азама. На втором этаже также поддержал монументальную живопись однотонной заливкой стен и красным диваном. Благодаря работе на контрастах удалось добиться гармоничного эффекта.