Для взыскательной заказчицы команда бюро Marion Studio (дизайнер Маргарита Мельникова, архитектор Кристина Высоцкая) оформила квартиру в жилом комплексе «Литератор», придав ей сходство с роскошными салонами Эпохи Джаза. За основу была взята стилистика ар-деко, сочетание теплых сочных цветов и дорогих тактильных фактур создает почти кинематографический эффект и погружает в атмосферу «Великого Гэтсби».
Несмотря на то, что в интерьере много ручной работы (особенно сложных столярных изделий), проект шел легко и без задержек и был закончен за год. В итоге получилась эстетская квартира, полная декоративных подробностей, золотых всполохов и радости жизни.
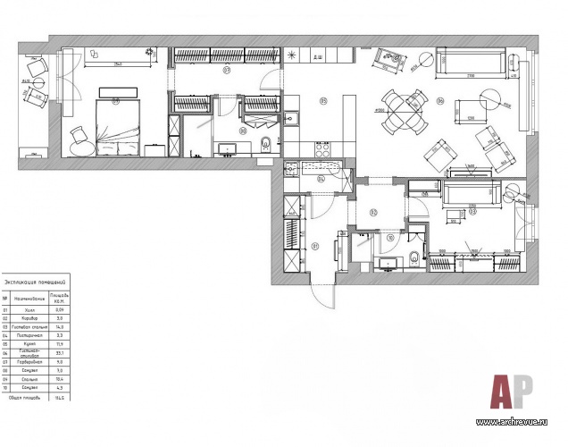
Пространство квартиры площадью 115 кв. м максимально адаптировано под светский образ жизни заказчицы. Основной объем занимает общая гостиная с кухней, которая благодаря зеркальным фасадом и высокой стойке из дерева напоминает модный бар. Зеркальной сделана и дверь-невидимка, ведущая прямо из кухни в хозяйские апартаменты: проходную гардеробную, ванную комнату и спальню с уютным балконом.
С другой стороны к общей гостиной-салону примыкает гостевая комната, которая часто используется как камерная зона отдыха и место для приватных бесед. При входе организована эффектная прихожая со встроенными шкафами, кладовая-постирочная и гостевой санузел. Идеальный формат для проживания светской леди, которая любит собирать гостей за бокалом шампанского.
Чтобы создать по-настоящему роскошный интерьер, дизайнеры использовали большое количество разнообразных материалов: шелковые обои, алькантару, кожу, натуральный мрамор, экзотическое и редкое дерево, состаренные и затемненные зеркала. Вместе они создают не только эффектный визуальный образ, но и потрясающий тактильный эффект.
Палитра выбрана теплая, солнечная, ассоциирующая с закатным солнцем и брызгами шампанского. «Отправной точкой для подбора мебели в зале стал диван Selva: большой, изящный, располагающий к беседе», - отмечают авторы проекта. Остальную мебель также выбирали исходя из красоты форм и приятных тактильных ощущений. Встроенные изделия, а также стеновые панели и двери были сделаны на заказ в индивидуальном порядке. В проекте много разнообразных люстр и бра, они создают парадное настроение и привлекают внимание своей нетривиальной формой. Заказчица увлекается современным искусством, поэтому важное место в интерьере занимают произведения из ее личной коллекции.
Комплектация объекта
Строительные и отделочные материалы и изделия
Изделия из дерева, двери, компания Qvatro Interiors
Дверная и мебельная фурнитура, Turnstyle Designs, Ochre, поставщик EMPORIO.ru
Текстильное оформление, компания «Мадам Оформитель»
Свет Donghia, Hector Finch, Corbett Lighting, Hamilton Conte, Hudson Valley Lighting, Fine Art Lamps, Oluce
Ковры, поставщик Dovlet House
Сантехника Villeroy & Boch
Искусство, «Восточная Галерея» и галерея Balchug Gallery
Мебель
Прихожая консоль Julian Chichester
Гостиная диван Selva
Столовая бар Ralph Lauren, стулья Selva
Кухня Poliform
Спальня кровать и прикроватные тумбы на заказ, по эскизам дизайнеров; комод JNL
Гостевая спальня диван BK Italia, столики Hamilton Conte
Встроенная и корпусная мебель на заказ – компания Qvatro Interiors
Фотограф: Сергей Красюк
Стилист: Наталья Онуфрейчук
Современный дом на краю леса
Дом с творческой атмосферой для коллекционера О профессии «ландшафтный архитектор», образовании и специфике частных и общественных ландшафтных проектов говорим с Иваном Бугаевым…






















Ландшафтный архитектор. Инженер. Проектировщик. Логик.
«Мода в интерьере — это зеркало нашего быта»...
Храм в городе
Три кита современного стиля
Проект: Аэропорт «Кавказ» 
11
22
33
44
55
66
77
88
99
1010 