Для пары элегантного возраста дизайнер Ольга Лапшова оформила городской интерьер, главная особенность которого – удивительная внутренняя гармония. Пространственная логика, тактильные ощущения от материалов, сложная прохладная цветовая палитра и тщательный выбор деталей – все подчинено одной задаче: созданию комфортного пространства для заказчиков-космополитов. Они долгое время прожили за границей (в Италии, Франции, Греции) и хотели, чтобы московская квартира напоминала о южных странах.
Выбирая жилье, заказчики остановились на новом комплексе апартаментов на Воробьевых горах с панорамным остеклением и потрясающим видом на МГУ и современные столичные небоскребы. «Когда я впервые оказалась в квартире, то ощутила необычайную близость неба, воздуха, свободы и парения над городом, которые и постаралась передать средствами дизайна», - рассказывает автор проекта. Апартаменты сдавались в отделке white box, которая не вполне соответствовала современным стандартам качества. Кроме того, заказчики поставили четкое техническое задание по количеству и назначению помещений, поэтому было решено начать все с нуля: выполнить перепланировку и заменить инженерное оснащение. В итоге получился современный, легкий и не перегруженный деталями и мебелью интерьер, который дает ощущение безмятежности.
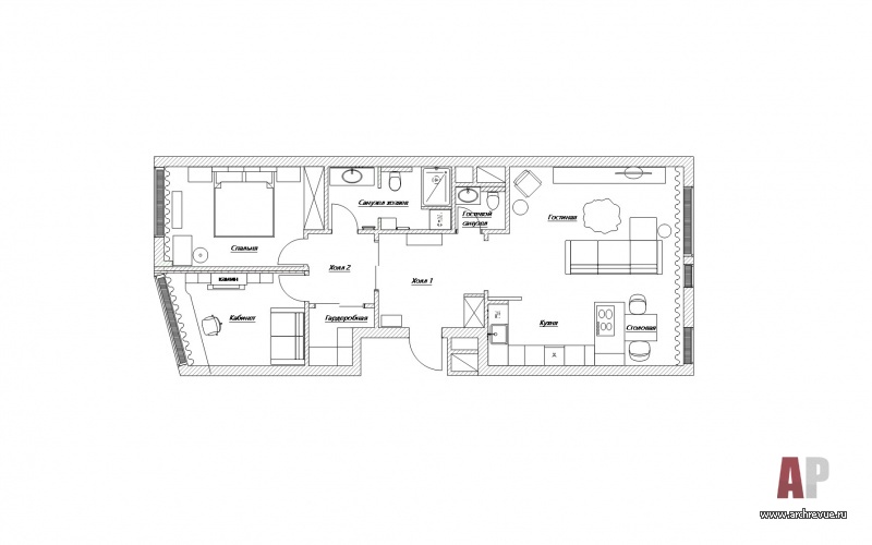
Распашную квартиру площадью 82 кв. м дизайнер разделила на две практически равные по площади зоны – общую и приватную. Справа от входа она разместила общую гостиную с кухней и столовой, а также гостевой санузел. Слева – спальню, кабинет, мастер-ванную и гардеробную. Между ними установила раздвижную перегородку, которая за счет декоративной раскладки делает дверь непрозрачной и скрывает при необходимости частную зону.
Чтобы сделать исходный план более комфортным, пришлось «подвигать» дверные проемы, а также вписать большую гардеробную. Хозяин дома любит готовить, поэтому было необходимо спроектировать функциональную кухню с островом, в который встроена варочная панель и вытяжка, и удобную рабочую зону. «Рабочую зону с мойкой мы визуально отделили от гостиной с помощью перегородки из меди и стекла ручной работы. За счет интересной пластики и необычной брутальной фактуры она стала ярким акцентом общей зоны», - отмечает дизайнер. Столовая группа, напротив, большая не требовалась, поэтому она получилась компактной, но с потрясающим видом на город.
Заказчикам хотелось сделать современный комфортный интерьер и при этом наполнить его воспоминания об их любимых странах и городах. Так появились аллюзии на классическую архитектуру Франции и Италии и легкие интерьеры Средиземноморья. Стену прихожей украсило панно из стекловолокна с графичным изображением старинного французского шато, а зону столовой – панно «Милан под водой», сделанное по индивидуальному заказу в мастерской Форназетти…
В оформлении использованы качественные материалы с тактильной фактурой: инженерная доска из массива ореха, кухня с фасадами под бетон, приятные на ощупь обои удивительного серо-голубого цвета, который меняется в зависимости от естественного освещения. Если в гостиной ставка сделана на однотонные заливки и функциональную и лаконичную мебель, то спальня получилась более яркой и насыщенной за счет декоративной фрески за изголовьем кровати и корпусной мебели из благородного дерева. Кабинет задуман как классическое помещение с основательной библиотекой из шпона вишни и рабочим столом. Однако, чтобы сделать интерьер более легким и сохранить прямой обзор панорамного окна, дизайнер спроектировала оригинальный стол с парящей столешницей.
Дизайнер вспоминает, что с самого начала работы над проектом хозяева попросили не использовать металл желтого цвета. Поэтому все металлические элементы выполнены из меди в цвете «розовое золото» или же темного хрома, никеля, бронзы. В том числе дверная и мебельная фурнитура фабрики Buster + Punch выбраны в оттенке затемненной бронзы (Smoked Bronze) и элегантно дополняют продуманный до мелочей интерьер.
Комплектация объекта
Строительные и отделочные материалы и изделия
Изделия из дерева, компания «Кардинал»
Перегородки из меди и стекла, компания «Папа Карло»
Двери Ghizzi & Benatti., раздвижные перегородки ADL, поставщик «Интерьерный салон №1 компании МБТМ»
Дверная и мебельная фурнитура Buster + Punch, поставщик EMPORIO.ru
Пол, инженерная доска Foglie d`Oro, поставщик «Интерьерный салон №1 компании МБТМ»
Обои Arte, Khroma, лепной декор Orac Decor, поставщик «Ампир Декор»
Фреска, Affresco
Керамогранит FAP Ceramiche и Refin, Mipa, панно из стекловолокна Inkiostro Bianco, поставщик AuRoom Interiors
Свет Axo Light, Linea Light, Italamp, Fiam, Glassburg, Flos, Contardi, Terzani, поставщик «Интерьерный салон №1 компании МБТМ»; Muuto, поставщик L’Appartement
Сантехника Noken, цветная сантехника ArtCeram, смесители и аксессуары Gessi, поставщик Zodiaq и Studio–Line
Ковры Art de Vivre; Missoni Home, поставщик Mobillissimi
Текстильный дизайн, «Интерьерный салон №1 компании МБТМ»
Постельное белье, поставщик Linen Texture; подушки и пледы сшиты из тканей Missoni Home, Etro, поставщик Mobillissimi
Декор вазы и посуда, поставщики L’Appartement, Astore Moscow
Искусство, Carre d'artistes и Mobillissimi
Мебель
Холл консоль Fiam, зеркала Porada, шкаф, обувница и ключница - сделаны под проект
Гостиная диван Cierre immobiliare, система хранения Huelsta, журнальный столик из спила корня Bizzotto, приставной столик Cattelan Italia
Кухня Leicht
Столовая стол Arte Brotto, винтажные стулья, поставщик VivaVintage
Спальня кровать и тумбы Huelsta, туалетный столик Porada; банкетка, поставщик L’Appartement
Кабинет диван Cierre immobiliare, библиотека Bizzotto, стол выполнен в мастерской по индивидуальным чертежам; стул, антиквариат
Мебель для санузлов Gamadecor (Porcelanosa Grupo) и Brenta
Корпусная и мягкая мебель – поставщик «Интерьерный салон №1 компании МБТМ»
Встроенная мебель сделана по индивидуальным эскизам из итальянской плиты Cleaf, поставщик «АЛФ Интернэшнл Групп»; фурнитура Buster + Punch, поставщик EMPORIO.ru
Оборудование
Оборудование кухни Kuppersbusch
Фотограф: Евгений Кулибаба
Стилист: Кира Прохорова
Мужская квартира в Серебряном Бору
Минималистская вилла в Ростовской области О профессии «ландшафтный архитектор», образовании и специфике частных и общественных ландшафтных проектов говорим с Иваном Бугаевым…























Созидание как эволюция: офис бюро «Крупный план»
Равновесие, цельность и гармония как результат работы архитектора…
Ландшафтный архитектор. Инженер. Проектировщик. Логик.
«Мода в интерьере — это зеркало нашего быта»...
Храм в городе 
11
22
33
44
55
66
77
88
99
1010 