Этот эффектный таунхаус расположен в комплексе клубных домов «Легенды Озера», в самом престижном районе Калининграда – на берегу Верхнего озера. Заказчики дизайнера Алены Чашкиной приобрели таунхаус без отделки и обратились с пожеланием создать утонченный и функциональный интерьер для жизни и приема гостей. Дизайнер разработала проект в эстетике ар-деко, которую особенно ценит за благородство и декоративность, столь редкие в нашей повседневной жизни.
Но ушла от прямого исторического цитирования, сделала ставку на насыщенный, яркий декор и солнечную палитру и получила интерьер-фейерверк, который дает ощущение радости и счастья.
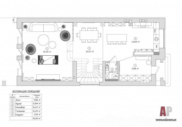
Трехэтажный таунхаус площадью 350 кв. м предназначен для проживания семьи с двумя детьми. Чтобы сделать жизни заказчиков более комфортной, дизайнер существенно откорректировала исходный план. Так, первый этаж, который размещается на двух уровнях, она превратила в одну большую парадную зону.
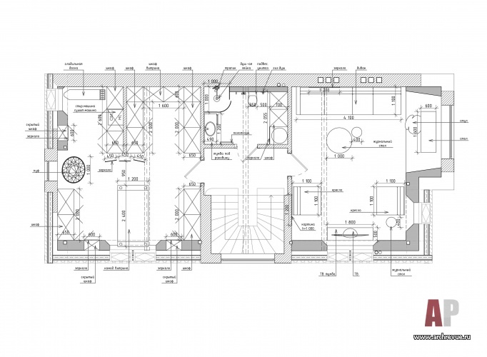
Внизу, на уровне земли, находится просторная гостиная с выходом в сад; наверху – столовая-кухня и лестничный холл с элегантной лестницей. Благодаря отсутствию перегородок пространство выглядит цельным, а расположенные с двух сторон окна его прекрасно освещают. На втором этаже дизайнер сделала три спальни: хозяйскую со своей ванной комнатой и гардеробной и две одинаковые по планировке детские с общим санузлом. Третий этаж она отдала под гостевую спальню, гардеробную и еще один гостевой санузел.
В оформлении интерьера дизайнер использовала любимые приемы и материалы, создающие праздничный настрой. Например, декоративную штукатурку, которая содержит мрамор и кварц, авторские обои, изящный лепной декор, мозаику и художественные витражи с тропической тематикой, созданные местными мастерами.
«Работа над проектом совпала с ежегодным визитом на Миланскую выставку ISaloni. Ключевые для интерьера предметы мы приобрели там, - рассказывает Алена Чашкина. – В том числе диван Nobu и журнальные столики Amadeus со столешницами из мрамора Pallisandro Onicato и Agatha Black от Longhi». К харизматичным предметам добавились неординарные светильники с шелковыми абажурами и отделкой кристаллами ручной работы и кожей ската. Цветовая палитра интерьера – теплая, деликатная, солнечная, акценты расставлены точечно, отчего в пасмурный день он выглядит сдержанно элегантным, но с появлением солнца загорается яркими красками и превращается в эстетский калейдоскоп.
Комплектация объекта
Строительные и отделочные материалы и изделия
Витражи, компания «Кенигсбергское стекло»
Декоративная финишная отделка стен, штукатурка Travertino Romano, поставщик Oikos; краска Ralston
Обои, поставщик KT Exclusive
Лепной декор Orac Decor
Паркетная доска Bauwerk Parquet
Керамогранит Rex (коллекции Classici di Rex Statuario и Prexious), Caesar (коллекция Anima), Lea Ceramiche
Свет Officina Luce, Luxxu, Versace, Brabbu, Sicis, Iris Cristal, Patrizia Garganti
Напольные зеркала, мебельная фурнитура Armac Martin, поставщик Furnitek Group
Ковры Massimo Copenhagen
Сантехника раковины и ванны Oasis и Villeroy & Boch, унитазы и биде TOTO, смесители Maier Kryos, полотенцесушители Zehnder (модель Zehnder Metropolitan)
Мебель
Гостиная диван Longhi (модель Nobu), журнальные столики Longhi (модель Amadeus)
Столовая обеденный стол Visionnaire (модель Chatam с мраморной столешницей Black Cosmic), стулья, Longhi (модель Daphn)
Кухня и остров Aster Cucine (коллекция Luxury Glam), барные стулья Longhi (модель Daphne)
Спальня кровать, тумбы, туалетный столик, кресла Frigerio
Мебель для ванных комнат Villeroy & Boch (коллекция Finion) и Oasis (коллекции Riviere и Casablanca)
Гардеробная шкафы, на заказ, изготовление «Фабрика интерьеров ЭлитДом»
Оборудование
Электрофурнитура (розетки, выключатели) Bticino
Оборудование кухни, встроенная техника Neff
Фото: Василий Буланов
Природный дом в Подмосковье
Двухэтажный коттедж с мансардой на Новорижском шоссе О профессии «ландшафтный архитектор», образовании и специфике частных и общественных ландшафтных проектов говорим с Иваном Бугаевым…

























Равновесие, цельность и гармония как результат работы архитектора…
Ландшафтный архитектор. Инженер. Проектировщик. Логик.
«Мода в интерьере — это зеркало нашего быта»...
Храм в городе
Три кита современного стиля 
11
22
33
44
55
66
77
88
99
1010 