Для семьи с четырьмя детьми архитектор Наталья Тарханова оформила загородный дом и наполнила его приглушенными природными оттенками и натуральными фактурами, создав идеальное жилье для отдыха за городом. Двухэтажный дом построен по типовому проекту, но благодаря тому, что архитектор подключилась на стадии чертежей, его удалось сделать индивидуальным: скорректировать план под образ жизни большой семьи, а также визуально изменить облик и декорировать фасад клинкерным кирпичом в духе современных европейских построек.
Место для дома выбрано не случайно, с ним связана история семьи, будучи детьми заказчики проводили здесь много времени и теперь решили вернуть прекрасные детские воспоминания, но с оглядкой на сегодняшний день. Внешне дом получился строгим, брутальным с эффектно выделенной черными рамами геометрией окон, лаконичным кованым балконом и угловым панорамным остеклением. Внутри атмосфера более спокойная: нейтральная палитра, построенная на сближенных сложных оттенках, без резких контрастов. Все материалы – тактильные, чтобы было приятно ходить босиком, дотрагиваться до стен, нежиться на диванах… «Концепция такова, что общая зона абсолютно универсальная, а в спальнях уже разыгрываются частные истории», - рассказывает автор проекта.
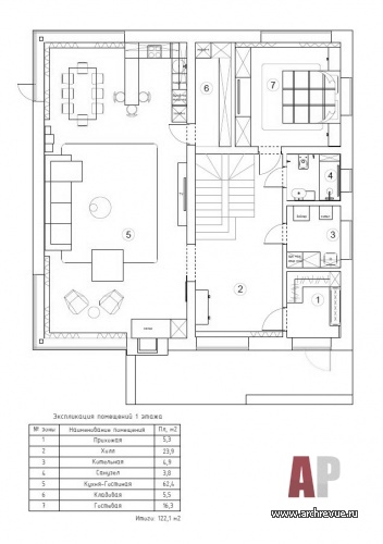
Дом имеет традиционную структуру с общим нижним этажом и приватным верхним. Парадное пространство включает небольшую прихожую, просторный лестничный холл и общую зону гостиной, кухни, столовой и каминной группой возле панорамного углового окна. Благодаря стеклянной перегородке, которая отделяет гостиную от холла и к тому же всегда открыта, получается большой и хорошо освещенный open space.
С другой стороны от центральной лестницы на первом этаже находится гостевая спальня, гостевой санузел и технические помещения. На втором этаже расположены три детские спальни со своей ванной комнатой, спальня родителей, объединенная с санузлом и гардеробной, и просторный холл с мансардным освещением, который используется как еще одна гостиная. Оптимальный функционал для семьи из шести человек!
Интерьер воспринимается цельным за счет использования общих отделочных материалов, которые объединяют пространство. На первом этаже это шпонированные стеновые панели, сложная серо-дымчатая цветовая палитра, природный камень в отделке камина и серая половая доска. Кухня-столовая здесь практически растворяется на общем фоне: в большом помещении акцентов не должно быть слишком много, чтобы не переутомить. Цвет в «базовый» интерьер добавляет текстиль, который с легкостью можно поменять и со временем создать какое-то другое настроение.
Второй этаж задуман более камерным, с расслабляющей атмосферой, которая позволяет забыть о мегаполисе и почувствовать себя за городом. Все помещения объединяет деревянный потолок. «Изначально дерево мы планировали использовать не везде, но заказчикам так понравилась древесина ангарской сосны, что ею подшили весь второй этаж: холл, спальню, детские – все… Чтобы усилить сходство с деревянным домом, красивым деревом оформили конструктивные элементы и декоративные балки. Оказалось, что, просыпаясь, видеть деревянный потолок – это, о чем всегда мечтали заказчики», - рассказывает автор проекта.
Несмотря на общую декоративную линию, все пять спален в доме получились абсолютно разными, со своим характером. Образ гостевой формирует бирюзовый декор, хозяйской спальни – мягкая теплая палитра и золотистые обои с ручной росписью. Самая яркая детская у старших сыновей: зонирование выполнено с помощью контрастных цветов (охры, графита и изумруда), а двухъярусная кровать с лестницей в стиле лофт изготовлена из черного сварного металла.
Комплектация объекта
Строительные и отделочные материалы и изделия
Отделка фасада, клинкерный кирпич Vandersanden (серия Fb Out Of Holland Wit); дорожки брусчатка Vandersanden (серия Luca Antika), поставщик «Клинкер Хаус»
Изделия из металла, компания Loft F.D.
Изделия из дерева, встроенная мебель, компания «МК Интерьер»
Стеклянная перегородка, поставщик Union
Межкомнатные двери Fineza Puerta
Финишная отделка стен краска, Sherwin-Williams, Little Greene
Декоративная штукатурка, поставщик Topcoat Boutique
Обои Fresq
Крупноформатный керамогранит, Arch-Skin
Керамогранит, ItalON
Массивная половая доска Junckers и Finex
Свет декоративный Aromas del Campo, Centrsvet
Технический свет и светильники на заказ, Ledmonster
Ковры, Art de Vivre
Искусство, Expo 88 Gallery, «Галерея Smart», Milliart
Декор, поставщики Woon Stores и Ceramica Atelier
Сантехника Jacob Delafon, смесители Hansgrohe, инсталляции Geberit
Мебель
Прихожая комод Treku; шкафы на заказ
Гостиная диван и кресла Saba Italia
Столовая стол со столешницей из ясеня Bontempi, стулья Midj
Кухня Stosa Cucine, барные стулья Midj
Гостевая спальня изголовье кровати DNK Interior
Спальня хозяев изголовье кровати DNK Interior, комод Treku
Холл второго этажа диван Saba Italia
Комната старших сыновей консольная кровать из чермета сварена по эскизам дизайнера; изголовье кровати DNK Interior, столярные изделия, на заказ
Спальня дочери столярные изделия, на заказ
Комната младшего сына изголовье кровати DNK Interior, столярные изделия, на заказ
Мебель на заказ – изготовление «МК Интерьер»
Оборудование
Электроустановочные изделия GIRA (модель E2)
Радиаторы «КЗТО» (модель «Гармония»)
Фотографы: Сергей Красюк, Евгений Гнесин
Стилист: Александра Пыленкова, Happy Collections
Уютный деревянный дом на краю леса
Таунхаус на Балтике с праздничным настроением Великое наследие и возрождение Храмового зодчества в России – поговорим об этом с архитектором Дмитрием Пшеничниковым, основателем архитектурного бюро «Дмитрий Пшеничников и Партнеры»


































Ландшафтный архитектор. Инженер. Проектировщик. Логик.
«Мода в интерьере — это зеркало нашего быта»...
Храм в городе
Три кита современного стиля
Проект: Аэропорт «Кавказ» 
11
22
33
44
55
66
77
88
99
1010 